物件をブックマーク
管理番号:S193467
共用LDK充実の新感覚ワンフロアオフィス
この度西新宿に大人気「12シリーズ」のシェアオフィスがグランドオープン。
今回ご紹介致しますのは、当オフィスビル3階、8階の2フロアでございます。

漆黒の重厚感があるサファード。
繁華街の代表「新宿駅」の近くでありながらも、西新宿方面はオフィスビルば立ち並ぶ落ち着いた印象なので安心してご通勤いただけます。

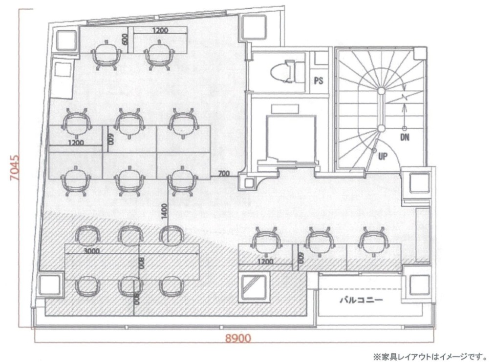
当物件はどの階も15名程度用の広々としたワンフロアオフィスです。
ワンフロアの区画の為プライバシー面も安心です。

オンラインミーティングなどにご使用可能なミーティングブースや仕切りを用いた個別スペースも。
様々な設備を仕事内容や気分に合わせてご使用頂けます。
様々な設備を仕事内容や気分に合わせてご使用頂けます。

大通りに面した眺望の良さを生かした家具配置が印象的です。
また、専有オフィスフロアのみならず、2階部分に共用フロアを完備。

共用LDKが充実しており、仕事時間の合間の時間を個々でお好きにご満喫頂けます。
キッチンスペースで作ったランチを、小上がりを採用したリラックス空間で皆で頂いたりしても素敵ですね。

各契約区画の水回りは簡易的にまとめ、共用部分を充実させるスタイル。
区画契約者のお客様は、西新宿以外にも新宿駅前と新宿三丁目の「12シリーズ」のラウンジやLDKをご利用可能と、気晴らしに仕事場を移したり用事の合間にお近くのオフィスへお立ち寄り頂けます。

共用施設・サービス充実の人気オフィスビルシリーズの新オフィス。
15名程度で新規オフィスを構えたい方には是非ご活用頂きたいものです。
管理番号:S193467
301号室
賃料:
賃料:
共益費:
広さ:46.64㎡
801号室(家具付き)
賃料:
共益費:
広さ:46.64㎡
住所:新宿区西新宿3
アクセス:JR各線・小田急線。京王線「新宿駅」徒歩10分、大江戸線「都庁前駅」徒歩8分、京王新線「初台駅」徒歩8分
構造・規模:鉄筋コンクリート造 地上10階建
築年:1987年(2021年リノベーション竣工)
敷金:
礼金:
備考:電気空調費¥50,000(税込 ¥55,000)、事務手数料(総賃料1ヶ月分)、定期借家契約(2年間)、再契約事務手数料(新賃料1ヶ月分、6ヶ月前までに書面通知)、保証会社利用相談、初回保証料(税込賃料+電気空調費)、火災保険必須、社名表示(有料)、24時間利用可能、入居時・変更時¥5,000(税込 ¥5,500)
アクセス:JR各線・小田急線。京王線「新宿駅」徒歩10分、大江戸線「都庁前駅」徒歩8分、京王新線「初台駅」徒歩8分
構造・規模:鉄筋コンクリート造 地上10階建
築年:1987年(2021年リノベーション竣工)
敷金:
礼金:
備考:電気空調費¥50,000(税込 ¥55,000)、事務手数料(総賃料1ヶ月分)、定期借家契約(2年間)、再契約事務手数料(新賃料1ヶ月分、6ヶ月前までに書面通知)、保証会社利用相談、初回保証料(税込賃料+電気空調費)、火災保険必須、社名表示(有料)、24時間利用可能、入居時・変更時¥5,000(税込 ¥5,500)
〈上記以外で契約時に掛かる主な費用〉
・仲介手数料(賃料1.1ヶ月分(税込))
・前家賃(1ヶ月分)
・日割り家賃(月途中での賃料発生の場合)
・初回保証委託料(賃料合計の最大100%)
・火災保険料
The following two tabs change content below.
SOHO東京をご覧頂きましてありがとうございます。
お問い合わせに関しては、営業担当よりご連絡させて頂きます。
最新記事 by SOHO東京スタッフ (全て見る)
-
中目黒5分、気持ちの良い築浅デザイナーズSOHO
[目黒区/43万/70㎡] - 2026年3月2日 -
恵比寿、ガーデンプレイス内の大型リノベオフィス
[渋谷区/278万/163㎡] - 2025年12月26日 -
大きな空と運河を望む。湾岸エリアのシェアオフィス
[中央区/¥ASK/94㎡~]
- 2025年10月21日 - 【募集終了】田町、運河沿いのヴィンテージリノベオフィス - 2025年8月28日
- 【募集終了】代々木八幡、ナチュラルなメゾネットSOHO - 2024年5月30日
