物件をブックマーク
西新宿エリアの大きめのリノベーションオフィス、使い勝手の考えられた優等生感ある賃貸オフィス。
*今回の募集は1階区画、2026年2月引渡し予定、現テナントと内見調整可能です。
西新宿エリアのリノベーションオフィスをご紹介しよう。
ワンフロアにワンテナント、ワークプレイスとふたつのミーティングスペースをもつワンフロア・ワンテナントという構成。
リノベーションオフィスの少ない新宿・西新宿エリアにおいては比較的面積の取れる物件となる。
新宿中央公園の西側を走る通りを一本入ったところ。
室内だけでなくエントランス周りもリニューアルされており引き締まった印象を受ける。
こちらは3Fのフロア、テナントサインや受付を設置できるスペースが出来上がっている。
エントランスからワークスペースを経由することなく、大小の会議室にそれぞれアクセスができる導線。
小さな方は6名程度のミーティングスペースが取られている。
大きなミーティングスペースは8名想定のスペース、ミーティングスペースの什器は貸主からのプレゼントとなる。
ワークスペースとの壁はガラス壁になっているので抜け感がある。
視線が気になる場合には部分的にスモークシートを貼ると良さそう。
ワークスペースは40坪弱のスペースになるだろうか。
30名程度は余裕を持って働ける空間、天井高は3m以上はあるだろう。
一部天窓もあり明るく天井の高い開放的なワークスペースが味わえるはずだ。
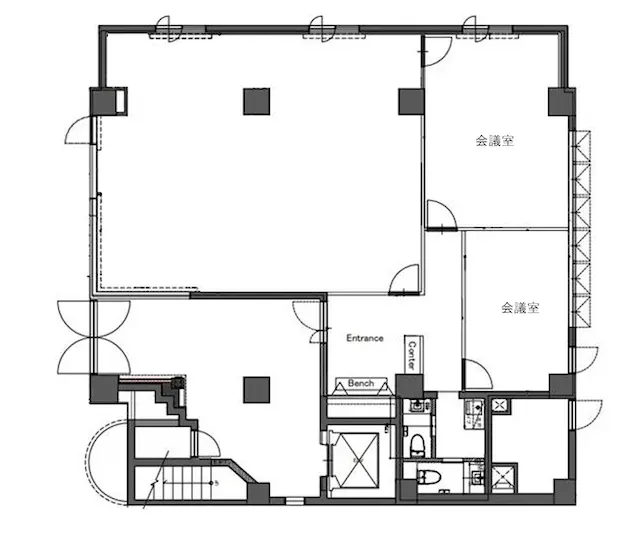
さて、こちらは1F。
3Fと比べるとややコンパクトになるが基本的な構成は変わらない。
テナントサインの掲出できるエントランスから大小のミーティングスペースへのアクセスは確保される。
ミーティングスペースも6名想定と8名想定のサイズ感は変わらない。
41坪のサイズ感でこのサイズ感のミーティングスペースが確保できる空間は珍しいのではないだろうか。
ワークスペースはその分ややコンパクトに感じるかもしれない。
余裕を持って15名程度、工夫すれば20名以上というサイズ感だろうか。

*今回の募集は1階区画です。写真は3Fのものになります。
空調のみ既存の物を使用しているが、それ以外はスケルトンから作りこまれたリノベーションオフィス。
メインのワークスペースとふたつのミーティングスペースは使い勝手が考えられたレイアウト。
天井高が高い空間は気持ちよく感じられるはず、一度ご覧いただきたい物件だ。
最新記事 by 木内 (全て見る)
-
幡ヶ谷、空間構成が個性的なペントハウスSOHO
[渋谷区/46万/94㎡]
- 2026年1月20日 -
原宿、明治通り沿いホワイトベースのセットアップ
[渋谷区/ASK/180㎡~] - 2026年1月20日 -
神宮前・北参道、複合用途に適した新築物件
[渋谷区/100万~/104㎡~] - 2026年1月20日 -
目黒、ラフな質感で統一されたリノベ一棟ビル
[品川区/189万/284㎡] - 2026年1月15日 -
三軒茶屋、抜け感抜群のセットアップオフィス
[世田谷区/57万/78㎡] - 2026年1月15日
