港区

白金、スタジオ向きの天高倉庫風ホワイト空間
[港区/51万/104㎡]

Loading物件をブックマーク

管理番号:S302035

港区・白金エリア。
白金高輪駅徒歩8分、約31坪の天高倉庫風の事務所・フォトスタジオ向け物件。

*外部貸しの場合は必ず借主社員が常駐すること。
*動画撮影・音楽スタジオその他、音・振動が発生する業種は不可。

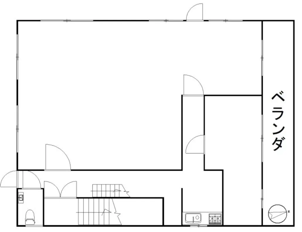
港区白金の住宅街に佇むRC造3階建ての最上階に、約104㎡のオフィス・フォトスタジオ向けの物件が登場しました。
天井高は最大3mと、倉庫のような開放的な空間が最大の特徴で、スチール鉄骨の構造がそのまま見える無骨なデザインが、クリエイティブな業種のワークスペースに最適です。メインスペースは白く塗装されたスチール構造の天井が特徴的で、倉庫コンバージョンを思わせる開放的な空間です。
約3m天高を活かした大空間は撮影スペースとしての利用にも適しています。複数の窓から自然光が差し込み、明るく清潔感のある室内環境が保たれています。床はコンクリート仕上げで、什器やセットの搬入・設置にも便利な仕様です。白金エリアでこれだけの天高と広さを備えた賃貸オフィスは希少な存在といえるでしょう。
事務所としてデスクを並べる使い方はもちろん、クリエイティブなビジネスの拠点としても活用できます。メインスペースとは別に、木目調フローリングの個室スペースも備わっています。控室として利用がイメージできそう。
バルコニーに面した大きな掃き出し窓からは自然光がたっぷりと入り、明るい空間です。オフィスであれば個室としてのミーティングルームや、集中作業スペース、休憩室など、多目的に活用できます。メインスペースとの使い分けで、より効率的なオフィス運営が実現します。

階段を上がった3階のワンフロアを贅沢に使える間取りで、約104㎡(約31坪)の面積を自由にレイアウトできます。
大空間を活かしつつ、個室でプライバシーも確保できる、バランスの取れた間取りです。
ポテンシャルのある白箱をぜひお早めにご検討ください。

 

管理番号:S302035
賃料:¥460,000(税込¥506,000)
共益費:なし
住所:港区白金3
広さ:104.11㎡(31.49坪)
アクセス:東京メトロ南北線・都営三田線「白金高輪」駅 徒歩8分、東京メトロ日比谷線「広尾」駅 徒歩15分
構造・規模:鉄筋コンクリート造 地上3階建 3階部分
築年:1969年
敷金:3ヶ月(業種によって変動あり)
礼金:3ヶ月
備考:定期借家契約(2年間)、保証会社利用必須、火災保険加入必須、動画撮影・音楽スタジオその他 音・振動が発生する業種不可、再契約料(新賃料の1ヶ月分+再契約事務手数料+消費税)、エレベーターなし、外部貸しの場合は必ず借主社員が常駐すること、残置物(エアコン3台、キッチン一式、トイレ一式、給湯器、換気扇、洗面台、インターホン、可動式棚) 

 

〈上記以外で契約時に掛かる主な費用〉
・仲介手数料(賃料1.1ヶ月分(税込))
・前家賃(1ヶ月分)
・日割り家賃(月途中での賃料発生の場合)
・初回保証委託料(賃料合計の最大100%)
・火災保険料
The following two tabs change content below.
SOHOオフィスのファインディング、コンテンツ制作、リーシングを担当。 神奈川生まれ。東京藝術大学では油画を専攻、絵画や漫画などの創作活動を行う。その後、建築業界でリノベーションのセールスを経て、トランスリアルに参画。
Return Top