物件をブックマーク
管理番号:S301926
秋葉原駅徒歩4分。無機質な天井が調和した落ち着きある内装が特徴のセットアップ
秋葉原駅から徒歩4分。
近年はIT企業やスタートアップの集積地としても注目を集めるこのエリアに、セットアップオフィスが登場しました。
内装や家具がすでに整えられた空間は、入居後すぐに業務を開始できる実用性の高さが魅力。
無駄のないレイアウトと落ち着いたデザインが、日々の業務をスムーズに支えてくれます。

落ち着いたトーンの外観に、エントランスのライティングがアクセントとなった印象的なファサード。
周辺はオフィスビルが立ち並び、ビジネス利用に適した環境が整っています。

木目のデスクと白を基調とした内装が調和した、落ち着きのあるワークスペース。
天井は設備をあえて見せたスケルトン仕様とすることで、空間に広がりと軽やかさをもたらしています。
無機質になりすぎず、程よくデザイン性を感じられるバランスの良い仕上がりです。
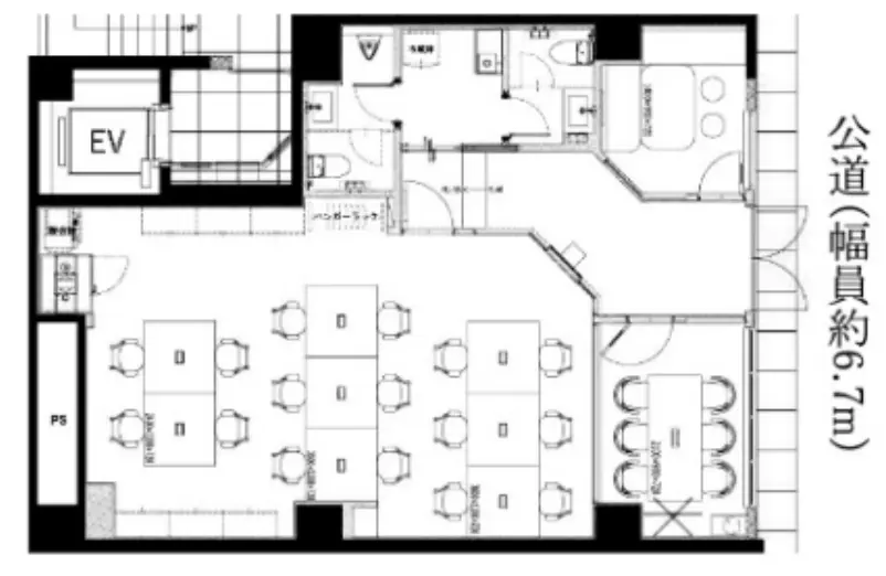
約28坪のワンフロアは、ゆとりを持ってデスクが配置されたレイアウト。
約28坪のワンフロアは、ゆとりを持ってデスクが配置されたレイアウト。現状のセットアップでは15〜25名程度の利用を想定しており、各席の間隔も確保されているため、窮屈さを感じにくい設計です。
また、中央に島型でデスクを配置することで、チーム内のコミュニケーションが取りやすく、プロジェクト単位での業務にも適した構成。
また、中央に島型でデスクを配置することで、チーム内のコミュニケーションが取りやすく、プロジェクト単位での業務にも適した構成。配線口も各デスクに備えられており、実務面でもストレスの少ない環境が整っています。


執務室と隣接する会議室は、ガラス越しにゆるやかにつながる設計。
空間を分けつつも閉塞感を抑え、オフィス全体に一体感を持たせています。
室内には、webミーティングのブースも設置されており、オンライン会議の際に活躍しそうです。
空間を分けつつも閉塞感を抑え、オフィス全体に一体感を持たせています。
室内には、webミーティングのブースも設置されており、オンライン会議の際に活躍しそうです。

コンパクトながら清潔感のある水回り設備。男女別トイレや洗面スペースが整備されており、日常利用においてもストレスの少ない設計です。

秋葉原駅徒歩4分というアクセスに加え、岩本町駅も利用可能な立地。
都内主要エリアへの移動がしやすく、日々の通勤から来客対応までストレスの少ない環境が整っています。
本物件は、家具・什器付きのセットアップオフィスとして、入居後すぐに業務を開始できる点が大きな魅力。
ぜひ一度、現地に足を運んでみてください。
管理番号:S301926
賃料:¥825,050(税込 ¥907,555)
共益費:賃料に含む
住所:千代田区神田佐久間町3
広さ:94.06㎡(28.45坪)
アクセス:JR山手線・東京メトロ日比谷線「秋葉原駅」徒歩4分、都営新宿線「岩本町駅」徒歩6分
構造・規模:RC造 地上6階建 1階部分
築年:1985年
敷金:なし
礼金:なし
備考:普通借家契約(2年間)、保証会社利用必須、火災保険必須、 契約開始より12ヶ月間は解約不可(違約金あり)、原状回復義務なし(クリーニング費用負担あり)
賃料:¥825,050(税込 ¥907,555)
共益費:賃料に含む
住所:千代田区神田佐久間町3
広さ:94.06㎡(28.45坪)
アクセス:JR山手線・東京メトロ日比谷線「秋葉原駅」徒歩4分、都営新宿線「岩本町駅」徒歩6分
構造・規模:RC造 地上6階建 1階部分
築年:1985年
敷金:なし
礼金:なし
備考:普通借家契約(2年間)、保証会社利用必須、火災保険必須、 契約開始より12ヶ月間は解約不可(違約金あり)、原状回復義務なし(クリーニング費用負担あり)
〈上記以外で契約時に掛かる主な費用〉
・仲介手数料(賃料1.1ヶ月分(税込))
・前家賃(1ヶ月分)
・日割り家賃(月途中での賃料発生の場合)
・初回保証委託料(賃料合計の最大100%)
・火災保険料
The following two tabs change content below.
SOHOオフィスのファインディング、コンテンツ制作、リーシングを担当。
新潟生まれ。大学卒業後、アイウェア企業に入社。店舗での店長経験などを経てトランスリアルに参画。
最新記事 by 村山 (全て見る)
-
秋葉原、天高約3mの利便性を追求したセットアップ
[千代田区/91万/94㎡] - 2026年4月2日 -
代々木公園、清潔感あるメゾネットSOHO
[渋谷区/26万/57㎡] - 2026年3月30日 -
元麻布、高台に完成した築浅の天高SOHOで
[港区/66万〜/68㎡〜] - 2026年3月27日 -
青葉台、魅力とこだわりが見える撮影スタジオ居抜き
[渋谷区/64万/80㎡] - 2026年3月27日 -
六本木、品格を纏う駐車場付きSOHO空間
[港区/204万/146㎡] - 2026年3月27日
