物件のポイント
- 恵比寿駅徒歩9分・渋谷駅徒歩11分
- 渋谷区東2エリア
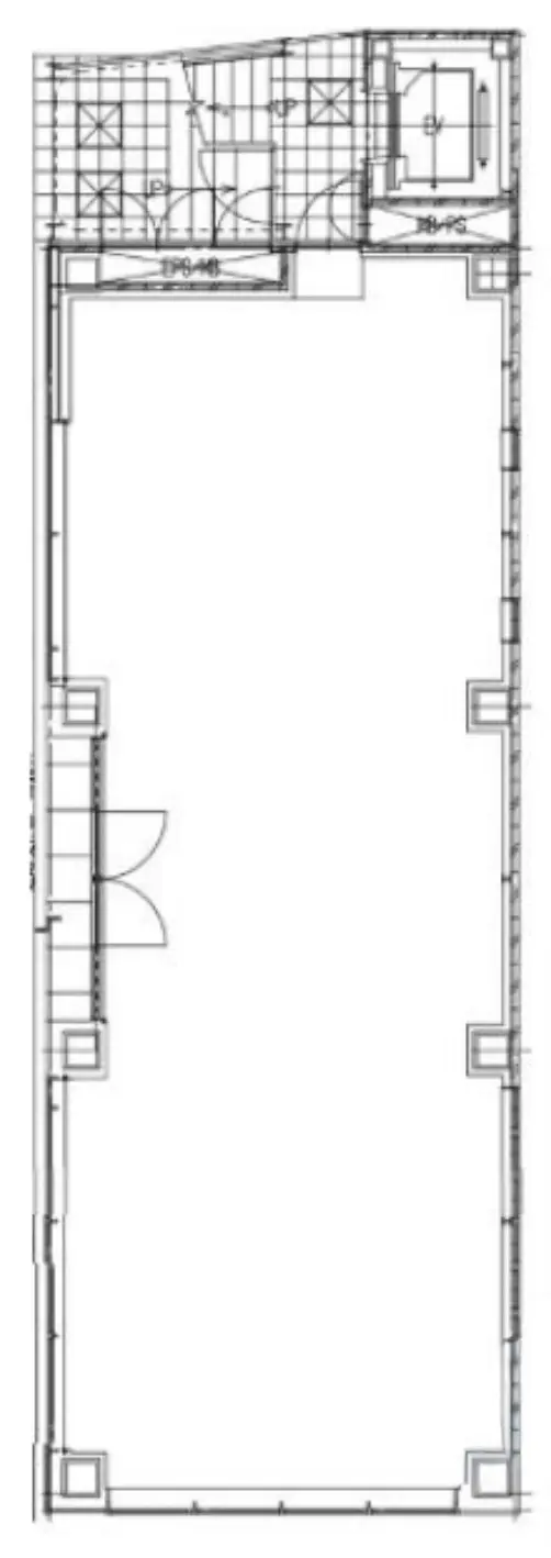
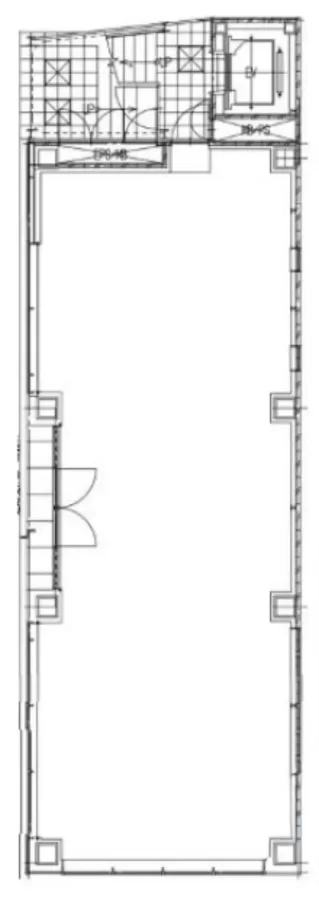
- 96.91㎡(29.31坪)のオフィス空間
- S造 地上8階建 1階部分、1985年築
- 賃料 ¥1,200,000(税込 ¥1,320,000)
物件の特徴

管理番号:S301908
*2026年7月1日から入居可能予定。
*居抜き相談可能。(2026年4月末日までの契約に限る。)
*居抜き相談可能。(2026年4月末日までの契約に限る。)
明治通り沿いの1階路面店。居抜き相談可能、天高約3.4mが生む圧倒的な開放感。
恵比寿と渋谷の中間に位置する東エリア。
落ち着いた街並みの中に、感度の高いショップやオフィスが点在するこのロケーションに、明治通り沿いの1階路面区画が登場しました。
ガラス張りのファサードが印象的なビルの一角に広がるのは、天高約3.4mの開放感あるワンフロア。
店舗としての発信力はもちろん、ショールームやオフィスとしても多様な可能性を感じさせてくれます。

ガラス張りのファサードが印象的なデザインビル。明治通りに面した立地で視認性が高く、来訪者への導線もつくりやすい外観です。
現在は前テナントの内装が残っており、4月末までの契約であれば居抜きもご相談可能。コンクリート床とグリーン系の壁面、露出天井によるインダストリアルな内装です。天井高約3.4mのボリューム感が、空間に圧倒的な抜けを生み出しています。
スケルトンに近い状態のため、ブランドの世界観をしっかり表現できる余白があります。居抜きではない場合はスケルトンでのお渡しの予定となります。
約29.31坪(96.91㎡)のワンフロアは、10〜20名程度のオフィスやショールーム利用にフィットするサイズ感。レイアウトの自由度も高く、用途に応じた空間設計が可能です。


アパレルやプロダクト展示、ギャラリー、カフェ併設オフィスなど、ブランド発信を伴う業態に特に適しています。

恵比寿・渋谷の中間に位置する東エリア。
1階路面、天高約3.4m、さらに居抜き相談可能という希少性が光る本物件。
恵比寿エリアで、ブランドの旗艦拠点を構えたい方へ、このサイズ・この立地の路面店は、そう多くはありません。
気になる方は、ぜひお早めにご相談ください。
賃貸条件
| 管理番号 | S301908 |
|---|---|
| 賃料 | ¥1,200,000(税込 ¥1,320,000) |
| 共益費 | 賃料に含む |
| 住所 | 渋谷区東2 |
| 広さ | 96.91㎡(29.31坪) |
| アクセス | JR山手線・JR埼京線・JR湘南新宿ライン・東京メトロ日比谷線「恵比寿駅」徒歩9分、JR各線・東京メトロ各線「渋谷駅」徒歩11分 |
| 構造・規模 | S造 地上8階建 1階部分 |
| 築年 | 1985年 |
| 敷金 | 8ヶ月 |
| 礼金 | 1ヶ月 |
| 備考 | 定期借家契約(2年間)、保証会社利用必須、火災保険必須、店舗・事務所可、再契約料(新賃料の1ヶ月)、 |
契約時にかかる主な費用
〈上記以外で契約時に掛かる主な費用〉
・仲介手数料(賃料1.1ヶ月分(税込))
・前家賃(1ヶ月分)
・日割り家賃(月途中での賃料発生の場合)
・初回保証委託料(賃料合計の最大100%)
・火災保険料





