物件をブックマーク物件のポイント
- 新宿区四谷坂町エリア
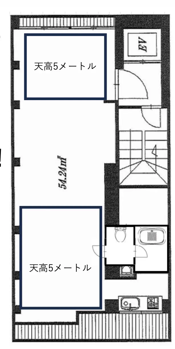
- 54.24㎡(16.40坪)のオフィス空間
- 鉄骨造 地上8階建 8階部分、2002年築
- 賃料 ¥250,000(税込¥275,000)
物件の特徴
管理番号:S302128新宿区・四谷エリア。一部天高5mのワンフロア・ワンオフィス。
新宿区四谷坂町は、都営新宿線「曙橋」駅と東京メトロ南北線・有楽町線「市ヶ谷」駅、JR中央線「四ツ谷」駅の間に位置する、落ち着いた街並みが広がるオフィスエリアです。
そんな四谷坂町の靖国通り沿いに建つ、鉄骨造8階建ての賃貸オフィスビル最上階のご紹介です。
スタイリッシュなグレーの外観。
靖国通り沿いに面しながらも、一歩入れば閑静な住宅街が広がり、ビジネスと居心地の良さを両立できる立地が魅力です。5線4駅が利用でき、新宿・飯田橋・永田町方面へのアクセスにも優れています。

ワンフロアに1オフィスという贅沢な造りで、プライベート感のある独立した執務空間を確保できます。
本物件の最大の特徴は、一部天井高が約5mに達する開放的な空間です。通常のオフィスでは味わえないダイナミックなスケール感があり、クリエイティブな業種やデザイン事務所にも最適な環境です。面積は約16.40坪とコンパクトながら、天高を活かした広がりのある使い方や、開放感のあるワークスペースとしてのレイアウトが可能です。
現在は前テナントの荷物が残っていますがこちらは撤去してお引き渡しの予定です。

最寄りの都営新宿線「曙橋」駅からは徒歩6分。4駅5路線が利用可能です。新宿方面はもちろん、永田町・溜池山王方面、飯田橋・後楽園方面へもスムーズにアクセスでき、都内各所への移動に利便性の高いオフィスです。
なかなか探しても出てこない「天高5m」を一度現地で味わってみては。
賃貸条件
| 管理番号 | S302128 |
|---|---|
| 賃料 | ¥250,000(税込¥275,000) |
| 共益費 | ¥10,000(税込¥11,000) |
| 住所 | 新宿区四谷坂町 |
| 広さ | 54.24㎡(16.40坪) |
| アクセス | 都営新宿線「曙橋」駅徒歩6分、東京メトロ南北線・有楽町線「市ヶ谷」駅徒歩8分、JR中央・総武線「市ヶ谷」駅徒歩10分、JR中央線「四ツ谷」駅徒歩10分 |
| 構造・規模 | 鉄骨造 地上8階建 8階部分 |
| 築年 | 2002年 |
| 敷金 | 6ヶ月(償却1ヶ月) |
| 礼金 | なし |
| 備考 | 普通借家契約(2年間)、保証会社利用必須、火災保険加入必須、24時間利用可能、土日・祝日利用可、更新料(新賃料1ヶ月)、短期解約違約金あり、入居可能日5/1〜 |
契約時にかかる主な費用
〈上記以外で契約時に掛かる主な費用〉
・仲介手数料(賃料1.1ヶ月分(税込))
・前家賃(1ヶ月分)
・日割り家賃(月途中での賃料発生の場合)
・初回保証委託料(賃料合計の最大100%)
・火災保険料
The following two tabs change content below.
SOHOオフィスのファインディング、コンテンツ制作、リーシングを担当。
神奈川生まれ。東京藝術大学では油画を専攻、絵画や漫画などの創作活動を行う。その後、建築業界でリノベーションのセールスを経て、トランスリアルに参画。
最新記事 by 瀬川 (全て見る)
-
白金、スタジオ向きの天高倉庫風ホワイト空間
[港区/51万/104㎡] - 2026年4月8日 -
中目黒、桜の木を囲むデザイナーズメゾネットSOHO
[目黒区/22万/38㎡] - 2026年4月7日 -
曙橋6分、一部天高5mの最上階ワンフロアオフィス
[新宿区/28万/54㎡] - 2026年4月6日 -
御成門2分、共用部が彩る天高4m大小新築オフィス
[港区/38万~/24㎡~] - 2026年4月1日 -
六本木、レベル差を楽しむデザイナーズ空間
[港区/38万/34㎡] - 2026年4月1日
