物件をブックマーク
「中目黒駅」より徒歩5分。
2020年8月末に竣工したばかりの新築デザイナーズ物件の募集が開始となりました。
コンパクトなメゾネットプランは住居兼事務所に適しています。
外観は大きなガラスの開口部が特徴的ながらも、落ち着いた雰囲気の物件です。
恵比寿・代官山にも徒歩9分で行けます。
内装はコンクリートの壁とフローリングの床が斬新かつスタイリッシュです。
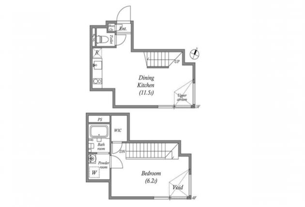
リビングスペースは長方形になっており、比較的自由にレイアウトできそうです。
メインのワークスペースとして2,3名ほどでのご利用にいかがでしょうか。
階段を登ると6.2畳のスペースとお風呂、パウダールームがあります。
お部屋は比較的コンパクトですが、窓が大きいため採光豊かで開放的なリラックス空間としてお使いいただけます。
3階にはトイレとキッチン、4階には浴室があり、どれも新築ならではの清潔感が見られます。
閑静な住宅街にある本物件ですが、駅からのアクセスも良く、日々の生活では充分な住みやすさがあります。
壁と天井もコンクリート打ちっ放しというデザイナーズ仕様。
コンパクトサイズのオフィスでもしっかりと内装にこだわりたいという方におすすめです。
管理番号:S160737
賃料:
管理費:
住所:東京都目黒区中目黒1
広さ:42.66㎡
アクセス:東京メトロ日比谷線「中目黒駅」徒歩5分・規模:RC構造 4階建地下1階 3階部分
築年:2020年
敷金:
礼金:
備考:保証会社加入必須、更新料(新賃料1ヶ月分)、登記不可、住居契約
〈上記以外で契約時に掛かる主な費用〉
・仲介手数料(賃料1ヶ月分税別)
・前家賃(1ヶ月分)
・日割り家賃(月途中での賃料発生の場合)
・初回保証委託料(賃料合計の最大100%)
・火災保険料
最新記事 by 村山 (全て見る)
-
明治神宮前、白と開放感を得るデザイナーズ事務所
[渋谷区/58万/86㎡] - 2026年3月3日 -
駒場エリア。聡明な緑に包まれるデザイナーズSOHO
[目黒区/35万/51㎡] - 2026年3月2日 -
恵比寿徒歩5分、ミニマルデザイナーズで始める
[渋谷区/37万/38㎡] - 2026年2月27日 -
表参道、スケルトン調デザイナーズオフィス
[港区/228万/261㎡]
- 2026年2月26日 -
千駄ヶ谷、100㎡越えの好条件フローリングリノベ
[渋谷区/55万/110㎡]
- 2026年2月25日
