物件をブックマーク
管理番号:S298130
*写真の家具はつきません
*事務所利用可能(法人登記可能)
*事務所利用可能(法人登記可能)
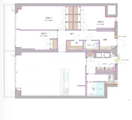
表参道徒歩7分、静穏と機能性を兼ね備えた3LDKのSOHO
南青山4丁目、周辺には美術館やギャラリー・伝説的なライブスポット「ブルーノート東京」など、表参道の洗練された商業的な側面と居住空間としての落ち着きを手にすることができるエリア。
文字通り「住みながら働く」もしくは「閑静な環境で働く」を叶えたい方におすすめの一室です。
文字通り「住みながら働く」もしくは「閑静な環境で働く」を叶えたい方におすすめの一室です。

白を基調とした外壁に、立体的なテクスチャーが印象的なレジデンス。
やわらかな曲線を描くコーナー部分が建物に表情を与え、周囲のマンション群の中でもどこか品のある佇まいを見せています。
やわらかな曲線を描くコーナー部分が建物に表情を与え、周囲のマンション群の中でもどこか品のある佇まいを見せています。
*家具はつきません元々分譲用マンションとして構成され室内は丁寧な作りのマンションタイプ。
リビングダイニングは長方形に広がる間取りは、癖も少なくレイアウトがしやすい印象。
事務所単体の利用ですとカウンターキッチンの存在感は気になる所ですが、ランチには社内間で料理を楽しみながらコミュケーションシーンに用いるのも本物件の利点。
リビングダイニングは長方形に広がる間取りは、癖も少なくレイアウトがしやすい印象。
事務所単体の利用ですとカウンターキッチンの存在感は気になる所ですが、ランチには社内間で料理を楽しみながらコミュケーションシーンに用いるのも本物件の利点。

明るい木目フローリングとニュートラルな壁面は、オフィス仕様へもスムーズに転用しやすいベースデザイン。
内装がシンプルだからこそ配置する家具と植栽にこだわることで企業のカラーを感じさせるレイアウトを検討してみてほしい。
内装がシンプルだからこそ配置する家具と植栽にこだわることで企業のカラーを感じさせるレイアウトを検討してみてほしい。


個室は3部屋。
事務所利用では、「社内用の会議室」「集中ブース」「応接間」といった構成にも柔軟に対応できます。もちろん住居兼事務所利用であれば、居住空間と執務室の棲み分けもしやすい。
事務所利用では、「社内用の会議室」「集中ブース」「応接間」といった構成にも柔軟に対応できます。もちろん住居兼事務所利用であれば、居住空間と執務室の棲み分けもしやすい。

バルコニーも広く、気分転換やちょっとした外気浴にも活用できそうです。

水回りもゆとりある設計。
ダブルボウル洗面、広めのバスルームなど、レジデンスならではのグレードの高い水回り。来客時の印象も上品です。
ダブルボウル洗面、広めのバスルームなど、レジデンスならではのグレードの高い水回り。来客時の印象も上品です。

いかにもオフィスではない、柔らかさのある空間は、クリエイティブワークやブランディングを重視する企業に特にフィットしてくれるはずです。
ぜひ一度足を運んでみてはいかがでしょうか。
ぜひ一度足を運んでみてはいかがでしょうか。
管理番号:S298130
賃料:¥690,000(税込 ¥759,000)
共益費:なし
住所:港区南青山4
広さ:93㎡(28.13坪)
アクセス:東京メトロ銀座線「表参道駅」徒歩7分、東京メトロ千代田線「表参道駅」徒歩7分、東京メトロ銀座線「外苑前駅」徒歩13分
構造・規模:RC造 地上8階建 4階部分
築年:1968年
敷金:2ヶ月
礼金:1.1ヶ月
備考:普通借家契約(2年間)、保証会社利用相談必須、火災保険必須、解約予告(6ヶ月前)、入居可能日(即可能)、駐輪場(契約時5,000円)、ペット不可、SOHO・事務所利用可能(法人登記可能)、飲食店・サロン・エステ・民泊・美容室等の不特定多数業種不可
賃料:¥690,000(税込 ¥759,000)
共益費:なし
住所:港区南青山4
広さ:93㎡(28.13坪)
アクセス:東京メトロ銀座線「表参道駅」徒歩7分、東京メトロ千代田線「表参道駅」徒歩7分、東京メトロ銀座線「外苑前駅」徒歩13分
構造・規模:RC造 地上8階建 4階部分
築年:1968年
敷金:2ヶ月
礼金:1.1ヶ月
備考:普通借家契約(2年間)、保証会社利用相談必須、火災保険必須、解約予告(6ヶ月前)、入居可能日(即可能)、駐輪場(契約時5,000円)、ペット不可、SOHO・事務所利用可能(法人登記可能)、飲食店・サロン・エステ・民泊・美容室等の不特定多数業種不可
〈上記以外で契約時に掛かる主な費用〉
・仲介手数料(賃料1.1ヶ月分(税込))
・前家賃(1ヶ月分)
・日割り家賃(月途中での賃料発生の場合)
・初回保証委託料(賃料合計の最大100%)
・火災保険料
The following two tabs change content below.
SOHOオフィスのファインディング、コンテンツ制作、リーシングを担当。
東京生まれ。俳優として舞台、映像作品、CMなど250作品以上に出演。舞台脚本家、演出家として15作品の制作を経て、トランスリアルに参画。
最新記事 by 和久井 (全て見る)
-
南青山、「住」と「働」に品格を与える3LDKのSOHO
[港区/76万/93㎡] - 2026年2月14日 -
目黒、駐車場2台付、工芸が彩る奥深い戸建SOHO
[品川区/110万/215㎡] - 2026年2月14日 -
南青山、こだわりを感じる上質素材のオフィス店舗
[港区/49万/51㎡] - 2026年2月11日 -
外苑前、流行の地に生まれたリノベオフィス
[渋谷区/24万/39㎡] - 2026年2月10日 -
西馬込、天高7m、スタジオ利用特化の一棟居抜き
[大田区/330万/756㎡] - 2026年2月7日
