物件をブックマーク
「表参道」駅 徒歩5分、南青山5丁目アドレス。
アパレルショールームを居抜く、約90坪のユニークでダイナミックな地下空間。
骨董通りから六本木通り方面に少し入った、青山学院大学の裏手に位置する本物件。
重厚なビンテージマンションの地下区画が今回ご紹介する区画です。
写真右、一部タイル張りになっている箇所から階段で地下にアクセスをします。
15段ほどの短い階段を降りると、アンティーク調のドアが使用されたエントランスが迎えてくれます。
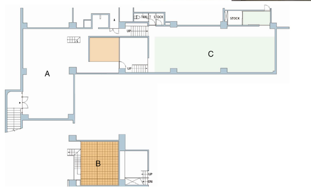
総面積約90坪295平米の広さを誇る本物件ですが、少し複雑な構造になっています。
スペースは大きく分けて3つ、下記間取り図にA,B,Cと名称を付けていますので、こちらをご参照していただけると分かりやすいかと思います。
まずはエントランスに広がる【A】のスペース。
間仕切りの造作はありますが、長方形の形をした綺麗な空間です。
床はフローリングで天高は3m、唯一このスペースのみエントランスからの自然光が少し入ります。
【A】のスペースを抜けると、ロフト部分【B】に上がる階段と、写真左の【C】に繋がる階段が現われます。
【B】の下にも2つほどコンパクトな空間が存在します。
【B】はタイルの床に収納の造作が加えられた、天高2.15mの10帖ほどのスペース。
商談スペースや、ラフなコミュニケーションを取るためのスペースとして利用ができそうです。
本物件で一番広いのがこの【C】のスペース。
片側に動線を残した、天高3.15m梁下2.16mの綺麗な間取り。
床は一部タイル、天井はスケルトン仕様となっています。
写真奥側に造作でもう一つスペースが作られています。
造作で仕切られたスペースがこちら。
【B】のスペースと同程度の広さです。

元々アパレルのショールームとして利用されていただけあり、非常にこだわりのある造作が残されています。
事務所利用だけでは想定が難しい賃料ではありますが、それぞれテーマの異なる3つのスペースを上手く活用することができれば、他にはない唯一無二な空間になるでしょう。
写真と文章だけでは伝わりにくいこの本物件の魅力、是非直接ご覧ください。
管理番号:S153795
賃料:
管理費:
住所:港区南青山5
広さ:294.46㎡(89.07坪)
アクセス:千代田線・銀座線・半蔵門線「表参道」駅 徒歩5分
構造規模:RC造8階・地下2階建 B1階部分
築年数:1971年
敷金:
礼金:
備考:定期借家契約5年(6ヵ月前予告)、火災保険加入必須、保証会社必須、駐車場代要確認
〈上記以外で契約時に掛かる主な費用〉
・仲介手数料(賃料1ヶ月分税別)
・前家賃(1ヶ月分)
・日割り家賃(月途中での賃料発生の場合)
・初回保証委託料(賃料合計の最大100%)
・火災保険料
最新記事 by 村山 (全て見る)
-
神田2分、開放感を演出する天井スケルトンオフィス
[千代田区/61万/79㎡]
- 2026年1月16日 -
五反田5分、共用部を活かすコンパクトオフィス
[品川区/42万/34㎡]
- 2026年1月15日 -
目黒6分、デザイン性溢れるメゾネットSOHO
[目黒区/33万/49㎡]
- 2026年1月14日 -
西麻布、光広がるガレージ付き一棟SOHO
[港区/132万/279㎡]
- 2026年1月9日 -
目黒、敷礼0の家具付きセットアップデザイナーズ
[品川区/100万/130㎡]
- 2026年1月9日
