物件をブックマーク
管理番号:S293908
目黒・白金台エリアのリノベーションされた一棟ビル。陽当たりの良さとラフな質感を堪能して。
目黒駅から徒歩9分、首都高速2号線沿いに完成したリノベーション一棟ビルをご紹介する。
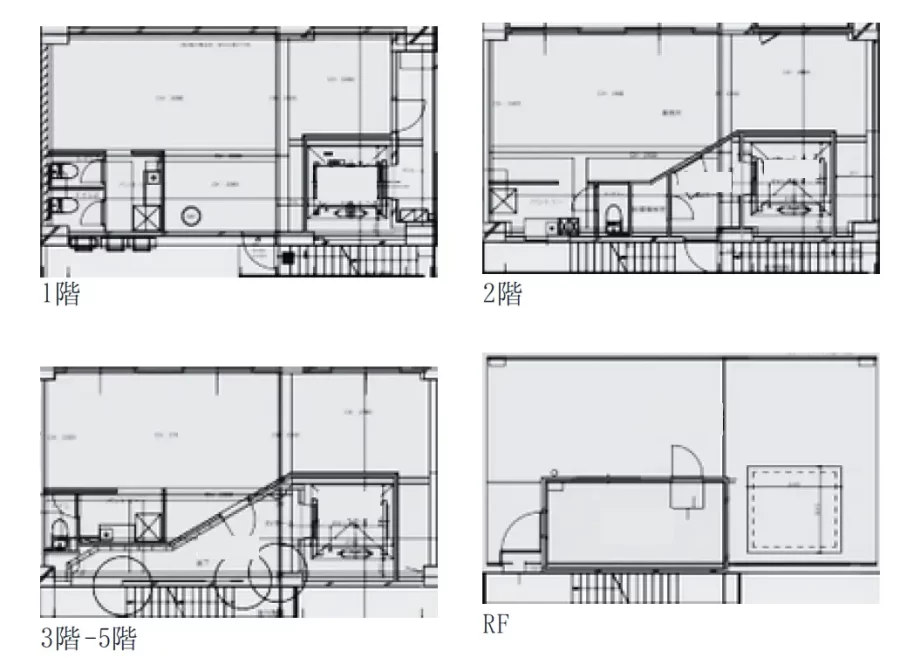
元々はメーカーの東京支社だった建物に耐震補強工事と元々なかったエレベーターを導入。
さらに一棟全体で躯体のラフな質感を活かしたリノベーションが施された意欲的な物件となっている。


基本的には事務所の想定ではあるものの一棟貸しなので用途は柔軟。
1階はショールームや物販のショップとしての適正があるだろう。
ただし、前面道路は人通りを面を考慮すると、通りがかりの人が来店するというイメージはやや薄いと言えるだろう。

2階は壁天井共に白でまとめ、3階は躯体そのままの部分が多く露出している。
各フロア15坪ほどなのでワークスペースで考えると5名から8名程度のイメージが良いだろう。
事業部ごとにフロアを分けて考えてみても良いだろうか。


4階・5階は周囲のビルとの干渉がなくなり窓がクリアガラスになったことで三面が窓で自然彩光が申し分ないフロア。
この日当たりの良さは自然とスタジオ利用を検討したくなってしまうだろう。
スタジオ利用の場合、室内は縦長のプランとなるのでその点はご留意を。

屋上は周囲を遮るものがなく抜群の眺望を抜け感が味わえる。
東京タワーから品川方面は遮るものがなく、目黒方面の眺望もある程度確保されているので都内の各種花火大会は堪能できるだろう。
塔屋部分はストレージにもなっているので是非活用してみてほしい。

各フロアに室内の窓には腰の高さにちょっとしたテーブルが設置されている。
コーヒー片手にちょっと休息を取れるようなギミックが面白いではないか。

水回りは各フロアで数やデザインが異なるものの、スケルトンからのリノベーションなので安心のクオリティだ。

ワンフロアのサイズはコンパクトではあるものの、ミニマムなデザインで陽当たり良好なリノベーション一棟ビル。
用途についは柔軟な考え方なので、一般的なオフィスではできないような要望を是非とも叶えていただきたい。
管理番号:S293908
賃料:¥1,720,000(税込 ¥1,892,000)
賃料:¥1,720,000(税込 ¥1,892,000)
共益費:賃料に含む
住所:品川区上大崎1
広さ:284.3㎡
アクセス:山手線・目黒線「目黒駅」徒歩9分、南北線・三田線「白金台駅」徒歩11分
構造・規模:RC造 地上6階建
築年:1971年
敷金:ご相談(3ヶ月〜6ヶ月)
礼金:1ヶ月
備考:定期借家契約(3年〜5年・再契約相談)、保証会社利用相談、火災保険必須、エレベーターあり、ペット相談、重飲食不可
住所:品川区上大崎1
広さ:284.3㎡
アクセス:山手線・目黒線「目黒駅」徒歩9分、南北線・三田線「白金台駅」徒歩11分
構造・規模:RC造 地上6階建
築年:1971年
敷金:ご相談(3ヶ月〜6ヶ月)
礼金:1ヶ月
備考:定期借家契約(3年〜5年・再契約相談)、保証会社利用相談、火災保険必須、エレベーターあり、ペット相談、重飲食不可
〈上記以外で契約時に掛かる主な費用〉
・仲介手数料(賃料1ヶ月分税別)
・前家賃(1ヶ月分)
・日割り家賃(月途中での賃料発生の場合)
・初回保証委託料(賃料合計の最大100%)
・火災保険料
The following two tabs change content below.
SOHOオフィスのファインディング、コンテンツ制作、リーシングを担当。
長野県生まれ。信州大学経済学部卒業後、リクルート、ベンチャーを経て当社へ。趣味は料理、テニス。フルマラソンはサブ4ランナー。不定期開催の社内パーティーでは料理長を務める一面も。
最新記事 by 木内 (全て見る)
-
原宿3分、街とつながるテラス付き一棟貸しビル
[渋谷区/388万/291㎡] - 2026年3月12日 -
羽田空港隣接、飛行機を望む天高フレキシブル空間
[大田区/118万~/165㎡~] - 2026年3月12日 -
三軒茶屋、抜け感抜群のセットアップオフィス
[世田谷区/57万/78㎡] - 2026年3月12日 -
恵比寿3丁目、店舗兼用可能な一棟貸しオフィスビル
[渋谷区/115万/136㎡] - 2026年3月10日 -
東松原、新築デザイナーズ物件をSOHOで
[世田谷区/27万~/42㎡~] - 2026年3月6日
