物件をブックマーク
管理番号:S294307
淡路町徒歩2分 働きやすさとデザイン性が共存、会議室付きセットアップオフィス
ビジネスとカルチャーが交差する神田須田町エリア。
淡路町〜神田駅も徒歩圏で交通利便性抜群です。
淡路町〜神田駅も徒歩圏で交通利便性抜群です。
使いやすさとデザイン性が両立された会議室付きセットアップオフィスをご紹介します。

細身のフォルムが縦に伸びる、スタイリッシュなファサードが印象的な建物です。
白を基調に、中央のブラックルーバーがアクセントとして入り、周囲のビル群の中でも静かに存在感を放ちます。
白を基調に、中央のブラックルーバーがアクセントとして入り、周囲のビル群の中でも静かに存在感を放ちます。

グレーを基調とした落ち着いた空間に、木目のデスクがよく映える、ゆとりのある執務室です。
デスクでは8名での作業が可能で、チーム内でのやり取りもスムーズに行えそうです。
デスクでは8名での作業が可能で、チーム内でのやり取りもスムーズに行えそうです。

窓際に設けられたカウンタースペースは、外の緑と街並みを眺めながら気分を切り替えられる心地よいワークエリア。
中央には丸テーブルとラウンジチェアが配置され、カジュアルな打ち合わせや休憩にも使いやすいレイアウトです。
中央には丸テーブルとラウンジチェアが配置され、カジュアルな打ち合わせや休憩にも使いやすいレイアウトです。
天井は一部スケルトンで抜け感があり、開放感があります。

ガラスパーテーションで区切られた会議室は、外のワークスペースと視線が抜ける開放的なつくり。
シンプルなブラックテーブルとチェアで統一された空間は、社内ミーティングはもちろん来客のある業種にも適した落ち着いた雰囲気です。
シンプルなブラックテーブルとチェアで統一された空間は、社内ミーティングはもちろん来客のある業種にも適した落ち着いた雰囲気です。

水回りは白とグレーで統一されており、清潔感があります。
お手洗いは2カ所と男女別でも利用可能。
お手洗いは2カ所と男女別でも利用可能。

「神田駅」徒歩5分、丸ノ内線・銀座線・JR利用可で都心アクセス良好なフルセットアップオフィス。
日々の業務にほどよい集中とリラックスをもたらすバランスの良いワークプレイスです。
落ち着いた環境で生産性の高いワークスタイルを求める企業に、特におすすめできる一室です。
管理番号:S294307
賃料:¥461,120(税込 ¥507,232)
共益費:賃料に含む
住所:千代田区神田須田町1
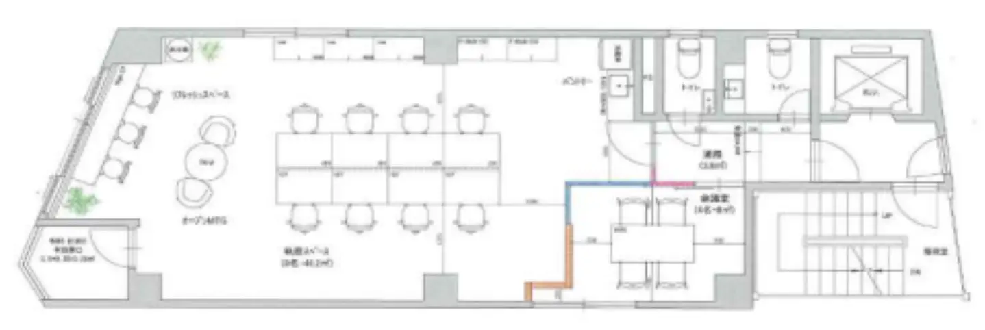
広さ:69.28㎡(20.96坪)
アクセス:丸の内線「淡路町駅」徒歩2分、都営新宿線「小川町駅」徒歩2分、銀座線「神田駅」徒歩3分、JR各線「神田駅」徒歩5分
構造・規模:SRC造 地上9階建 4階部分
築年:1980年
敷金:4ヶ月
礼金:なし
備考:定期借家契約(2年間)、保証会社利用必須、火災保険必須、再契約料(新賃料1ヶ月)
賃料:¥461,120(税込 ¥507,232)
共益費:賃料に含む
住所:千代田区神田須田町1
広さ:69.28㎡(20.96坪)
アクセス:丸の内線「淡路町駅」徒歩2分、都営新宿線「小川町駅」徒歩2分、銀座線「神田駅」徒歩3分、JR各線「神田駅」徒歩5分
構造・規模:SRC造 地上9階建 4階部分
築年:1980年
敷金:4ヶ月
礼金:なし
備考:定期借家契約(2年間)、保証会社利用必須、火災保険必須、再契約料(新賃料1ヶ月)
〈上記以外で契約時に掛かる主な費用〉
・仲介手数料(賃料1.1ヶ月分(税込))
・前家賃(1ヶ月分)
・日割り家賃(月途中での賃料発生の場合)
・初回保証委託料(賃料合計の最大100%)
・火災保険料
The following two tabs change content below.
SOHOオフィスのファインディング、コンテンツ制作、リーシングを担当。
新潟生まれ。大学卒業後、アイウェア企業に入社。店舗での店長経験などを経てトランスリアルに参画。
最新記事 by 村山 (全て見る)
-
恵比寿徒歩5分、ミニマルデザイナーズで始める
[渋谷区/37万/38㎡] - 2026年2月27日 -
表参道、スケルトン調デザイナーズオフィス
[港区/228万/261㎡]
- 2026年2月26日 -
千駄ヶ谷、100㎡越えの好条件フローリングリノベ
[渋谷区/55万/110㎡]
- 2026年2月25日 -
紀尾井町、上質なセットアップで環境を整える。
[千代田区/82万/97㎡]
- 2026年2月20日 -
駒場エリア。聡明な緑に包まれるデザイナーズSOHO
[目黒区/30万/51㎡] - 2026年2月20日
