物件をブックマーク
原宿・神宮前1丁目、スケルトンから作り込んだリノベーションオフィスを居抜きで賃貸募集。
原宿駅から徒歩5分、喧騒の絶えない竹下通りの裏手。
スケルトン状態から仕上げた設計会社のオフィスが居抜きでのご紹介となる。
原宿界隈でビルグレード・内装の質ともに高い物件は希少な存在だ。
若いパワーの溢れる竹下通りの裏通り、その通りから少し入ると今回の建物が現れる。
竹下通りとは一転してこの通りは落ち着きすら感じられる、原宿の極端で複雑で多様性を感じるところだろうか。
3階建ての重厚感あるビルの2階部分が今回の募集区画だ。
さまざまなリノベーション空間を世に出してきた設計部門のオフィスだけに雰囲気ある佇まい。
第一印象は図書館の中にオフィスがあるような感じ。
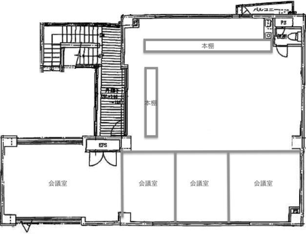
約45坪のワンフロアに会議室を大小4つ配置。
ワークスペースとしてはフリーアドレス前提ではあるが、25名程度は利用可能なレイアウトになっている。
スケルトンから作り込んだ為、躯体現しの天井は整っており開放感あるオフィス空間に仕上がっている。
床は全面無垢フローリングを使用、造作棚は下地材の合板に防塵塗装を施している。
シンプルなプランだがコンクリート・無垢材・下地材の合板と素材感の変化をつけているのがポイントだろうか。
会議室は大小4つ、こちらは10名程度が利用可能な一番大きなスペース。
大きな開口部からは樹木が望め、静かで落ち着きの感じられる空間、原宿にいるような雰囲気はほぼ感じないのではないだろうか。
4~6名程度のスペースが計3つ。
オフィスの広さに対してミーティングスペースが多いので、テレワーク需要にも十分に応えることができるだろう。
重厚感のある外観に加え、スケルトンから作り込んだシンプルで心地の良いリノベーションオフィス。
この物件の良さは文章で伝えるにはなかなか難しい、是非とも早めに現地を見ていただけると嬉しいところだ。
賃料:
住所:渋谷区神宮前1
広さ:150.18㎡
アクセス:、山手線「原宿駅」徒歩3分、千代田線「明治神宮前駅」徒歩5分
構造・規模:鉄筋コンクリート造 地上3階建 2階部分
築年:2002年
敷金:
礼金:
備考:普通借家契約(2年間)、居抜き募集、造作本棚・家具は引き継ぎご相談、保証会社利用可能、機械警備あり、トイレ2ヶ所、退去時は原状回復の必要あり
最新記事 by 木内 (全て見る)
-
東松原、新築デザイナーズ物件をSOHOで
[世田谷区/27万~/42㎡~] - 2026年3月6日 -
九段会館、歴史を紡ぐClassic Officeで働く
[千代田区/ASK/139㎡] - 2026年3月3日 -
渋谷、インナーテラスが映えるセットアップオフィス
[渋谷区/209万/141㎡] - 2026年3月2日 -
北参道、明治通り沿いの築浅デザイナーズオフィス
[渋谷区/158万~/161㎡~] - 2026年3月1日 -
表参道沿い、ケヤキ並木ビューのリノベオフィス
[渋谷区/137万~/140㎡~] - 2026年3月1日
