物件をブックマーク物件のポイント
- 東池袋駅徒歩2分・池袋駅徒歩8分
- 豊島区南池袋2エリア
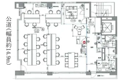
- 146.45㎡(44.30坪)のオフィス空間
- S造一部SRC造 地下1階地上8階建 7階部分、1990年築
- 賃料 ¥1,240,400(税込 ¥1,364,440)
物件の特徴

管理番号:S279646
※ 2026年4月下旬入居可能予定(内見は調整の上可能)
※ 写真はイメージパースです
※ 写真はイメージパースです
池袋の喧騒から少し離れた東池袋エリア
会議室完備、洗練デザインのハイグレードセットアップオフィス
都心にありながらも、落ち着きと機能性を兼ね備えた東池袋エリア。
再開発が進むこのエリアには、洗練されたオフィスビルや商業施設が点在し、働く環境としての快適性が年々向上しています。
そんな注目のビジネスエリアに佇む、セットアップオフィスをご紹介します。

ブラウンを基調とした品のあるエントランスは、来訪者に安心感と信頼を与える洗練されたデザインに。
自然素材の風合いとガラスの抜け感が調和した、洗練されたアプローチ空間です。

一部スケルトン風の天井と抜け感のあるレイアウトが、空間全体にゆとりをもたらす執務エリア。
ナチュラルな木目とホワイトを基調とした内装は、明るく洗練された印象を与えています。
ナチュラルな木目とホワイトを基調とした内装は、明るく洗練された印象を与えています。
本来、執務室内の什器は付帯していないため、レイアウトやテイストは自由自在にカスタマイズが可能。

6名用と4名用の会議室が設けられており、木目とアースカラーでまとめられた、温もりのあるミーティングルーム。
吊り下げ照明が空間にアクセントを加え、ちょっとしたクリエイティブな打ち合わせにもぴったり。
外部との商談はもちろん、社内ミーティングにも使いやすい程よいサイズ感と落ち着いた空気感が魅力です。

チームの働き方に合わせて、クリエイティブにもミニマルにも仕上げられる、柔軟性の高いオフィス空間です。
働く場所に、センスと機能性のどちらも求めたい方におすすめの物件です。
詳しい詳細については、是非お問い合わせください。
賃貸条件
| 管理番号 | S279646 |
|---|---|
| 賃料 | ¥1,240,400(税込 ¥1,364,440) |
| 共益費 | なし |
| 住所 | 豊島区南池袋2 |
| 広さ | 146.45㎡(44.30坪) |
| アクセス | 東京メトロ有楽町線「東池袋駅」徒歩2分、東京メトロ丸の内線「池袋駅」徒歩8分 |
| 構造・規模 | S造一部SRC造 地下1階地上8階建 7階部分 |
| 築年 | 1990年 |
| 保証金 | 相談 |
| 礼金 | なし |
| 備考 | 普通借家契約(2年間)、更新料(なし)、保証会社利用必須、火災保険必須 |
The following two tabs change content below.
SOHOオフィスのファインディング、コンテンツ制作、リーシングを担当。
立教大学を卒業後、出版社でライフスタイル誌の企画、取材、撮影などに従事。同誌のウェブマガジン立ち上げ、コンテンツ制作を経てトランスリアルに参画。趣味は映画と音楽とトレーニング。
最新記事 by 辰口 (全て見る)
-
落合南長崎、振り分けタイプの大型SOHO
[新宿区/44万/136㎡] - 2026年3月18日 -
新木場3分、木に囲まれた唯一無二のモダンオフィス
[江東区/ASK/483㎡] - 2026年3月18日 -
池袋8分、エリアでは希少な会議室付オフィス
[豊島区/137万/146㎡] - 2026年3月18日 -
越中島、光とテラスの食堂付きオフィス
[江東区/135万/270㎡] - 2026年3月17日 -
神宮前、リノベメゾネットデザイナーズ
[渋谷区/106万/159㎡] - 2026年3月17日
