物件をブックマーク
恵比寿駅徒歩5分、元ショールーム兼オフィスの一棟賃貸ビル。内装居抜き相談可能。
恵比寿駅近の一棟ビルのご紹介。
2020年までキッチン関係のショールーム兼オフィスとして利用されていた拘りの内装を居抜きでも利用可能。
恵比寿駅近立地で一棟利用出来るビルはなかなかお目にかかれない。
事務所だけでなく店舗などの利用も相談出来る懐の深さ、そして坪単価にして¥20,000と言う賃料設定がとても魅力的に映る物件だ。
恵比寿駅から徒歩5分、周囲は比較的規模の大きなヴィンテージマンションや新築のレジデンスなどが立ち並んでいる立地。
まるで南仏の建物の様な雰囲気も感じる配色とデザインが特徴的なファサードに目が引かれる。
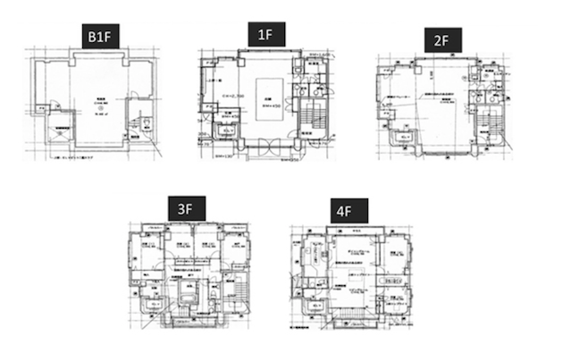
各フロアバラバラのテイストの室内を順を追ってご紹介していこう。
1Fは綺麗目な内装でまさにエントランスといった雰囲気。
2Fはオーソドックスなオフィス仕様。
OAフロアに天井が貼られており、天井の高さも約2.5mと一般的。
3Fもオフィス仕様ではあるが、2Fと異なり天井が撤去されたスケルトン天井仕様。
天井高は約3m、照明もライティングレール仕様になるだけでかなり雰囲気が良くなることがわかる。
一転して4Fは黒をベースとしたラグジュアリーな空間。
こちらもスケルトン天井で約3mの天井高、一部天窓部分は4mほどの高さがある。
ここからは地下のスペース。
地下1Fはショールーム利用されていた空間、恐らく床は増築によるものだろう。
地下2Fは水周り関連のショールームとして利用されていた。
屋上は現状では倉庫なども置かれている関係でやや味気のないスペースになってしまっている。
自社ビル感覚で利用できる一棟ビルなので屋上も綺麗に仕上げていただきたい。
一棟ビルとしては借りる際にかかるイニシャルコストは比較的リーズナブル、その分内装に予算をかけて頂きたい。
もちろん現状の内装で残せるものは残し、吟味に吟味を重ねた上で面白い空間を作り上げて欲しい。
賃料:
住所:渋谷区恵比寿南3
広さ:380.73㎡
アクセス:山手線「恵比寿」駅徒歩 5分、 日比谷線「恵比寿」駅徒歩2分、東横線「代官山」駅徒歩8分
構造・規模:鉄筋コンクリート造地上1階地上4建
築年:2000年
敷金・保証金:
備考:普通借家契約2年(再契約可)、火災保険要加入、保証会社利用必須、個別空調、各階別トイレ、エレベーター付き
・仲介手数料(賃料1ヶ月分税別)
・前家賃(1ヶ月分)
・日割り家賃(月途中での賃料発生の場合)
・初回保証委託料(賃料合計の最大100%)
・火災保険料
最新記事 by 木内 (全て見る)
-
目黒、ラフな質感で統一されたリノベ一棟ビル
[品川区/189万/284㎡] - 2026年1月15日 -
三軒茶屋、抜け感抜群のセットアップオフィス
[世田谷区/57万/78㎡] - 2026年1月15日 -
赤羽橋、ビンテージ感のある居抜きデザインオフィス
[港区/55万/95㎡] - 2026年1月7日 -
馬喰町、採光良好な店舗・オフィス対応のメゾネット
[中央区/571万/1005㎡] - 2025年12月26日 -
外苑前4分、生まれ変わった南青山のリノベオフィス
[港区/165万/171㎡] - 2025年12月25日
