
※募集中の区画は同様なデザインの別部屋です、間取り図をご確認ください。
*写真は似た間取りの別部屋のもの。異なる場合は現況優先になります。
*写真は似た間取りの別部屋のもの。異なる場合は現況優先になります。
東京を代表するのオフィス街のひとつ西新宿、隣接する公園の緑と調和したハイグレードマンションのSOHO区画で働く。
今回ご紹介するのは、「都庁前駅」徒歩5分、「西新宿駅」徒歩6分とオフィスとしてのイメージも良い西新宿エリアのタワーマンション。
新宿中央公園に面したタワーマンション内に住居とSOHO区画が混在しており、利便性と穏やかな心地よさの双方を兼ね備えています。
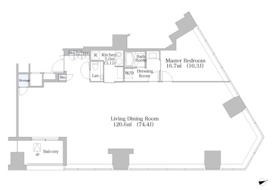
室内は160㎡の1LDKプラン、広さにして約97帖の特大リビングルームはOAフロア仕様でオフィス利用に最適な作りになっています。
新宿中央公園に面したタワーマンション内に住居とSOHO区画が混在しており、利便性と穏やかな心地よさの双方を兼ね備えています。
室内は160㎡の1LDKプラン、広さにして約97帖の特大リビングルームはOAフロア仕様でオフィス利用に最適な作りになっています。やや不整形のプランですが、広さがあるので書棚やパーテーションで区画を分けることもしやすいかと思います。

広々とした作りなので、前のテナントは20~30名程度のワークスペースとして活用していたようです。
あくまでも住居としての契約ですが、室内はオフィスとしての利用に適した作りです。
大通りに面しているために視界も抜けていて見晴らしが良いので開放的な室内。
天井高は一般的高さですが、二面採光の抜け感で快適なオフィスになってくれそうです。
奥には10畳超えのベットルーム想定のお部屋が有るので、ワークスペースとミーティングスペースを分けることも可能です。
曲線を取り入れた現代アート作品のようなファサードに隣接する緑がアクセントとなっているスタイリッシュなデザイン。
オフィスワークの合間や町へ出かける際にも、一歩外へ足を踏み入れれば四季折々の景観を満喫できます。
水まわりも白と茶を基調としたモダンなデザインで清潔感と落ち着きがあります。
共用設備も非常に充実しており、室内以外にも貸切会議室を活用することなどもできます。
シアタールームやゴルフレンジ他、様々なアクティビティ施設も取り揃えられているので、マンション内だけでも十分に仕事のリフレッシュや福利厚生面での利用が可能です。
大通りに面しているために視界も抜けていて見晴らしが良いので開放的な室内。天井高は一般的高さですが、二面採光の抜け感で快適なオフィスになってくれそうです。
奥には10畳超えのベットルーム想定のお部屋が有るので、ワークスペースとミーティングスペースを分けることも可能です。
曲線を取り入れた現代アート作品のようなファサードに隣接する緑がアクセントとなっているスタイリッシュなデザイン。オフィスワークの合間や町へ出かける際にも、一歩外へ足を踏み入れれば四季折々の景観を満喫できます。
水まわりも白と茶を基調としたモダンなデザインで清潔感と落ち着きがあります。
共用設備も非常に充実しており、室内以外にも貸切会議室を活用することなどもできます。シアタールームやゴルフレンジ他、様々なアクティビティ施設も取り揃えられているので、マンション内だけでも十分に仕事のリフレッシュや福利厚生面での利用が可能です。

設備面や共用部のクオリティでやや単価は高めな印象を受けるかもしれませんが、立地、設備、サービス等々満足感のある物件なのではないでしょうか。
オフィスの立ち並ぶ西新宿のタワーマンションタイプのSOHO物件、オフィス物件とは少し違った目線で充実のワークスタイルを送ってみてはいかがでしょうか。
オフィスの立ち並ぶ西新宿のタワーマンションタイプのSOHO物件、オフィス物件とは少し違った目線で充実のワークスタイルを送ってみてはいかがでしょうか。
賃料:¥1,120,000(非課税)
共益費:賃料に含む
住所:新宿区西新宿6
広さ:153.60㎡(46.46坪)
アクセス:大江戸線「都庁前駅」徒歩4分、丸の内線「西新宿駅」徒歩7分
構造・規模:S造・SRC造・RC造 地上階44建 4階部分
築年:2010年
敷金:4ヵ月(解約時償却 1ヶ月)
礼金:なし
備考:定期借家契約(2年間・再契約相談)、住居契約・登記不可、保証会社利用相談、火災保険必須、ダブルエントランス、24時間有人管理、1年以内の解約の場合違約金あり(賃料の1ヶ月分)、駐車場・バイク置場・駐輪場の空き状況については要確認
住所:新宿区西新宿6
広さ:153.60㎡(46.46坪)
アクセス:大江戸線「都庁前駅」徒歩4分、丸の内線「西新宿駅」徒歩7分
構造・規模:S造・SRC造・RC造 地上階44建 4階部分
築年:2010年
敷金:4ヵ月(解約時償却 1ヶ月)
礼金:なし
備考:定期借家契約(2年間・再契約相談)、住居契約・登記不可、保証会社利用相談、火災保険必須、ダブルエントランス、24時間有人管理、1年以内の解約の場合違約金あり(賃料の1ヶ月分)、駐車場・バイク置場・駐輪場の空き状況については要確認
〈上記以外で契約時に掛かる主な費用〉
・仲介手数料(賃料1ヶ月分税別)
・前家賃(1ヶ月分)
・日割り家賃(月途中での賃料発生の場合)
・初回保証委託料(賃料合計の最大100%)
・火災保険料





