渋谷区

【募集終了】渋谷表参道エリア。新規リノベビルを一棟で。

Loading物件をブックマーク

渋谷と表参道の中間エリア。流行に敏感で刺激がある一方、大通りからは一本入った落ち着いたエリアで、一棟の新規リノベーションプロジェクトが立ち上がりました。自由度の高い一棟物件を手に入れることができる、またとない機会です。
建物の外観。現状はこのような状態です。ただ左側の駐車場部分はガラス戸で閉じ、事務所として使用できる空間になります。
完成イメージがこちら。
外装も綺麗に一新される予定で、1F部分と合わせると大きく印象も変わるでしょう。
2階部分の現状。下の画像がリノベーション後のイメージです。
こちら天井が抜かれ、3mを超えるほどの空間になるのではとのこと、スタジオ使用などにも対応できそうです。
現状30坪ほどの空間ですが、2階は室内を少し削り、バルコニーを広くします。ウッドデッキを敷いてよりリラックスできるバルコニーに生まれ変わるそうです。
こちらは現状の地下の様子。1階を事務所へ変更する都合上、地下の一部を封じ込めてしまうそうですが、それでも30坪ほどの空間は確保されます。こちらも天井は抜く予定だそうです。
曲線が綺麗な可愛らしいデザインの階段。こちらは残ります。
上の画像がこの階段を含めたエントランスのイメージとなります。
現在入居中のテナントさんがいますが、今後順次退去される予定とのこと、秋頃から本格的な工事が始まります。
スクールやショールーム、スタジオ利用にシェアオフィス事業など、様々用途のイメージが浮かびます。
点在していた事務所を集約するというアイディアでも良さそうです。
屋上からは表参道原宿エリアから渋谷エリアまで、360度見渡すことができます。
近くに高い建物がないので、非常に気持ちの良い眺望です。
築30年以上経ったビルが、どのように生まれ変わるのか気になりますが、きっと周囲からも一目置かれる素敵なビルに生まれ変わるのでしょう。
渋谷表参道エリア、一棟というキーワードでご検討されていた方、ぜひ一度ご相談ください。
用途については様々な可能性もございますので、先ずは一度現地を見て想像を膨らましてみるのはいかがでしょうか。

管理番号:S142987
賃料:
共益費:
住所:渋谷区神宮前5
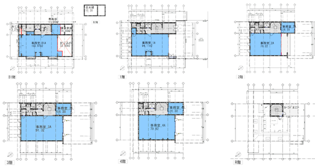
広さ:703.55㎡(212.82坪)
アクセス:東京メトロ各線「表参道駅」徒歩8分、JR各線「渋谷駅」徒歩9分
構造規模:RC造地下1階付き地上4階建
築年:1984年
敷金:
礼金:
備考:定期借家契約(10年間)、解約予告6ヶ月、2021年2月引き渡し予定、火災保険要加入

〈上記以外で契約時に掛かる主な費用〉
・仲介手数料(賃料1ヶ月分税別)
・前家賃(1ヶ月分)
・日割り家賃(月途中での賃料発生の場合)
・初回保証委託料(賃料合計の最大100%)
・火災保険料

The following two tabs change content below.
SOHO東京をご覧頂きましてありがとうございます。 お問い合わせに関しては、営業担当よりご連絡させて頂きます。
Return Top