物件をブックマーク
管理番号:S297083
「泉岳寺駅」徒歩5分、駐車場付き
コンクリ打ちっぱなしの外観冴える一棟ワークスペース
京急本線「泉岳寺駅」徒歩5分、JR山手線「高輪ゲートウェイ駅」徒歩10分、都営三田線「白金高輪駅」徒歩11分。
再開発が進み、注目を集める高輪ゲートウェイ駅も存在する高輪エリア。
泉岳寺駅徒歩5分というアクセスを備えつつ、さらに駐車場2台付きという条件が揃った希少な一棟物件のご紹介。
再開発が進み、注目を集める高輪ゲートウェイ駅も存在する高輪エリア。
泉岳寺駅徒歩5分というアクセスを備えつつ、さらに駐車場2台付きという条件が揃った希少な一棟物件のご紹介。

通りに面してすっきりと立ち上がる、コンクリート調の外観が印象的な建物。
今回の区画には駐車場2台分が付帯しているため、車を使う業種や来客対応のあるオフィスにも向いたつくりです。
1階部分は、外部からの動線が取りやすく、来客対応や打ち合わせを想定した使い方がしやすいフロアです。大きめの開口部からは自然光が入り、地下階とは異なる明るさと開放感を感じられる空間構成となっています。
床はタイル仕上げで、ミーティングテーブルを置いた打ち合わせスペースとしてはもちろん、ショールームや応接を兼ねたワークスペースとしてもイメージしやすい印象です。
天井にはライティングレールが設置されており、用途に応じて照明計画を柔軟に調整できる点も特徴的です。
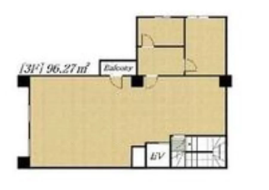
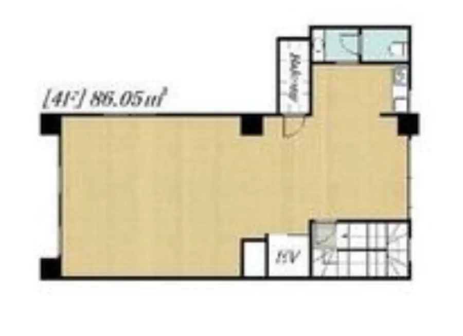
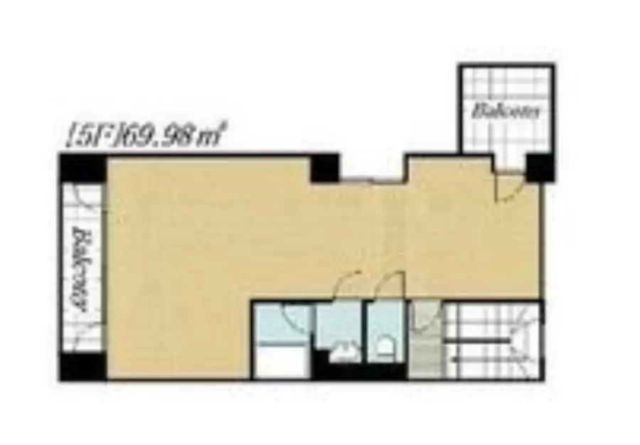
地下1階は3つの独立した部屋で構成されており、それぞれがしっかりと区切られたレイアウト。
2F以上のフロアも内装は基本的に同じで、間取りだけ若干異なる作りとなります。
写真だと電気が付いていないので暗めではありますが、日当たりは良いので照明があればなかなかの明るい空間になります。

現状は使用感のあるタイルカーペットですので、この部分を変えるだけで印象はガラッと変わってきそうです。
床はタイル仕上げで、ミーティングテーブルを置いた打ち合わせスペースとしてはもちろん、ショールームや応接を兼ねたワークスペースとしてもイメージしやすい印象です。天井にはライティングレールが設置されており、用途に応じて照明計画を柔軟に調整できる点も特徴的です。
地下1階は3つの独立した部屋で構成されており、それぞれがしっかりと区切られたレイアウト。
2F以上のフロアも内装は基本的に同じで、間取りだけ若干異なる作りとなります。
写真だと電気が付いていないので暗めではありますが、日当たりは良いので照明があればなかなかの明るい空間になります。
現状は使用感のあるタイルカーペットですので、この部分を変えるだけで印象はガラッと変わってきそうです。
お手洗いは1階に2箇所、4、5階にそれぞれ1箇所設置されています。





一棟丸ごと使えて、執務・打ち合わせ・ストック・バックヤードといった用途をフロアごとに明確に分けながら運用できる構成が魅力です。
自身の彩りを加えて、自分の城を作り上げるのをぜひご検討ください。
管理番号:S297083
賃料:¥2,500,000(税込 ¥2,750,000)
共益費:¥50,000(税込 ¥55,000)
住所:港区高輪2
広さ:553.14㎡(167.32坪)
アクセス:京急本線「泉岳寺駅」徒歩5分、JR山手線「高輪ゲートウェイ駅」徒歩10分、都営三田線「白金高輪駅」徒歩11分
構造・規模:RC造 地下1階地上5階建 一棟
築年:2003年
敷金:6ヶ月
礼金:なし
備考:借家契約(3年間)、保証会社利用相談、火災保険必須、更新料(新賃料1ヶ月)、飲食店不可、駐車場2台分
賃料:¥2,500,000(税込 ¥2,750,000)
共益費:¥50,000(税込 ¥55,000)
住所:港区高輪2
広さ:553.14㎡(167.32坪)
アクセス:京急本線「泉岳寺駅」徒歩5分、JR山手線「高輪ゲートウェイ駅」徒歩10分、都営三田線「白金高輪駅」徒歩11分
構造・規模:RC造 地下1階地上5階建 一棟
築年:2003年
敷金:6ヶ月
礼金:なし
備考:借家契約(3年間)、保証会社利用相談、火災保険必須、更新料(新賃料1ヶ月)、飲食店不可、駐車場2台分
〈上記以外で契約時に掛かる主な費用〉
・仲介手数料(賃料1.1ヶ月分(税込))
・前家賃(1ヶ月分)
・日割り家賃(月途中での賃料発生の場合)
・初回保証委託料(賃料合計の最大100%)
・火災保険料
The following two tabs change content below.
SOHOオフィスのファインディング、コンテンツ制作、リーシングを担当。
イタリア、フランスで修行した後、西麻布「レフェルヴェソンス」をはじめ、様々なジャンルのレストランでキッチン、サービスに従事。
物件情報には周辺で評判の良い飲食店情報が付随してくる。
最新記事 by 小野寺 (全て見る)
-
表参道3分、好立地のメゾネットリノベSOHO
[渋谷区/70万/102㎡] - 2026年3月17日 -
赤羽橋、充実の設備とアートに囲まれて
[港区/30万〜/43㎡〜] - 2026年3月16日 -
代々木上原、ワンフロア利便性あるSOHOオフィス
[渋谷区/63万/113㎡] - 2026年3月13日 -
大門3分、新たな会議室2つ付きリノベセットアップ
[港区/101万/97㎡] - 2026年3月12日 -
神保町、高パフォーマンスとデザイン両立のSOHO
[千代田区/50万/82㎡] - 2026年3月12日
