物件をブックマーク
管理番号:S290553
芝公園駅より徒歩3分の好立地
ビジネスの中心地に佇む、リノベ済みのワンルームオフィス
「芝公園駅」かた徒歩3分。「浜松町駅」から徒歩8分。
主要なビジネス街としての一面に加え、芝公園など、自然や歴史ある街としても知られる港区芝アドレス。
こちらのエリアより、アクセス性とオフィスとしてスペックを兼ね備えたワンルーム物件が募集となりました。

リニューアル済みの外観はシックで都会的な印象を感じさせる佇まい。
駅近3分のアクセス性に加え、周辺にはコンビニや飲食店が点在しており、利便性においても魅力的な立地です。

室内は2019年にリノベーション済み。フローリングにホワイト壁面を合わせた内装デザイン。
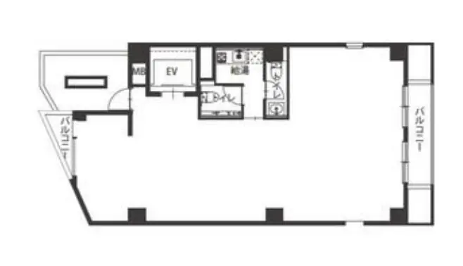
オフィス向きで無駄のないワンルームとなっており、様々なレイアウト構成が可能です。

奥まったスペースには採光が十分に採れる開口部が備わっています。
こちらは造作で仕切ることで会議室やストックスペースとしても活用できそうです。

天井にはライティングレールとむき出しのエアコン設備が備わっています。
設備面のスペックも問題なく、シンプルな内装設計ながらも所々にデザイン性の高さを感じさせます。

水回り設備は1か所にコンパクトにまとめられており、清潔感のあるデザイン。
またトイレは2箇所と男女別利用できる点は、嬉しいポイントです。

駅近3分の利便性に加え、ワンルーム間取り、トイレ2箇所付きと、豊富が魅力が備わった本物件。
港区芝エリアでは希少なリノベ済みのオフィス物件となっております。
管理番号:S290553
賃料:¥409,454(税込 ¥450,400)
共益費:¥33,613(税込 ¥36,975)
住所:港区芝2
広さ:74.10㎡(22.41坪)
アクセス:都営三田線「芝公園駅」徒歩3分、都営浅草線「大門駅」から徒歩8分、JR山手線「浜松町駅」徒歩7分。
構造・規模:RC造 地上7階建 地下1階 / 6階部分
築年:1989年
敷金:5ヶ月(償却1ヶ月)
礼金:なし
備考:普通借家契約(2年間)、保証会社利用必須、火災保険必須、トイレ占有部分内に2箇所あり
賃料:¥409,454(税込 ¥450,400)
共益費:¥33,613(税込 ¥36,975)
住所:港区芝2
広さ:74.10㎡(22.41坪)
アクセス:都営三田線「芝公園駅」徒歩3分、都営浅草線「大門駅」から徒歩8分、JR山手線「浜松町駅」徒歩7分。
構造・規模:RC造 地上7階建 地下1階 / 6階部分
築年:1989年
敷金:5ヶ月(償却1ヶ月)
礼金:なし
備考:普通借家契約(2年間)、保証会社利用必須、火災保険必須、トイレ占有部分内に2箇所あり
〈上記以外で契約時に掛かる主な費用〉
・仲介手数料(賃料1.1ヶ月分(税込))
・前家賃(1ヶ月分)
・日割り家賃(月途中での賃料発生の場合)
・初回保証委託料(賃料合計の最大100%)
・火災保険料
The following two tabs change content below.
SOHOオフィスのファインディング、コンテンツ制作、リーシングを担当。
イタリア、フランスで修行した後、西麻布「レフェルヴェソンス」をはじめ、様々なジャンルのレストランでキッチン、サービスに従事。
物件情報には周辺で評判の良い飲食店情報が付随してくる。
最新記事 by 小野寺 (全て見る)
-
五反田、異なるプランのセットアップリノベオフィス
[品川区/173万/215㎡]
- 2026年1月30日 -
麻布十番、天高3mとモルタル仕上げの居抜きオフィス
[港区/97万/115㎡]
- 2026年1月28日 -
泉岳寺、6フロアを活用する駐車場付き一棟
[港区/281万/553㎡] - 2026年1月28日 -
赤羽橋、充実の設備とアートに囲まれて
[港区/29万〜/44㎡〜] - 2026年1月28日 -
中野新橋、手軽に小商い可能なデザイナーズSOHO
[中野区/14万/25㎡] - 2026年1月27日
