
青物横丁駅徒歩4分、新築のコンクリート打ちっぱなしデザイナーズSOHO。
青物横丁に誕生した新築デザイナーズ物件のご紹介。
住居兼事務所に適した1LDKプラン、新築ならではなのデザイン性の高さ、品川への交通アクセスが良くコストパフォーマンスに優れているのも魅力的。
ややマイナーなイメージはありますが、ビジネスと生活を兼ね備えた場所として興味深いエリアだと思います。

端正なコンクリート打ちっぱなしの外観。
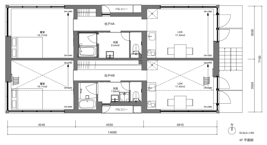
隣り合うふた部屋のフロアレベルを異なる高さに設定しているのが面白い。
現状南側(B号室側)に建物が建っておらず、陽当たりの良さも想像に難くない。


2階・3階の1LDKプランは壁天井コンクリート打ちっぱなしをベースに一部白壁でアクセントをつけている。
リビングとベッドルームの多きさの違いがほとんどなく、振り分けプランでSOHOオフィス利用についても適性があるだろう。


廊下部分はオープンなウォークインクローゼットになっておりその脇は水回りという配置。
カーテンで緩く区切ることもできるので、スタイリッシュかつ実用性高く収納することができそう。

奥のベッドルームもデザイン性高く、同じくカーテンレールで仕切れる機能性の高さがある。
陽当たりよく気持ちの良い空間となっている。


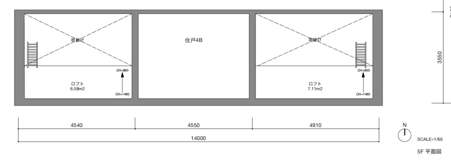
4階にはひとつだけロフト付きのプレミアムなプランが設定されている。
リビングとベッドルームにそれぞれロフトつきというのがユニークではないでしょうか。
2階/3階

4階



賃料:上記の通り
共益費:上記の通り
住所:品川区南品川3
広さ:上記の通り
アクセス:京急線「青物横丁駅」徒歩4分
構造・規模:RC造 地上4階建 2階~4階部分
築年:2025年
敷金:なし
礼金:なし
備考:普通借家契約(2年間)、保証会社利用相談、火災保険必須、エレベーターなし
住所:品川区南品川3
広さ:上記の通り
アクセス:京急線「青物横丁駅」徒歩4分
構造・規模:RC造 地上4階建 2階~4階部分
築年:2025年
敷金:なし
礼金:なし
備考:普通借家契約(2年間)、保証会社利用相談、火災保険必須、エレベーターなし
〈上記以外で契約時に掛かる主な費用〉
・仲介手数料(賃料1ヶ月分税別)
・前家賃(1ヶ月分)
・日割り家賃(月途中での賃料発生の場合)
・初回保証委託料(賃料合計の最大100%)
・火災保険料
