物件をブックマーク
管理番号:S193724
六本木、ぐるりと囲むガラスの壁とスケルトン天井の開放感あるリノベーションオフィス。
六本木3丁目のコンクリート打ちっ放しの小綺麗なオフィスビル、開放的なリノベ区画が募集開始となった。
三面採光のガラスウォールと最大で2.9mほどのスケルトン天井という組み合わせ。
尖り過ぎることなくバランスよい空間、オフィスとしての総合力の高いワンフロア物件だと思う。

六本木駅からは外苑東通りを飯倉交差点方面へ。
大通りからは六本木一丁目側に少し入った一角に今回の物件が佇んでいる。

今回のお部屋は3Fのワンフロア、直接階段で入る独特なアプローチが雰囲気良い。
天井の抜かれた開放感ある整形プランの為、215㎡という記載以上に広く感じる空間だ。

ぐるっと囲むクリアなガラス窓にざっくりとした雰囲気のスケルトン天井が面白い。
そんなデザイン性の高さを前面に出しつつも、しっかりOAフロア仕様なので利便性も高いという嬉しい二面性を併せ持っている。

オフィス仕様としては十分な設備の水周りはこの度リニューアル済み。
気持ちよく次のテナントを迎え入れる準備ができている状態だ。

六本木エリアのなかなかありそうでない、綺麗な整形プランのリノベーションオフィス。
裏側のエレベーター側のエントランスと正面階段の両方が導線として確保できる点も意外と使い勝手が良い。
4Fには25坪程度の一般的な仕様のオフィスフロアも別途募集中、場合によってはセット借りも選択肢としてはありかもしれない。
管理番号:S193724
賃料:
賃料:
共益費:
住所:港区六本木3
広さ:215.2㎡
アクセス:南北線「六本木一丁目駅」徒歩4分、日比谷線「六本木駅」徒歩8分
構造・規模:RC造 地上階4建 3階部分
築年:1991年
敷金:
礼金:
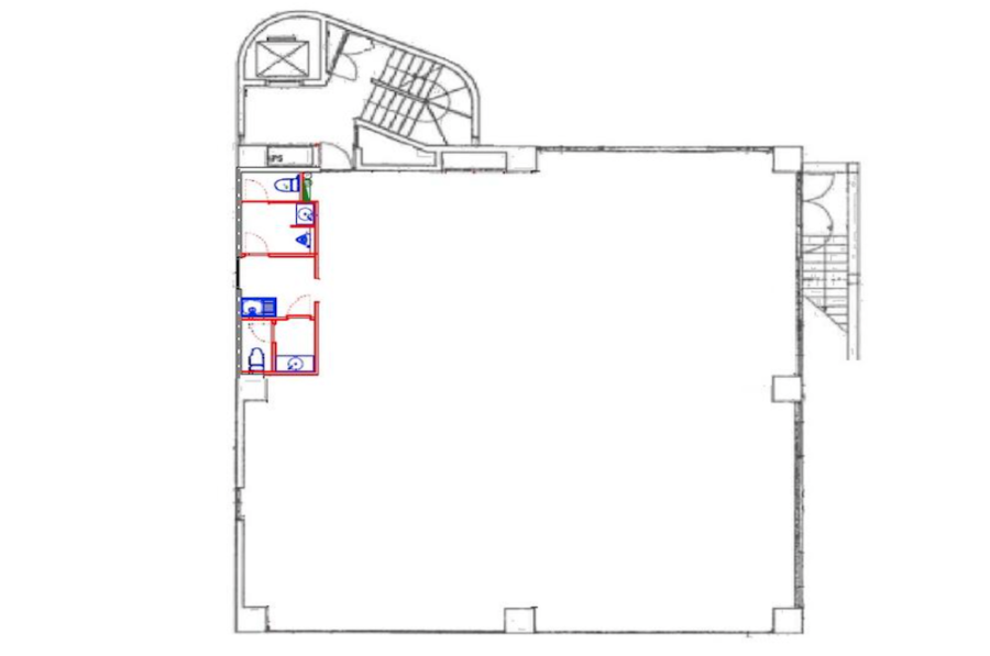
備考:普通借家契約(2年間)、保証会社利用相談、火災保険必須、OAフロア、エレベーターあり、トイレ2ヶ所、光回線
住所:港区六本木3
広さ:215.2㎡
アクセス:南北線「六本木一丁目駅」徒歩4分、日比谷線「六本木駅」徒歩8分
構造・規模:RC造 地上階4建 3階部分
築年:1991年
敷金:
礼金:
備考:普通借家契約(2年間)、保証会社利用相談、火災保険必須、OAフロア、エレベーターあり、トイレ2ヶ所、光回線
〈上記以外で契約時に掛かる主な費用〉
・仲介手数料(賃料1ヶ月分税別)
・前家賃(1ヶ月分)
・日割り家賃(月途中での賃料発生の場合)
・初回保証委託料(賃料合計の最大100%)
・火災保険料
The following two tabs change content below.
SOHOオフィスのファインディング、コンテンツ制作、リーシングを担当。
長野県生まれ。信州大学経済学部卒業後、リクルート、ベンチャーを経て当社へ。趣味は料理、テニス。フルマラソンはサブ4ランナー。不定期開催の社内パーティーでは料理長を務める一面も。
最新記事 by 木内 (全て見る)
-
九段会館、歴史を紡ぐClassic Officeで働く
[千代田区/ASK/139㎡] - 2026年3月3日 -
渋谷、インナーテラスが映えるセットアップオフィス
[渋谷区/188万/141㎡] - 2026年3月2日 -
北参道、明治通り沿いの築浅デザイナーズオフィス
[渋谷区/158万~/161㎡~] - 2026年3月1日 -
表参道沿い、ケヤキ並木ビューのリノベオフィス
[渋谷区/137万~/140㎡~] - 2026年3月1日 -
五反田、建築家設計のデザイナーズ戸建SOHO
[品川区/250万/236㎡] - 2026年2月26日
