物件をブックマーク
表参道駅10分。
見晴らしと立地の良さとシンプルな内装が魅力。
骨董通りと六本木通り沿いにあるこの地に佇むデザイナーズSOHOのご紹介。
グレーのタイル張りの外観はスタイリッシュ印象をうける。
各階のフロアはこのように吹き抜けになっている。
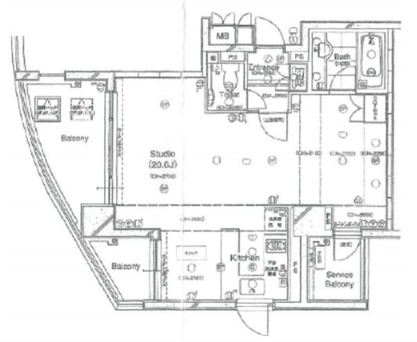
今回ご紹介するのは7階の区画。
内装は天井、壁ともに白で床はフローリングのシンプル。
窓が大きく明るい空間。
内装にはクセがなく、住居としても事務所としても快適にご利用できそうだ。
キッチンはカウンターも付いている。料理も十分にできそうだ。
そしてこの見晴らし。
骨董通りと六本木通り沿いで都心の眺望が広がる。
水回りは住居仕様のシンプルなデザイン。
立地と見晴らしに長けた本物件。
内装もシンプルで業種問わずご利用できるのでは無いでしょうか。
車でのアクセスもいいこの地でビジネスライフを謳歌してみては。
管理番号:S158096
賃料:
管理費:
住所:港区南青山6
広さ:48.45㎡
アクセス:東京メトロ千代田線、半蔵門線、銀座線「表参道駅」徒歩12分
構造規模:RC造地上13階地下1階建 7階部分
築年:2001年
敷金:
礼金:
備考:定期借家2年契約(更新料:新賃料1.2ヶ月分)、保証会社加入要、損保加入要(¥22,500/2年)、24時間サポート(¥16,500~)、書類作成費¥11,000ペット不可、楽器不可、駐車場有(¥45,000、空き要確認)
〈上記以外で契約時に掛かる主な費用〉
・仲介手数料(賃料1ヶ月分税別)
・前家賃(1ヶ月分)
・日割り家賃(月途中での賃料発生の場合)
・初回保証委託料(賃料合計の最大100%)
・火災保険料
The following two tabs change content below.
SOHO東京をご覧頂きましてありがとうございます。
お問い合わせに関しては、営業担当よりご連絡させて頂きます。
最新記事 by SOHO東京スタッフ (全て見る)
-
自由が丘、奥沢の緑が映えるゆとりある大型SOHO
[世田谷区/78万/214㎡] - 2026年3月13日 -
代々木、視認性ある1階ガラス張りワークスペース
[渋谷区/83万/107㎡]
- 2026年3月12日 - 【募集終了】恵比寿、ガーデンプレイス内の大型リノベオフィス - 2025年12月26日
-
大きな空と運河を望む。湾岸エリアのシェアオフィス
[中央区/¥ASK/94㎡~]
- 2025年10月21日 - 【募集終了】田町、運河沿いのヴィンテージリノベオフィス - 2025年8月28日
