物件をブックマーク
千代田線「御茶ノ水駅」徒歩2分、丸ノ内線「淡路町駅」徒歩3分、新宿線「小川町駅」徒歩2分と交通の便が光る立地にクリエイティブなSOHOが募集開始となりました。
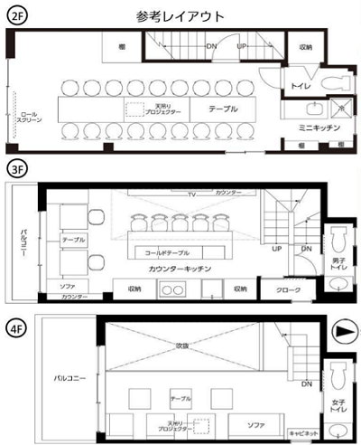
今回はフルリノベーションされた2階、3階、4階区画のご紹介です。
上記の写真は2階部分。
長方形のお部屋なので利用シーンによって変幻自在なレイアウトが考えられそうです。
オフィスでの利用はもちろん、ミニキッチンやロールスクリーンの備え付けもあるので、さまざな用途に合わせてご利用いただけそうです。
こちらは3階部分。
メゾネットタイプで天井の吹き抜けが開放的な印象の造りになっております。
温もりのある木目を基調としたデザインから、落ち着いた雰囲気を感じました。
大きなダイニングキッチンの隣には、このような空きスペースもあるので、ちょっとした休憩や応接の場としての利用も良さそうです。
こちらが4階部分。
作業場にして自分に合った心地よい空間を作り出すこともできそう。
写真のようにデスクとソファを置いてミーティングスペースにするというのも有りだと思います。
様々な使い方が想像できそうです。
収納もしっかり確保されています。
トイレは各階についております。
リノベーションされたばかりの新しいトイレなので清潔感があるのも嬉しいポイントです。 
千代田線「新御茶ノ水駅」から徒歩2分に位置するデザイナーズオフィス。
多様な使い方、クリエイティビティ溢れる物件です。
様々な用途でご検討ください。
管理番号:S164645
賃料:
管理費:
住所:千代田区神田淡路町1
広さ:2F 26.44㎡
3-4F 33.05㎡
アクセス:千代田線「新御茶ノ水駅」徒歩2分、丸ノ内線「淡路町駅」徒歩3分、新宿線「小川町駅」徒歩2分、総武線「御茶ノ水駅」徒歩7分
規模:鉄骨造4階建 2階、3階、4階(メゾネットタイプ)
築年:1975年
保証金:
礼金:
備考:定期借家契約2年(再契約可)、保険加入必須、保証会社利用必須、2Fのみで借りる場合¥120,0000(税別)、3Fのみで借りる場合¥230,000(税別)
〈上記以外で契約時に掛かる主な費用〉
・仲介手数料(賃料1ヶ月分税別)
・前家賃(1ヶ月分)
・日割り家賃(月途中での賃料発生の場合)
・初回保証委託料(賃料合計の最大100%)
・火災保険料
最新記事 by 辰口 (全て見る)
-
水天宮前駅1分、ミニマルデザインのリノベオフィス
[中央区/69万/108㎡] - 2026年1月15日 -
西麻布で空とつながるSOHO物件、ルーフテラス付
[港区/36万/65㎡] - 2026年1月15日 -
三田、公園隣接の50名超規模ハーフセットアップ
[港区/392万/351㎡] - 2026年1月15日 -
大手町、希少なハイグレードビルのセットアップ区画
[千代田区/270万〜/115㎡〜] - 2026年1月14日 -
八丁堀3分、原状回復なし、上質な什器付オフィス
[中央区/62万/60㎡] - 2026年1月9日

LEAVE A REPLY