
「春日駅」徒歩3分
レイアウト自由度の高い執務空間と、重厚感ある個室区画を完備
成長フェーズに寄り添うセットアップオフィスです
都営三田線・大江戸線「春日駅」徒歩3分、東京メトロ丸ノ内線・南北線「後楽園駅」徒歩6分、東京メトロ丸ノ内線・都営大江戸線「本郷三丁目駅」徒歩10分。
春日駅を最寄りとする本郷エリアに位置する、セットアップ仕様のワンフロアオフィス。
広々とした執務スペースに加え、ガラス張りの会議室や重厚感のある役員室まで備えた、完成度の高い空間構成が魅力です。
広々とした執務スペースに加え、ガラス張りの会議室や重厚感のある役員室まで備えた、完成度の高い空間構成が魅力です。

本郷五丁目アドレスに構える、曲線を描くファサードが印象的なオフィスビル。落ち着いたグレートーンの外観は、学術都市らしい品格を感じさせます。春日駅から徒歩3分という近さに加え、4路線利用可能というアクセス力も大きな魅力です。

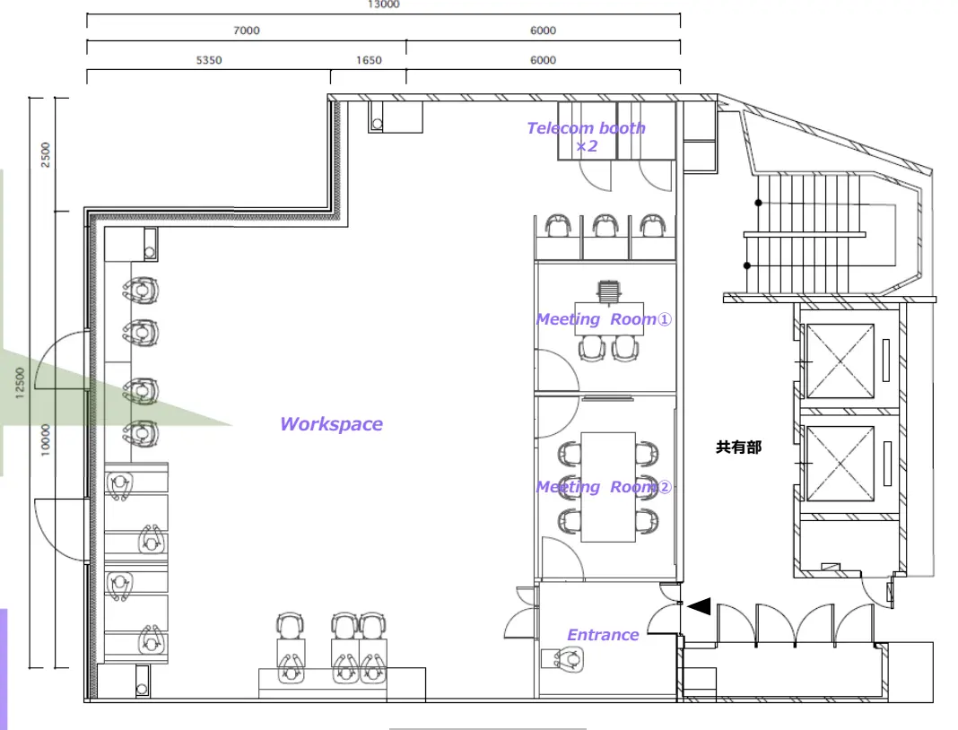
フロアの大部分を占めるメインの執務スペースは、柱の干渉が少ない整形に近い間取りで、レイアウトの自由度が高い設計。
大きく確保されたワンフロア空間は、部署ごとのゾーニングやプロジェクト単位での島型配置など、柔軟な使い分けが可能です。
レイアウト次第では20〜30名規模での運用も視野に入るサイズ感。
窓際に設けられたカウンターデスクは、窓からの光を取り込みながら作業できる開放的なワークスペース。短時間の集中作業や、気分転換をしながら作業したい際に最適で、視界が抜けるレイアウトでリラックスしながら仕事に取り組めます。


こちらは周囲を気にせず作業に没頭できる半個室ブースで、資料作成や、webミーティングなど集中を要する業務に最適です。
ブラックで統一された壁面と天井が、空間全体に重厚感をもたらす一室。約2〜4名規模で利用可能なサイズ感で、役員室としてはもちろん、重要な商談や採用面接、機密性の高い会議にも適しています。


会議室はガラスパーテーション仕様で、開放感とプライバシーを両立。
モニターも設置済みで、オンライン会議や社外打ち合わせにも即対応可能です。

春日・本郷という知的で落ち着いたエリアに構える、完成度の高いセットアップ区画。
広さだけでなく、役員室や会議室まで備えた構成は、企業のステージを一段引き上げてくれます。
広さだけでなく、役員室や会議室まで備えた構成は、企業のステージを一段引き上げてくれます。
ぜひ検討してみてはいかがでしょうか。
賃料:相談
共益費:賃料に含む
住所:文京区本郷5
広さ:161.58㎡(48.87坪)
アクセス:都営三田線・大江戸線「春日駅」徒歩3分、東京メトロ丸ノ内線・南北線「後楽園駅」徒歩6分、東京メトロ丸ノ内線・都営大江戸線「本郷三丁目駅」徒歩10分
構造・規模:RC造・SRC造 地下1階地上6階建 5階部分
築年:1992年
敷金:相談
礼金:なし
備考:普通借家契約(2年間)、更新料(なし)、保証会社利用必須、火災保険必須
共益費:賃料に含む
住所:文京区本郷5
広さ:161.58㎡(48.87坪)
アクセス:都営三田線・大江戸線「春日駅」徒歩3分、東京メトロ丸ノ内線・南北線「後楽園駅」徒歩6分、東京メトロ丸ノ内線・都営大江戸線「本郷三丁目駅」徒歩10分
構造・規模:RC造・SRC造 地下1階地上6階建 5階部分
築年:1992年
敷金:相談
礼金:なし
備考:普通借家契約(2年間)、更新料(なし)、保証会社利用必須、火災保険必須
〈上記以外で契約時に掛かる主な費用〉
・仲介手数料(賃料1.1ヶ月分(税込))
・前家賃(1ヶ月分)
・日割り家賃(月途中での賃料発生の場合)
・初回保証委託料(賃料合計の最大100%)
・火災保険料





