物件をブックマーク
西麻布交差点近く、首都高沿いの背の高いマンション。
その一室に男心をくすぐるようなデザイナーズ物件が隠れていました。
似た外観の建物が並んでいます。今回の建物は左から二番目。
乃木坂駅から徒歩12分、六本木駅からも13分と決して駅に近いとは言い難いですが、六本木通り沿いということもありバスやタクシーではアクセスしやすいでしょう。
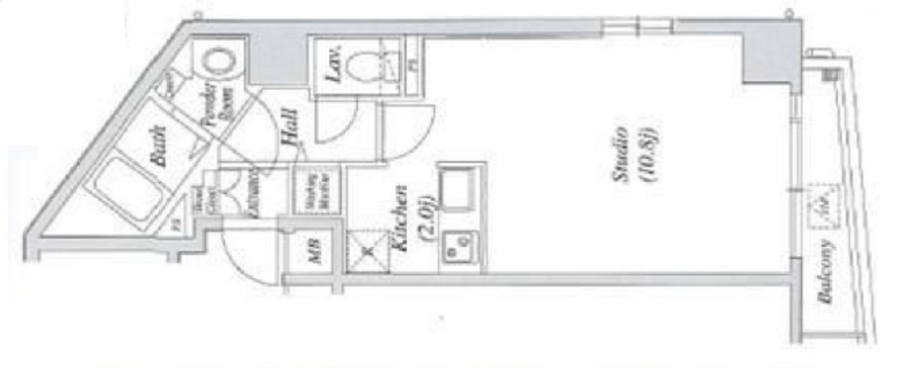
間取りは約34㎡のワンルーム。
展示用の家具でおおよその広さやイメージがつかめるのではないでしょうか。

壁には木材、天井と梁部分にはコンクリート柄の壁紙を合わせることで、シンプルながら味のある仕上がりになっています。
隠れ家のようなデザインです。
会議スペースを設けないのであれば最大で4~5名のワークスペースとなりそうです。
ソファー、ベッドを置いてもそれなりのスペースを確保できるので、住居件事務所の場合は大きめの作業デスクを置いても窮屈になることはなさそうです。
照明はレール式、各所から遊び心を感じます。
トイレ、風呂、洗面所もリフォームされています。
水回りは全般的に清潔感があり、ストレスなく使えそうです。
一点ご注意頂きたいのは、目の前に首都高が走っているという事です。
車の音が気になる方もいらっしゃると思います。

六本木や青山方面にクライアントが多い方、籠っての作業が多い方に適した物件です。
コンパクトで他とは違う部屋をお探しの方はもちろん、どなたも飽きずに使っていただける空間だと感じました。
管理番号:S120101
賃料:
管理費:
住所:港区西麻布2
広さ:33.98㎡
アクセス:千代田線「乃木坂駅」徒歩12分、日比谷線「六本木駅」徒歩13分
構造規模:SRC11階地下1階建 6階部分
築年:2003年(2018年全室リフォーム済)
敷金:
礼金:
備考:契約期間2年、保険加入必須、賃貸補償サポート加入必須、鍵交換代(¥21,600~)
最新記事 by 村山 (全て見る)
-
神田駅4分、ガラス会議室のデザインリノベ
[千代田区/89万/102㎡] - 2026年3月4日 -
明治神宮前、白と開放感を得るデザイナーズ事務所
[渋谷区/58万/86㎡] - 2026年3月3日 -
駒場エリア。聡明な緑に包まれるデザイナーズSOHO
[目黒区/35万/51㎡] - 2026年3月2日 -
恵比寿徒歩5分、ミニマルデザイナーズで始める
[渋谷区/37万/38㎡] - 2026年2月27日 -
表参道、スケルトン調デザイナーズオフィス
[港区/228万/261㎡]
- 2026年2月26日
