物件をブックマーク
渋谷区神宮前。
キャットストリート沿いに位置する広々オフィスのご紹介です。
最寄り駅「渋谷駅」からは徒歩5分ほど。個性的なブティックやお洒落な飲食店が数多く立ち並び、日中は多くの若者や観光客で賑わいをみせるキャットストリートに位置しています。
わかりやすい立地なので、来客のある場合にも案内しやすいのではないでしょうか。
写真中央のグレーの建物が今回ご紹介する物件です。
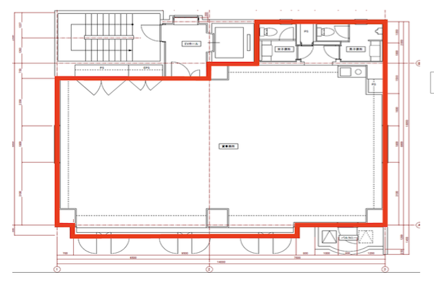
広さは約123㎡のワンフロア。室内は長方形に近いレイアウトです。
OAフロアが施され、天井高は2500㎜です。ストレスなく利用ができそうです。
広々とした室内なので、レイアウトの幅は広がります。スペースのすみ分けをすれば、執務スペースの他、複数の会議室を設けても十分ゆとりはありそうです。変化の多い土地に拠点を置くことで、様々な刺激を受けクリエイティブなアイデアが浮かびそう。
こちらのエリアで広めのオフィスをお探しの方におすすめしたい物件です。
管理番号:S117702
賃料:
共益費:
住所:渋谷区神宮前6
広さ:123.47㎡(37.34坪)
アクセス:副都心線・東横線・JR線各線「渋谷駅」徒歩4分、千代田線「明治神宮前駅」徒歩7分
構造規模:鉄骨鉄筋コンクリート造 地上8階建 6階部分
築年:1990年
敷金:
礼金:
備考:普通賃貸借契約2年(更新料:なし)、OAフロア、天井高2,450mm、害虫駆除費4,938円/半年
〈上記以外で契約時に掛かる主な費用〉
・仲介手数料(賃料1ヶ月分税別)
・前家賃(1ヶ月分)
・日割り家賃(月途中での賃料発生の場合)
・初回保証委託料(賃料合計の最大100%)
・火災保険料
The following two tabs change content below.
SOHO東京をご覧頂きましてありがとうございます。
お問い合わせに関しては、営業担当よりご連絡させて頂きます。
最新記事 by SOHO東京スタッフ (全て見る)
-
中目黒5分、気持ちの良い築浅デザイナーズSOHO
[目黒区/43万/70㎡] - 2026年3月2日 -
恵比寿、ガーデンプレイス内の大型リノベオフィス
[渋谷区/278万/163㎡] - 2025年12月26日 -
大きな空と運河を望む。湾岸エリアのシェアオフィス
[中央区/¥ASK/94㎡~]
- 2025年10月21日 - 【募集終了】田町、運河沿いのヴィンテージリノベオフィス - 2025年8月28日
- 【募集終了】代々木八幡、ナチュラルなメゾネットSOHO - 2024年5月30日
