物件をブックマーク
管理番号:S292988
恵比寿駅から少し離れた通り沿いの閑静な住宅街
2025年10月に誕生したばかりの上質なデザイナーズSOHO
恵比寿駅から少し離れた穏やかな通り沿いに佇む、建築美の際立つコンクリートフォルム。
SOHO・オフィスとして利用可能なデザイナーズ仕様の4区画が募集となりました。

コンクリート打ち放しのシャープなフォルムに斜めにカットされた外壁が特徴的な外観。
大きな窓がリズムよく並び、内部の開放感を外にまで伝えるデザインは、閑静な街並みに個性を与えています。

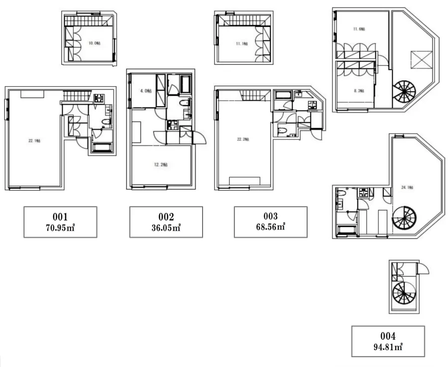
こちらのはきれい長方形で広々としたワークスペースが確保できる001号室。
やわらかな照明に淡い木目フローリングを合わせた落ち着いた内装デザイン。
撮影スタジオやデザインオフィスとしても使いやすい、余白を活かしたシンプルな空間設計となっています。

*002号室は募集終了
小規模オフィスとしてちょうど良い、コンパクトなサイズ感の002号室。
寝室スペースを仕切るパーティションも備わっているため、SOHOとしても十分に活用できそうです。


浮遊感のある階段・ステンレスキッチンが印象的な、メゾネットタイプの003号室。
大きな窓からはやわらかい光が差し込み、時間の移ろいとともに雰囲気が変化する、アートギャラリーのような佇まいです。
階段を上がるとカーペット調の一室が備わっており収納力も豊富です。


黒鉄の螺旋階段により縦への抜け感を感じさせるトリプレット構成の004号室。
天窓から入る外光と照明のほどよいバランスにより、空間をゆるやかに繋いてでいます。

螺旋階段をさらに上がると、用途によって使い分けが可能な2部屋の個室空間がございます。
両部屋とも完全に仕切ることができるため、ワークスペースや書斎としての活用いただけます。

新築物件ということもあり、水回りは清潔感があり、スタイリッシュなデザインで統一されています。

2025年10月に誕生したばかりの、素材感を活かしたデザイナーズ物件。
法人登記・ペットご相談可能など、職住両面で嬉しい条件が揃っています。
恵比寿エリアでデザイナーズ物件をお探しの方は、ぜひご検討ください。
管理番号:S292988
賃料:001号 ¥570,000(税込 ¥627,000)申込あり
賃料:001号 ¥570,000(税込 ¥627,000)申込あり
002号
003号 ¥600,000(税込 ¥660,000)
004号 ¥770,000(税込 ¥857,000)申込あり
共益費:¥30,000(税込 ¥33,000)
住所:渋谷区恵比寿3
広さ:001号 70.95㎡
共益費:¥30,000(税込 ¥33,000)
住所:渋谷区恵比寿3
広さ:001号 70.95㎡
002号 36.05㎡
003号 68.56㎡
004号 94.81㎡
アクセス:東京メトロ日比谷線・JR山手線「恵比寿駅」徒歩13分、東京メトロ三田線「白金台駅」徒歩15分
構造・規模:RC造 地上4階建地下1階建て
築年:2025年
敷金:2ヶ月
礼金:1ヶ月
備考:定期借家契約(2年間)、再契約料(新賃料の1ヶ月分)、保証会社利用必須、火災保険必須、ペット飼育時(敷金1ヶ月追加、
アクセス:東京メトロ日比谷線・JR山手線「恵比寿駅」徒歩13分、東京メトロ三田線「白金台駅」徒歩15分
構造・規模:RC造 地上4階建地下1階建て
築年:2025年
敷金:2ヶ月
礼金:1ヶ月
備考:定期借家契約(2年間)、再契約料(新賃料の1ヶ月分)、保証会社利用必須、火災保険必須、ペット飼育時(敷金1ヶ月追加、
退去時消毒代税別¥15,000)、短期違約金あり(1年未満の解約で、賃料2ヶ月分)
〈上記以外で契約時に掛かる主な費用〉
・仲介手数料(賃料1.1ヶ月分(税込))
・前家賃(1ヶ月分)
・日割り家賃(月途中での賃料発生の場合)
・初回保証委託料(賃料合計の最大100%)
・火災保険料
The following two tabs change content below.
SOHOオフィスのファインディング、コンテンツ制作、リーシングを担当。
イタリア、フランスで修行した後、西麻布「レフェルヴェソンス」をはじめ、様々なジャンルのレストランでキッチン、サービスに従事。
物件情報には周辺で評判の良い飲食店情報が付随してくる。
最新記事 by 小野寺 (全て見る)
-
三軒茶屋、落ち着きと余白を纏うメゾネット
[世田谷区/30万〜/47㎡〜] - 2025年12月17日 -
北参道、路面沿い開放感のワンフロアオフィス
[渋谷区/60万/75㎡] - 2025年12月10日 -
原宿、壮観な天高を構える吹抜けメゾネット
[渋谷区/166万/177㎡]
- 2025年12月10日 -
銀座、美しく煌くアートビルの天高ワンフロア
[中央区/158万/131㎡]
- 2025年12月8日 -
表参道、吹き抜けがつなぐデザイナーズメゾネット
[渋谷区/34万/53㎡]
- 2025年12月8日
