物件をブックマーク
*写真は前回募集時のもの。異なる場合は現況優先になります。管理番号:S198691
代田5丁目。下北沢からアクセス可。ガラス張りデザイナーズスタジオ。
井の頭線「新代田駅」より徒歩3分。「下北沢駅」からは徒歩10分。
環七通りから少し入った場所に立地する築浅物件です。
今回は、スタジオ利用に最適な多面鏡張りの空間をご紹介します。
ブロック壁とガラス張りの組み合わせが印象的な外観。
近代的でスタイリッシュながらも居心地の良い雰囲気が漂います。
周辺にはコンビニや飲食店、郵便局、銀行などが揃っており利便性の高いエリアです。
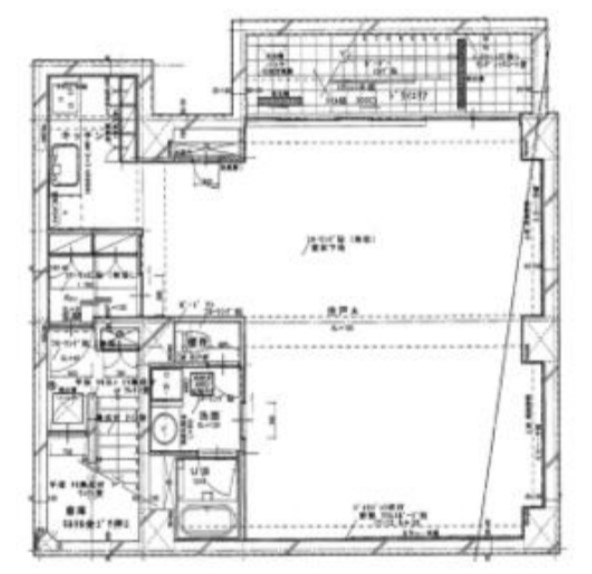
今回のご紹介はB1階の区画。
エントランス部分には防犯設備が整っています。
間取りは、シンプルな長方形のワンフロア。
カーテンを開けると日差しがたっぷり差し込み、より開放的な空間になるでしょう。
壁面鏡張りの、大規模スタジオ。
ダンスやヨガ、トレーニングジム、ピラティスなどのご利用に最適です。
広さとしては、10~15名程度でお使いいただけそうです。
落ち着いた色味の無垢フローリング。
シンプルモダンなデザインが、爽やかで温かみのある雰囲気を演出します。
スピーカーも完備。
その他にも十分な収納スペースや宅配ボックス、エアコンなど便利な設備が設けられています。
白を基調とした快適な水回り。
追い焚き風呂やシャワー、独立洗面台、カウンターキッチンなどといった水回りの設備も充実しています。
稀少な店舗・事務所利用相談可能なデザイナーズ物件。
特にスタジオ利用に最適な、鏡張りの空間と便利な機材を提供します。
是非、お早めにご検討ください。
管理番号:S198691
賃料:
共益費:
住所:世田谷区代田5
広さ:85㎡(25.71坪)
アクセス:井の頭線「新代田駅」徒歩3分、小田急線「世田谷代田駅」徒歩5分、井の頭線「下北沢駅」徒歩10分
構造・規模:RC造 地下1階地上3階建 地下1階部分
築年:2019年
敷金:
礼金:
備考:普通借家契約(2年間)、更新料(新賃料の1ヵ月)、保証会社必須、火災保険必須
最新記事 by 村山 (全て見る)
-
五反田5分、共用部を活かすコンパクトオフィス
[品川区/42万/34㎡]
- 2026年1月15日 -
目黒6分、デザイン性溢れるメゾネットSOHO
[目黒区/33万/49㎡]
- 2026年1月14日 -
西麻布、光広がるガレージ付き一棟SOHO
[港区/132万/279㎡]
- 2026年1月9日 -
目黒、敷礼0の家具付きセットアップデザイナーズ
[品川区/100万/130㎡]
- 2026年1月9日 -
東松原、閑静な街の駅近デザイナーズSOHO
[世田谷区/19万〜/47㎡〜] - 2026年1月9日
