物件をブックマーク
アパレル店舗が多く洗練されたイメージのある代官山エリア。事務所立地としても人気のこのエリアで、2020年3月に竣工したばかりの新築物件のご紹介です。
アドレスは目黒区上目黒1丁目。代官山と中目黒のちょうど中間に位置し、恵比寿駅も徒歩圏内とアクセスの良さは抜群です。
黒を基調としたモダンな外観は新築らしさを感じます。
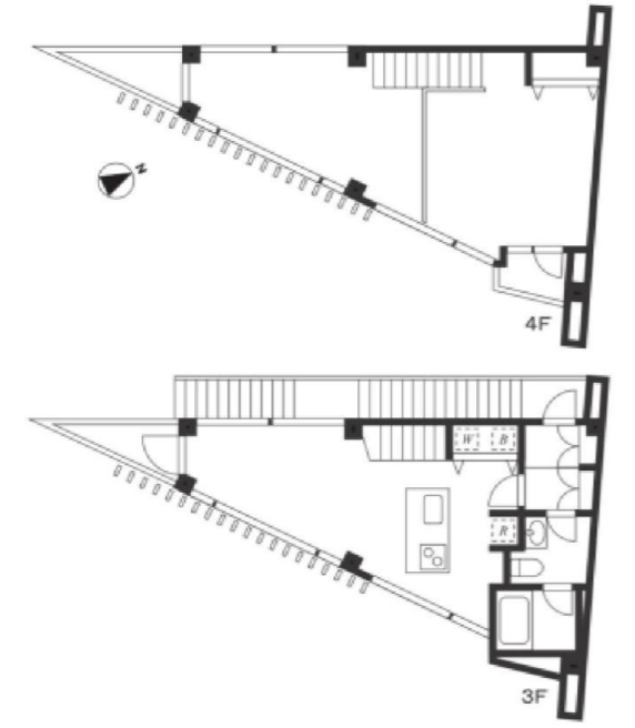
室内は2面採光で明るく、実際の面積よりも広い印象を受けます。部屋の半分は吹き抜けのようになっており、天井が高く開放感ある空間です。

メゾネットタイプで階段を上がった先にもお部屋があります。
住居兼事務所とする場合はこちらをベッドルームとすると良さそうですね。
住居兼事務所とする場合はこちらをベッドルームとすると良さそうですね。
別区画で2Fも募集中です。
タイルカーペットの敷かれたOAフロアでオフィスらしい印象。
まとめてご契約いただくことも可能ですので、詳細はお問い合わせください。
住みながら働くにも充分な水回り設備が整っています。
広々としたお手洗いやバスルームはグレードの高い印象です。
タイルカーペットの敷かれたOAフロアでオフィスらしい印象。
まとめてご契約いただくことも可能ですので、詳細はお問い合わせください。
住みながら働くにも充分な水回り設備が整っています。広々としたお手洗いやバスルームはグレードの高い印象です。

このエリアの新築物件はなかなか貴重かもしれません。リモートワークが中心のIT企業など、オフィスの広さはあまり必要ない場合に有用性が高そうです。
採光あふれる開放的な空間をぜひ一度ご覧くださいませ。
管理番号:S134532
賃料:
賃料:
共益費:なし
住所:目黒区上目黒1
広さ:
アクセス:東横線「代官山駅」徒歩3分、東横線「中目黒駅」徒歩4分、山手線「恵比寿駅」徒歩7分
構造・規模:鉄骨造4階建て
築年:2020年
敷金・保証金:
住所:目黒区上目黒1
広さ:
アクセス:東横線「代官山駅」徒歩3分、東横線「中目黒駅」徒歩4分、山手線「恵比寿駅」徒歩7分
構造・規模:鉄骨造4階建て
築年:2020年
敷金・保証金:
礼金:
備考:定期賃貸借3年契約、指定保険加入必須、保証会社利用必須
備考:定期賃貸借3年契約、指定保険加入必須、保証会社利用必須
The following two tabs change content below.
SOHOオフィスのファインディング、コンテンツ制作、リーシングを担当。
立教大学を卒業後、出版社でライフスタイル誌の企画、取材、撮影などに従事。同誌のウェブマガジン立ち上げ、コンテンツ制作を経てトランスリアルに参画。趣味は映画と音楽とトレーニング。
最新記事 by 辰口 (全て見る)
-
五反田、テラス付上質デザインのセットアップ
[品川区/110万/105㎡] - 2026年3月3日 -
渋谷、新築の家具・会議室付セットアップオフィス
[渋谷区/ASK/76㎡] - 2026年3月2日 -
原宿7分、インダストリアルなリノベSOHO
[渋谷区/44万/74㎡] - 2026年3月2日 -
本郷三丁目、30名規模のデザインセットアップ
[文京区/158万/188㎡] - 2026年2月27日 -
春日、会議室2つ付コスパ良のシンプルセットアップ
[文京区/ASK/161㎡] - 2026年2月27日
