物件をブックマーク
元々はアパレル会社が使っていたこの空間。道路に面した1階は最大天井高3mほどあります。
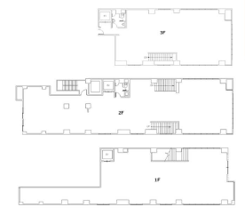
1〜3階合わせて260坪ほど。大きな可能性を感じる空間のご紹介です。
都営新宿線「馬喰横山駅」より徒歩1分、JR総武線「馬喰町駅」より徒歩2分、都営浅草線「東日本橋駅」より徒歩3分という立地。
11階建て分譲マンションの1~3階部分というちょっと変わった構造。こちらは裏のマンション側の出入り口です。
アパレル関係の店舗が多い東日本橋エリア。赤レンガ調の外観が目を引きます
1階部分は大理石の床は全テナント使用中のまま。現状引き渡しですので、ここから自由に作り込みをしていただければと。
作業スペースも十分に確保できるため、大人数でのオフィスでも問題ないでしょう。
こちらは2階部分。マンション側のエントランスからもアプローチ可能です。
こちらも白を基調とした空間。広々としています。
3階部分は1,2階よりは狭く、やや天井も低い印象。向かって左の階段で2階と行き来が可能です。
ただこちらも非常に広い。作業するスペースとしてもスタジオのような使い方でも、想像しうる様々なアイディアを実現できる空間ではないでしょうか。
なおトイレは2,3階に設置されています。
アクセス良好で、十分な広さを確保した本物件。
自由自在に活用が出来るこちらの物件で新たなビジネスを始めてみてはいかがでしょうか。
管理番号:S159292
賃料:
共益費:
住所:中央区日本橋横山町3
広さ:878.15㎡(265.65坪)
アクセス:都営新宿線「馬喰横山駅」徒歩1分、JR総武線「馬喰町駅」徒歩2分、都営浅草線「東日本橋駅」徒歩3分
構造:鉄骨鉄筋コンクリート造地上11階建 1~3階部分
築年:1981年
保証金:
礼金:
償却:
備考:5年契約、保証会社利用必須
〈上記以外で契約時に掛かる主な費用〉
・仲介手数料(賃料1ヶ月分税別)
・前家賃(1ヶ月分)
・日割り家賃(月途中での賃料発生の場合)
・初回保証委託料(賃料合計の最大100%)
・火災保険料
最新記事 by SOHO東京スタッフ (全て見る)
-
中目黒5分、気持ちの良い築浅デザイナーズSOHO
[目黒区/43万/70㎡] - 2026年3月2日 -
恵比寿、ガーデンプレイス内の大型リノベオフィス
[渋谷区/278万/163㎡] - 2025年12月26日 -
大きな空と運河を望む。湾岸エリアのシェアオフィス
[中央区/¥ASK/94㎡~]
- 2025年10月21日 - 【募集終了】田町、運河沿いのヴィンテージリノベオフィス - 2025年8月28日
- 【募集終了】代々木八幡、ナチュラルなメゾネットSOHO - 2024年5月30日
