物件をブックマーク
*写真は似た間取りの別フロアのもの。異なる場合は現況優先になります。管理番号:S173855
秋葉原。ハイグレードなセットアップオフィス。
千代田区東神田2丁目。
JR総武線「馬喰町駅」より徒歩4分、その他「岩本町駅」「秋葉原駅」が徒歩圏。
今回は8階のセットアップ区画をご紹介いたします。
JR総武線「馬喰町駅」より徒歩4分、その他「岩本町駅」「秋葉原駅」が徒歩圏。
今回は8階のセットアップ区画をご紹介いたします。

靖国通りから一本入ったところに位置しています。郵便局やコンビニエンスストアが近くにあり、便利な立地。
落ち着いた佇まいは、誠実な印象を与えます。
建物自体の築年数は経っていますが、内装だけでなく、エントランスや共用部もリニューアル済み。
落ち着いた佇まいは、誠実な印象を与えます。
建物自体の築年数は経っていますが、内装だけでなく、エントランスや共用部もリニューアル済み。

室内に入ると、ライトグレーを基調としたスタイリッシュな空間が広がります。
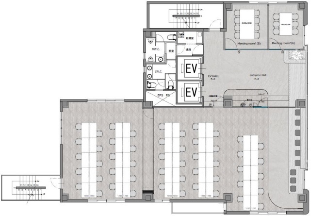
広々としたスペースですが、室内中央に大きな柱等はなく、レイアウトの自由度が高い点が魅力。下記図面のようにデスクを配置しており、最大で50名ほどの執務スペースとしてご利用いただけるオフィス。床はOAフロア。
広々としたスペースですが、室内中央に大きな柱等はなく、レイアウトの自由度が高い点が魅力。下記図面のようにデスクを配置しており、最大で50名ほどの執務スペースとしてご利用いただけるオフィス。床はOAフロア。

窓際には、カウンター席にチェアが置かれたスペースが用意されています。
休憩時や、作業場、ちょっとしたコミュニケーションを取る場として重宝しそうです。
休憩時や、作業場、ちょっとしたコミュニケーションを取る場として重宝しそうです。

ミーティングスペースは2部屋。8人掛けと6人掛けのテーブルが用意されています。ビビッドなイエローがシンプルな内装のアクセントに。

リニューアルされ清潔感がある水回り。トイレは男女別なので、女性スタッフがいる場合にも安心。
給湯室は執務スペースからは目に入らないところにございます。
給湯室は執務スペースからは目に入らないところにございます。

屋上スペースには、共用のバルコニーが。
テーブル席もあり、ちょっとしたリフレッシュやコミュニケーションの場として活躍してくれそうです。
テーブル席もあり、ちょっとしたリフレッシュやコミュニケーションの場として活躍してくれそうです。

シンプルながらも、スタンダードなオフィス仕様とは一味異なるハイグレードな空間。
複数路線利用可能のアクセスに便利な立地も魅力。是非ご検討ください。
複数路線利用可能のアクセスに便利な立地も魅力。是非ご検討ください。
管理番号:S173855
賃料:
共益費:
住所:千代田区東神田1
広さ:243.65㎡(73.70坪)
アクセス:山手線「秋葉原駅」徒歩10分、新宿線「岩本町駅」徒歩6分、総武線「馬喰町駅」徒歩4分
構造・規模:鉄骨造 地上9階建 8階部分
築年:1985年
敷金:
礼金:
備考:契約期間2年、保証会社利用相談、火災保険必須、OAフロア、男女別トイレ、エレベーター2基
賃料:
共益費:
住所:千代田区東神田1
広さ:243.65㎡(73.70坪)
アクセス:山手線「秋葉原駅」徒歩10分、新宿線「岩本町駅」徒歩6分、総武線「馬喰町駅」徒歩4分
構造・規模:鉄骨造 地上9階建 8階部分
築年:1985年
敷金:
礼金:
備考:契約期間2年、保証会社利用相談、火災保険必須、OAフロア、男女別トイレ、エレベーター2基
〈上記以外で契約時に掛かる主な費用〉
・仲介手数料(賃料1ヶ月分税別)
・前家賃(1ヶ月分)
・日割り家賃(月途中での賃料発生の場合)
・初回保証委託料(賃料合計の最大100%)
・火災保険料
・仲介手数料(賃料1ヶ月分税別)
・前家賃(1ヶ月分)
・日割り家賃(月途中での賃料発生の場合)
・初回保証委託料(賃料合計の最大100%)
・火災保険料
The following two tabs change content below.
SOHO東京をご覧頂きましてありがとうございます。
お問い合わせに関しては、営業担当よりご連絡させて頂きます。
最新記事 by SOHO東京スタッフ (全て見る)
-
中目黒5分、気持ちの良い築浅デザイナーズSOHO
[目黒区/43万/70㎡] - 2026年3月2日 - 【募集終了】恵比寿、ガーデンプレイス内の大型リノベオフィス - 2025年12月26日
-
大きな空と運河を望む。湾岸エリアのシェアオフィス
[中央区/¥ASK/94㎡~]
- 2025年10月21日 - 【募集終了】田町、運河沿いのヴィンテージリノベオフィス - 2025年8月28日
- 【募集終了】代々木八幡、ナチュラルなメゾネットSOHO - 2024年5月30日
