物件をブックマーク
管理番号:S221995
「代々木上原駅」徒歩圏内。
洗練された街のデザイナーズ空間。
都心へのアクセスは抜群かつ代々木公園の近くで自然もあり、都会と自然のバランスがとれた街、代々木上原。
今回は、小田急線「代々木上原駅」より徒歩9分の位置に佇む物件のご紹介です。

外壁を持たず独特の構造設計で構成されており、全方面ガラス張りになっています。
コスモス通りに面していて視認性が良く、プレゼンテーション力が強いのが魅力的ですね。

室内からの眺望です。最高豊かで明るく開放的な空間となっています。
サッシ開閉によって室内空間をテラスの様に利用出来るよう設計されています。

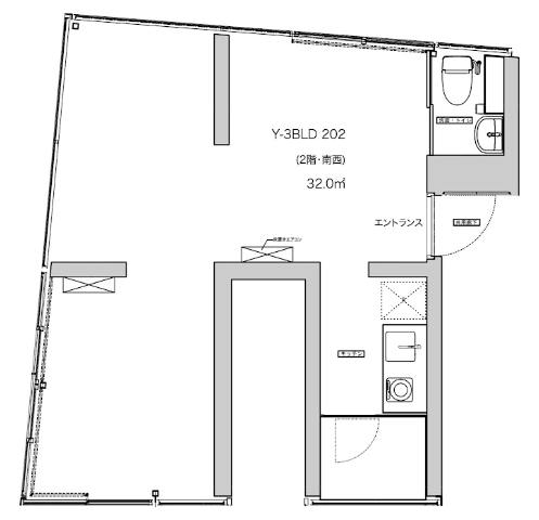
一つ一つに明確な仕切りはないものの、内壁が感覚的に空間を作り上げているので、部屋は大きく分けて3部屋とれるでしょうか。
エントランスと室内はフラットで、カジュアルな印象を受けます。また、バリアフリーにも配慮されています。

無機質な打放しコンクリートとフローリングの木の温かみのコントラストが印象的ですね。
室内には床置きエアコンが2つ設置されており、室内の温度調整も手軽に行えます。

アパレルのアトリエ・ショップ、物販、オフィス、教室など様々な用途に利用可能です。
通りを歩いているとまず物件自体のデザイン性に目が引かれますが、窓から覗く室内にそのまま目が行くようなレイアウトや内装を作り上げるのも楽しくなりそうですね。

水回りは全体的にシンプルなデザイン。
ステンレスキッチンにはIHコンロが1口ついています。
ステンレスキッチンにはIHコンロが1口ついています。
元々はシャワールームだったキッチン奥の空間は、表通りからは磨りガラスで中が見えないようになっています。

限られたスペースの中で多様な利用方法を可能にする事を念頭に企画された当物件。
コンパクトな空間を活用した物販等のマイクロショップ・ショールームとして小型の商材を扱う業種には好適です。
代々木エリアで物件をご希望の方はぜひご検討ください。
管理番号:S221995
賃料:
共益費:
住所:渋谷区上原3
広さ:32㎡
アクセス:小田急線「東北沢駅」徒歩5分、「代々木上原駅」徒歩9分、京王井の頭線「池の上駅」より徒歩7分
構造:鉄筋コンクリート造 地上4階建 2階部分
築年:2009年
敷金:
礼金:
備考:契約期間(2年間)、更新料(新賃料の1ヶ月)、保証会社利用必須、火災保険必須
賃料:
共益費:
住所:渋谷区上原3
広さ:32㎡
アクセス:小田急線「東北沢駅」徒歩5分、「代々木上原駅」徒歩9分、京王井の頭線「池の上駅」より徒歩7分
構造:鉄筋コンクリート造 地上4階建 2階部分
築年:2009年
敷金:
礼金:
備考:契約期間(2年間)、更新料(新賃料の1ヶ月)、保証会社利用必須、火災保険必須
〈上記以外で契約時に掛かる主な費用〉
・仲介手数料(賃料1.1ヶ月分(税込))
・前家賃(1ヶ月分)
・日割り家賃(月途中での賃料発生の場合)
・初回保証委託料(賃料合計の最大100%)
・火災保険料
The following two tabs change content below.
SOHO東京をご覧頂きましてありがとうございます。
お問い合わせに関しては、営業担当よりご連絡させて頂きます。
最新記事 by SOHO東京スタッフ (全て見る)
-
中目黒5分、気持ちの良い築浅デザイナーズSOHO
[目黒区/43万/70㎡] - 2026年3月2日 - 【募集終了】恵比寿、ガーデンプレイス内の大型リノベオフィス - 2025年12月26日
-
大きな空と運河を望む。湾岸エリアのシェアオフィス
[中央区/¥ASK/94㎡~]
- 2025年10月21日 - 【募集終了】田町、運河沿いのヴィンテージリノベオフィス - 2025年8月28日
- 【募集終了】代々木八幡、ナチュラルなメゾネットSOHO - 2024年5月30日
