物件をブックマーク
*引渡時期:2025年6月1日以降
*内見可能
*写真は似た間取りの別部屋のもの。異なる場合は現況優先になります。
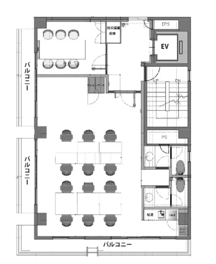
*執務室内什器12席用、会議室内什器6名用、テレカンブース設置
*内見可能
*写真は似た間取りの別部屋のもの。異なる場合は現況優先になります。
*執務室内什器12席用、会議室内什器6名用、テレカンブース設置
管理番号:S224655-2
「水道橋駅」より徒歩4分
デザイン性と機能性に優れた、駐車場付きセットアップオフィス
オフィスビルや飲食店で賑わう水道橋エリア。
今回ご紹介する物件は「水道橋駅」より徒歩4分の好立地に位置する、
デザイン・機能ともに優れたセットアップオフィスです。
今回ご紹介する物件は「水道橋駅」より徒歩4分の好立地に位置する、
デザイン・機能ともに優れたセットアップオフィスです。

白壁と「STAND」の文字が映える外観。
3台分の平置き駐車場付きです。
3台分の平置き駐車場付きです。

エントランスホールは空調を完備。
冬は暖かく、夏は涼しい、来客時にも嬉しい機能です。
冬は暖かく、夏は涼しい、来客時にも嬉しい機能です。

エレベーターホールは広々としており、デザインにも細やかな工夫が見られます。

ガラス扉から執務室と会議室が見通せる仕様。

会議室は6名用。
天井・床材のデザインが特徴的で、広さも十分です。
天井・床材のデザインが特徴的で、広さも十分です。

こちらは執務スペース。
写真にはありませんが、執務室内什器12席用、会議室内什器6名用、テレカンブース設置をしたフルセットアップでの引き渡しとなります。
入居後、即稼働ができる点も大きなメリットかと。
入居後、即稼働ができる点も大きなメリットかと。

スケルトンの天井は、天井高が最大2,800mmです。
広く開放感のある空間づくりがなされています。

執務室はコンパクトなキッチンスペース付き。
トイレは男女別で完備しておりこちらもデザイン性に優れます。
トイレは男女別で完備しておりこちらもデザイン性に優れます。

水道橋エリアで駐車場付き、フルセットアップの好条件ですので、お近くでお探しの際は是非ご検討ください。
管理番号:S224655-2
賃料:¥(税込 ¥)
賃料:¥(税込 ¥)
共益費:賃料に含む
住所:千代田区神田三崎町2
広さ:89.02㎡(26.92坪)
アクセス:JR中央線・総武線「水道橋駅」徒歩4分、都営三田線「水道橋駅」徒歩5分、都営三田線・新宿線「神保町駅」徒歩7分、東京メトロ半蔵門線・東西線、都営新宿線「九段下駅」徒歩7分
構造・規模:RC造 地上5階建 5階部分
築年:1983年(新耐震基準)
敷金:
住所:千代田区神田三崎町2
広さ:89.02㎡(26.92坪)
アクセス:JR中央線・総武線「水道橋駅」徒歩4分、都営三田線「水道橋駅」徒歩5分、都営三田線・新宿線「神保町駅」徒歩7分、東京メトロ半蔵門線・東西線、都営新宿線「九段下駅」徒歩7分
構造・規模:RC造 地上5階建 5階部分
築年:1983年(新耐震基準)
敷金:
礼金:
備考:普通借家契約(2年間)、更新料なし、保証会社利用必須、火災保険必須、OAフロア、機械警備(SECOM)
備考:普通借家契約(2年間)、更新料なし、保証会社利用必須、火災保険必須、OAフロア、機械警備(SECOM)
〈上記以外で契約時に掛かる主な費用〉
・仲介手数料(賃料1.1ヶ月分(税込))
・前家賃(1ヶ月分)
・日割り家賃(月途中での賃料発生の場合)
・初回保証委託料(賃料合計の最大100%)
・火災保険料
The following two tabs change content below.
SOHOオフィスのファインディング、コンテンツ制作、リーシングを担当。
東京生まれ。俳優として舞台、映像作品、CMなど250作品以上に出演。舞台脚本家、演出家として15作品の制作を経て、トランスリアルに参画。
最新記事 by 和久井 (全て見る)
-
神保町、機能性抜群のワンフロアオフィス
[千代田区/67万/83㎡] - 2026年3月4日 -
表参道。ルーフルバルコニー付2LDKのSOHOライフ
[渋谷区/63万/121㎡] - 2026年3月3日 -
浜松町、アクセス良好・3面採光のリノベオフィス
[港区/26万/41㎡] - 2026年3月2日 -
恵比寿・広尾のインダストリアルリノベオフィス
[渋谷区/182万/218㎡] - 2026年3月2日 -
水天宮前、天高約3mの100坪超えリノベオフィス
[中央区/182万/365㎡] - 2026年2月28日
