物件をブックマーク
管理番号:S245847
*写真は前回募集時のもの。異なる場合は現況優先になります。
*内見可能。入居時期:2026年5月14日~(入居時期 前倒し相談可能:入居申込から2ヶ月程度で入居可能)
*サービス店舗相談可能(業種相談)
*内見可能。入居時期:2026年5月14日~(入居時期 前倒し相談可能:入居申込から2ヶ月程度で入居可能)
*サービス店舗相談可能(業種相談)
変化し続ける渋谷・桜丘町で、デザイン性と機能性を兼ね備えた快適なオフィスの実現を叶える
渋谷の中でも、昭和を感じさせる風情が漂い、ノスタルジックな雰囲気のある桜丘町エリア。
再開発が進む桜丘町エリアの中でも、落ち着いた住宅街の雰囲気と、渋谷らしい都市的なエネルギーが共存する立地です。
今回は、渋谷駅から徒歩5分という好立地にあるサービス店舗可能なSOHOオフィスをご紹介します。

再開発が進む桜丘町エリアの中でも、落ち着いた住宅街の雰囲気と、渋谷らしい都市的なエネルギーが共存する立地です。
今回は、渋谷駅から徒歩5分という好立地にあるサービス店舗可能なSOHOオフィスをご紹介します。

コンクリート打ちっ放しとガラスを組み合わせ、はっきりした凹凸の形状が特徴的なユニークなファサードです。
内装はモダンで洗練されたデザインのデザイナーズオフィス仕様。白のタイルに、壁には白のレンガ調のタイルを組み合わせた、オフホワイトのワントーンで。
同じタイルでもデザインの異なるものを使用するところにこだわりを感じます。
同じタイルでもデザインの異なるものを使用するところにこだわりを感じます。

タイル特有の光沢は、部屋全体を明るい空間にするとともに高級感を醸し出しています
玄関との仕切りにはガラスを使うことで、圧迫感が軽減されています。

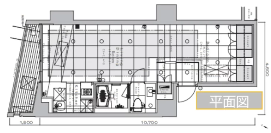
広さで考えると、ゆとりを持って5~6人程度でしょうか。
収納スペースもしっかり確保されているので、部屋を広々と使うことができそうです。
水回りは1箇所にまとめられ、白を基調としたクリーンな内装の仕上がりです。ビルトインの小型洗濯機も設置されており、SOHO利用やサービス店舗としての利用にも十分対応できます。

コンパクトなサイズ感ながらも、窮屈さを感じさせないデザインのこだわりが見られます。
事務所だけでなく、サロン・予約制の店舗なども相談可能です。
事務所だけでなく、サロン・予約制の店舗なども相談可能です。
アクセスの良さに加え、デザイン性・機能性・立地の三拍子がそろった東京・渋谷エリアらしいサービス店舗可能なオフィス。
渋谷区でSOHOオフィスやサロン物件をお探しの方はぜひ一度ご検討ください。
管理番号:S245847
賃料: ¥300,610(税込 ¥330,671)
賃料: ¥300,610(税込 ¥330,671)
共益費: 賃料に含む
住所:渋谷区桜丘町
広さ:40.22㎡(13.07坪)
アクセス:JR山手線・他各線「渋谷駅」徒歩7分、東急東横線「代官山駅」徒歩11分
構造・規模:SRC造 地上10階建 2階部分
築年:2009年
敷金:2ヶ月(退去時 償却1ヶ月)
礼金:1ヶ月
備考:普通借家契約(2年間)、更新料(新賃料の1ヶ月分)、保証会社利用要、火災保険必須、事務所利用可能(法人登記可能)、サービス店舗ご相談可能(業種相談)
住所:渋谷区桜丘町
広さ:40.22㎡(13.07坪)
アクセス:JR山手線・他各線「渋谷駅」徒歩7分、東急東横線「代官山駅」徒歩11分
構造・規模:SRC造 地上10階建 2階部分
築年:2009年
敷金:2ヶ月(退去時 償却1ヶ月)
礼金:1ヶ月
備考:普通借家契約(2年間)、更新料(新賃料の1ヶ月分)、保証会社利用要、火災保険必須、事務所利用可能(法人登記可能)、サービス店舗ご相談可能(業種相談)
〈上記以外で契約時に掛かる主な費用〉
・仲介手数料(賃料1.1ヶ月分(税込))
・前家賃(1ヶ月分)
・日割り家賃(月途中での賃料発生の場合)
・初回保証委託料(賃料合計の最大100%)
・火災保険料
The following two tabs change content below.
SOHOオフィスのファインディング、コンテンツ制作、リーシングを担当。
東京生まれ。俳優として舞台、映像作品、CMなど250作品以上に出演。舞台脚本家、演出家として15作品の制作を経て、トランスリアルに参画。
最新記事 by 和久井 (全て見る)
-
新宿、123坪デザイナーズオフィスでビジネスを躍進
[新宿区/ASK/407㎡] - 2026年1月31日 -
恵比寿、専用テラス付、敷金礼金なしのセットアップ
[渋谷区/140万/93㎡] - 2026年1月27日 -
田町札の辻そば。フルリノベーションオフィス
[港区/38万/66㎡] - 2026年1月25日 -
人形町、アパルトマンを彷彿とさせるセットアップ
[中央区/50万/62㎡] - 2026年1月22日 -
赤坂、敷礼0のリノベ済みセットアップオフィス
[港区/82万/111㎡] - 2026年1月21日
