物件をブックマーク
*写真は前回募集時のもの。異なる場合は現況優先になります。
管理番号:185732
六本木三丁目、再開発エリアに程近い広々ルーバル付きのヴィンテージSOHO物件。
南北線「六本木1丁目駅」徒歩4分。
港区六本木エリアの眺望良好な最上階・角部屋の広々ルーフバルコニー付きのSOHO物件をご紹介します。
首都高沿いにある今回の物件、首都高の対面は再開発中。
高層物件が立ち並ぶ麻布台エリアのヴィンテージマンションの最上階に今回のお部屋があります。

重厚感のあるレンガタイルの外観とは打って変わってホワイトベースのシンプルな内装。
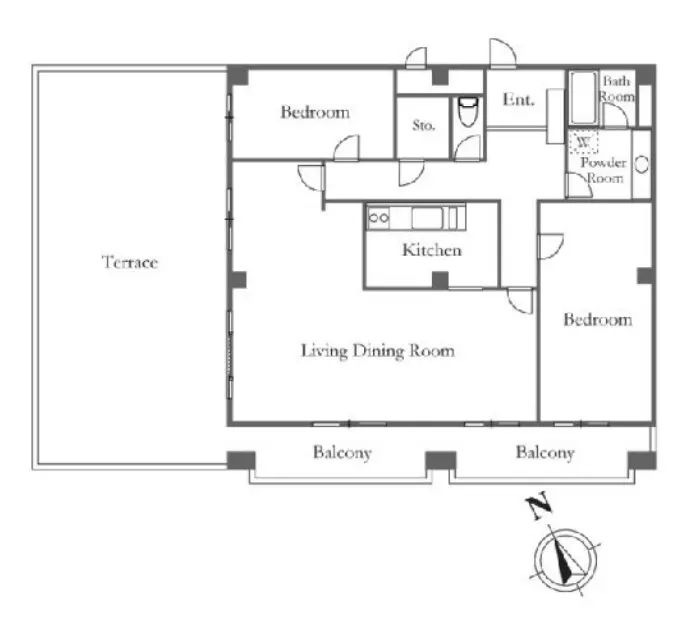
広々としたL字型のリビングはいろんなレイアウトで利用可能、仕事場としてもプライベート空間としても多様な使い方ができそうです。
キッチンや大きなルーフバルコニーにつながっています。
リビングルームに面した広いルーフバルコニーがこのお部屋のハイライト。
眺望はとても良く、夜は夜景も楽しめそう。
現状少し味気なく感じる部分もあるので、ウッドデッキや植栽などで少し飾りたいなと思う部分でもあります。
その他にも個室が2部屋ある2LDKプラン、ミーティングスペースや応接スペースなどに使用可能です。
玄関側にはウォークインクローゼット。
収納スペースがたくさん欲しいというニーズにも合致しています。
キッチンスペースは大型の冷蔵庫をおいても広々使用できるくらいのスペースがあります。
港区六本木、再開発エリアにも近いヴィンテージ物件の最上階・角部屋・SOHO使用可能な今回の物件。
リビングと同じくらいの広さのルーフバルコニーはとにかく希少、お部屋は比較的シンプルですが、ルーバル好きの方には是非一度ご覧いただきたい物件です。
管理番号:S185732
賃料:600,000(税込¥660,000)
賃料:600,000(税込¥660,000)
共益費:賃料に含む
住所:港区六本木3
広さ:115.84㎡
アクセス:南北線「六本木1丁目駅」徒歩4分、日比谷線「六本木駅」徒歩8分、都営大江戸線「麻布十番駅」徒歩10分
構造・規模:SRC造11階建て 11階部分
築年:1979年
敷金:2ヶ月
礼金:1ヶ月
備考:定期借家契約4年(再契約料:賃料1ヶ月分)、保証会社加入必須、事務所使用可、風呂は残置物
〈上記以外で契約時に掛かる主な費用〉
・仲介手数料(賃料1ヶ月分税別)
・前家賃(1ヶ月分)
・日割り家賃(月途中での賃料発生の場合)
・初回保証委託料(賃料合計の最大100%)
・火災保険料
The following two tabs change content below.
SOHOオフィスのファインディング、コンテンツ制作、リーシングを担当。
新潟生まれ。大学卒業後、アイウェア企業に入社。店舗での店長経験などを経てトランスリアルに参画。
最新記事 by 村山 (全て見る)
-
六本木、天井無垢フローリングのリノベオフィス
[港区/40万/60㎡] - 2026年2月13日 -
六本木、プレミアムなルーバル、眺望豊かなSOHO
[港区/66万/115㎡]
- 2026年2月13日 -
目黒6分、デザイン性溢れるメゾネットSOHO
[目黒区/33万/49㎡]
- 2026年2月12日 -
市ヶ谷、抜け感と木の質感が心地よいセットアップ
[千代田区/143万/142㎡] - 2026年2月6日 -
淡路町2分、快適環境、完成型什器付きオフィス
[千代田区/162万/186㎡] - 2026年2月6日
