物件をブックマーク
表参道から徒歩7分。
骨董通りを裏手に進むとほどなく、南青山と渋谷の境目に佇む静けさと便利な立地を兼ね備えた本物件。
国内ブランドのショールームも近隣にあるためアパレル関係はもちろん、近年表参道界隈に数多く進出しているIT系の企業にも適している立地と言えます。
グレーを基調としており白のラインがアクセントになっているデザイン性に優れた外観。
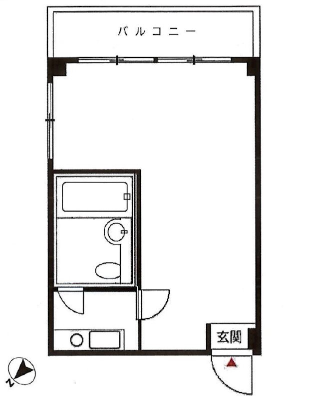
お部屋はワンルームタイプでL字型の間取り。床はフローリング調仕上げでシンプルで使いやい空間に仕上がっています。
4名ほどでの利用が想定できそう。
簡易的に家具などで区切り、応接室や休憩スペースにするのもよいのではないでしょうか。
水回りとバルコニー。ユニットバスタイプです。
シンプルで使い勝手の良いワンルームで、どんな業種にもお使い頂きやすい物件です。
小さな本社を構えたい方にいかがでしょうか。
管理番号:S150432
賃料:
管理費:
住所:港区南青山5
広さ:39.66㎡
アクセス:銀座線「表参道駅」徒歩7分、銀座線「外苑前駅」徒歩18分、山手線「渋谷駅」徒歩17分
構造規模:鉄筋コンクリート造地上4階建て 2階部分
築年:1970年
敷金:
礼金:
備考:普通借家契約2年(更新料:1ヵ月)、保証会社利用必須、火災保険加入要、鍵交換費用、消毒費用、事務手数料
〈上記以外で契約時に掛かる主な費用〉
・仲介手数料(賃料1ヶ月分税別)
・前家賃(1ヶ月分)
・日割り家賃(月途中での賃料発生の場合)
・初回保証委託料(賃料合計の最大100%)
・火災保険料
The following two tabs change content below.
SOHO東京をご覧頂きましてありがとうございます。
お問い合わせに関しては、営業担当よりご連絡させて頂きます。
最新記事 by SOHO東京スタッフ (全て見る)
-
代々木、視認性ある1階ガラス張りワークスペース
[渋谷区/83万/107㎡]
- 2026年3月12日 - 【募集終了】恵比寿、ガーデンプレイス内の大型リノベオフィス - 2025年12月26日
-
大きな空と運河を望む。湾岸エリアのシェアオフィス
[中央区/¥ASK/94㎡~]
- 2025年10月21日 - 【募集終了】田町、運河沿いのヴィンテージリノベオフィス - 2025年8月28日
- 【募集終了】代々木八幡、ナチュラルなメゾネットSOHO - 2024年5月30日
