物件をブックマーク
管理番号:S291623
「中目黒駅」徒歩3分
青を基調にした穏やかなトーンと、機能的な空間デザインが魅力の、感性豊かなフルセットアップオフィス
東京メトロ日比谷線・東急東横線「中目黒駅」徒歩3分、東急東横線「代官山駅」徒歩12分。
洗練された街の雰囲気と、実務に直結する機能性を兼ね備えたセットアップオフィスが登場しました。
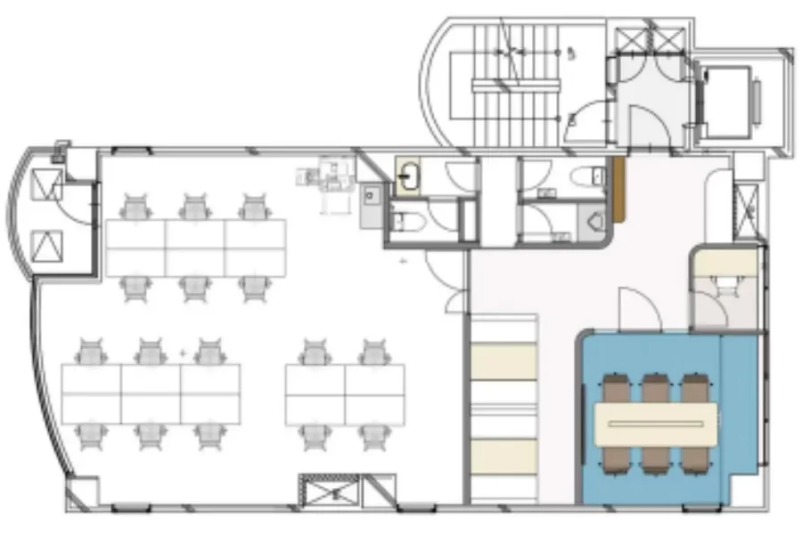
受付・会議室・テレカンブースを備え、入居初日から業務をスタートできる利便性が魅力です。
自然光の入る執務空間に、明るく落ち着いたデザインで、東京オフィスとしての印象を高めながら、日々の働きやすさを叶える空間です。

レンガ調タイルの外壁が特徴的な、落ち着いた雰囲気のミドルスケールオフィスビルです。
曲線を描くバルコニーやコーナーガラスが柔らかな印象を与え、周囲の緑ともよく馴染んでいます。
エントランスはガラス張りで、明るく開放的な印象。
1階には植栽とアプローチスペースが設けられ、視認性とプライバシーのバランスが取れています。

室内はナチュラルなベージュトーンをベースに、ポイントでグリーンを効かせた落ち着きのあるデザイン。
壁や建具の角をやわらかく仕上げ、曲線を取り入れたデザインが印象的です。

ガラスの建具で仕切られた6名用会議室は、外部からの光を柔らかく取り込みながら、集中できる落ち着いた空間に仕上げられています。
壁面には大型モニターを設置し、プレゼンテーションやオンライン会議もスムーズに行える仕様。

中目黒の静けさと感性を背景に、働く時間そのものを心地よくする空間設計。
什器付きのセットアップオフィスだからこそ、すぐにチームのストーリーを始められる環境が整っています。
管理番号:S291623
賃料:
共益費:
住所:目黒区上目黒3
広さ:103.10㎡(31.18坪)
アクセス:東京メトロ日比谷線・東急東横線「中目黒駅」徒歩3分、東急東横線「代官山駅」徒歩12分
構造・規模:RC造 地上7階建 5階部分
築年:1991年
敷金:
礼金:
備考:普通借家契約(2年間)、更新料(なし)、保証会社利用必須、火災保険必須
賃料:
共益費:
住所:目黒区上目黒3
広さ:103.10㎡(31.18坪)
アクセス:東京メトロ日比谷線・東急東横線「中目黒駅」徒歩3分、東急東横線「代官山駅」徒歩12分
構造・規模:RC造 地上7階建 5階部分
築年:1991年
敷金:
礼金:
備考:普通借家契約(2年間)、更新料(なし)、保証会社利用必須、火災保険必須
〈上記以外で契約時に掛かる主な費用〉
・仲介手数料(賃料1.1ヶ月分(税込))
・前家賃(1ヶ月分)
・日割り家賃(月途中での賃料発生の場合)
・初回保証委託料(賃料合計の最大100%)
・火災保険料
The following two tabs change content below.
SOHOオフィスのファインディング、コンテンツ制作、リーシングを担当。
立教大学を卒業後、出版社でライフスタイル誌の企画、取材、撮影などに従事。同誌のウェブマガジン立ち上げ、コンテンツ制作を経てトランスリアルに参画。趣味は映画と音楽とトレーニング。
最新記事 by 辰口 (全て見る)
-
代官山の隠れ家SOHO、静かな創造空間
[渋谷区/53万/61㎡] - 2025年12月13日 -
神谷町6分、シンプル内装の会議室付きオフィス
[港区/99万/119㎡] - 2025年12月13日 -
神宮前5丁目、2LDK+DENの低層デザイナーズSOHO
[渋谷区/78万/119㎡]
- 2025年12月10日 -
新大塚4分、エリアで希少な会議室付リノベオフィス
[文京区/186万/253㎡] - 2025年12月9日 -
新富町1分、会議室付シンプルセットアップ
[中央区/60万/78㎡] - 2025年12月4日
