
管理番号:292910
*2026年2月入居可能予定
*画像は完成予想のパースとなります。
「田町駅」徒歩5分。芝浦に誕生した、眺望バルコニー付き上質な新築オフィス。
JR山手線・JR京浜東北線「田町駅」徒歩5分、都営三田線「三田駅」徒歩8分。
都心ながら穏やかな時間が流れる芝浦運河沿いに、新たなセットアップオフィスが誕生します。
芝浦運河に面した側には、フロアごとにバルコニーが設置されており、水辺の景観を楽しみながら打ち合わせや休憩時間を過ごせます。
天井高のある空間に、落ち着いたトーンのインテリアと木質感のある素材を組み合わせ、ラウンジのような居心地と集中できる静けさを両立。
デザイン性と機能性が融合した、新しい「働く場所」のスタイルです。
天井高のある空間に、落ち着いたトーンのインテリアと木質感のある素材を組み合わせ、ラウンジのような居心地と集中できる静けさを両立。
デザイン性と機能性が融合した、新しい「働く場所」のスタイルです。

直線的で無駄のないフォルムに、植栽が彩るバルコニーが印象的な外観。
コンクリートの質感とガラスの透明感が美しく対比し、自然と都市が共存するような佇まいを感じさせます。
コンクリートの質感とガラスの透明感が美しく対比し、自然と都市が共存するような佇まいを感じさせます。

*画像は完成予想のパースとなります。
4Fは会議室(6名用)が標準設置された実用的なフロア。8Fは4名掛けと人数感に合わせて選択可能。
バルコニー付きで自然光がたっぷり差し込み、クリエイティブ職種やスタートアップ企業にも最適です。
フロア全体の視認性が高く、来客時の印象も良い造り。
運河沿いという立地を活かしながら、ワークライフの質を高めるオフィスです。
バルコニー付きで自然光がたっぷり差し込み、クリエイティブ職種やスタートアップ企業にも最適です。
フロア全体の視認性が高く、来客時の印象も良い造り。
運河沿いという立地を活かしながら、ワークライフの質を高めるオフィスです。

最上階には、専用ルーフバルコニーが備えられ、開放感あふれる眺望とプライベートな空気を楽しめます。
天井高約3mがもたらす伸びやかな空間設計は、少人数チームの本拠地としてもゆとりある空間に。
家具付きのセットアップ仕様で、すぐに業務を開始できる環境が整っています。
天井高約3mがもたらす伸びやかな空間設計は、少人数チームの本拠地としてもゆとりある空間に。
家具付きのセットアップ仕様で、すぐに業務を開始できる環境が整っています。

内装は、木目とグリーンが調和した、心地よいナチュラルモダンなセットアップオフィス。
フロア中央には植栽が配置され、空間に自然のリズムと奥行きを生み出しています。
やわらかなベージュトーンのカーペットが全体を包み込み、重厚さと温かみを両立した落ち着きのある雰囲気で働ける環境に。
フロア中央には植栽が配置され、空間に自然のリズムと奥行きを生み出しています。
やわらかなベージュトーンのカーペットが全体を包み込み、重厚さと温かみを両立した落ち着きのある雰囲気で働ける環境に。
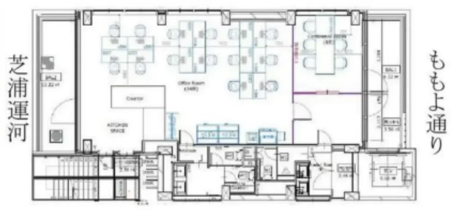
4F間取り図
8F間取り図
都心の喧騒から少し離れた芝浦エリアの新築セットアップ。
水辺の静けさと開放感、そしてデザイン性を兼ね備えた空間。
働く人の感性を刺激し、日常に豊かさをもたらす場所を目指す方へぜひ。
働く人の感性を刺激し、日常に豊かさをもたらす場所を目指す方へぜひ。
賃料:4F/¥1,162,540(税込 ¥1,278,794)
8F/¥932,880(税込 ¥1,026,168)
共益費:賃料に含む
住所:港区芝浦3
広さ:4F/103.87㎡(31.42坪)
共益費:賃料に含む
住所:港区芝浦3
広さ:4F/103.87㎡(31.42坪)
8F/79.10㎡(23.92坪)
アクセス:JR山手線・JR京浜東北線「田町駅」徒歩5分、都営三田線「三田駅」徒歩8分
構造・規模:RC造 地上8階建 4,8階部分
築年:2026年1月予定
敷金:なし
礼金:なし
備考:普通借家契約(2年間)、保証会社利用必須、火災保険必須、原状回復義務なし、更新料(新賃料の1ヶ月分)、入居時期2026年2月予定
アクセス:JR山手線・JR京浜東北線「田町駅」徒歩5分、都営三田線「三田駅」徒歩8分
構造・規模:RC造 地上8階建 4,8階部分
築年:2026年1月予定
敷金:なし
礼金:なし
備考:普通借家契約(2年間)、保証会社利用必須、火災保険必須、原状回復義務なし、更新料(新賃料の1ヶ月分)、入居時期2026年2月予定
〈上記以外で契約時に掛かる主な費用〉
・仲介手数料(賃料1.1ヶ月分(税込))
・前家賃(1ヶ月分)
・日割り家賃(月途中での賃料発生の場合)
・初回保証委託料(賃料合計の最大100%)
・火災保険料





