物件をブックマーク
管理番号:S203124
北参道、原宿。予約制共用会議室あり。
コンパクトな間取りの築浅デザイナーズSOHO。
東京メトロ副都心線「北参道駅」徒歩7分、JR山手線「原宿駅」徒歩8分。
ホワイト基調の爽やかな空間にコンクリート打放し面が映える、デザイナーズSOHO物件のご紹介です。
ホワイト基調の爽やかな空間にコンクリート打放し面が映える、デザイナーズSOHO物件のご紹介です。

外観は打放しのコンクリート面に、ブラックをアクセントとしたモダンな雰囲気。
植栽などの緑が多く、ちょっとしたボタニカルライフを楽しめそうです。
周辺は非常に落ち着いた環境。一方で賑やかな原宿駅までも徒歩圏内と魅力的な立地です。
植栽などの緑が多く、ちょっとしたボタニカルライフを楽しめそうです。
周辺は非常に落ち着いた環境。一方で賑やかな原宿駅までも徒歩圏内と魅力的な立地です。

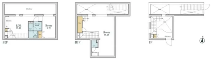
202号室は、コンパクトにオフィス機能が集約された2K間取り。
床は落ち着いたブラウン調のカーペットフロアに天井はブラックのライティングレールを合わせた内装。
広さは約16㎡あり、3人ほどの小規模オフィスとしては最適なサイズ感です。

住居の場合は寝室、事務所利用の場合は会議室として利用叶な8㎡ほどのサブルーム。
木目調のフローリング・大窓からの採光設計により、空間全体がより明るく感じる設計。
メインルームと分離した会議室や休憩室として、多用途に活用できそうです。
築浅ということもあり水回りは非常に清潔感ある印象。
トイレは2つ完備されているため、ストレスなくご利用いただけます。

*101号は募集終了
101号室は玄関からさらに地下へ2フロア下りるトリプレット構造。
床は落ち着いたカーペットで上質なオフィス仕様。
シンプルではありますが、巾木やライティングレールの黒が良いアクセントになっています。
床は落ち着いたカーペットで上質なオフィス仕様。
シンプルではありますが、巾木やライティングレールの黒が良いアクセントになっています。

部分的に残されたコンクリ―ト躯体がセンスを感じさせる、B1F区画。
地下区画ではありますが、窓付きと採光も確保されているため、メインの事務スペースとしても申し分ないスペックです。
地下区画ではありますが、窓付きと採光も確保されているため、メインの事務スペースとしても申し分ないスペックです。

地下2階部分は、木フローリングでより明るい印象の空間に。
同階に水回りが集約されているため、SOHO利用をの方には、住空間として利用可能。
同階に水回りが集約されているため、SOHO利用をの方には、住空間として利用可能。
収納部分も確保されており、荷物の多いお客様にも嬉しいポイントです。

リビングダイニングキッチンは広々としています。
レールライト部分には、お気に入りの照明を取り付けてお好みの空間を演出してみてはいかがでしょうか。
レールライト部分には、お気に入りの照明を取り付けてお好みの空間を演出してみてはいかがでしょうか。


こちらは1階部分に位置する共有の会議室と応接スペース。
スタートアップ企業に嬉しい造りで、職住近接のコンセプトが感じられます。
101号室 *募集終了
202号室
主要駅である新宿や渋谷に近く、代々木公園や新宿御苑へのアクセスもしやすいエリア。
都心に居ながら癒されたい。そういった方にはぜひご検討いただきたい物件となっております。
管理番号:S203124
賃料:
共益費:
住所:渋谷区千駄ヶ谷3
広さ:101号室 77.09㎡(23.31坪)
賃料:
共益費:
住所:渋谷区千駄ヶ谷3
広さ:101号室 77.09㎡(23.31坪)
202号室 32.64㎡(9.87坪)
アクセス:東京メトロ副都心線「北参道駅」徒歩7分、JR山手線「原宿駅」徒歩8分
構造・規模:RC造 地上5階地下2階建 1~B2階部分
築年:2021年
敷金:
礼金:
備考:保証会社必須、火災保険必須
アクセス:東京メトロ副都心線「北参道駅」徒歩7分、JR山手線「原宿駅」徒歩8分
構造・規模:RC造 地上5階地下2階建 1~B2階部分
築年:2021年
敷金:
礼金:
備考:保証会社必須、火災保険必須
〈上記以外で契約時に掛かる主な費用〉
・仲介手数料(賃料1.1ヶ月分(税込))
・前家賃(1ヶ月分)
・日割り家賃(月途中での賃料発生の場合)
・初回保証委託料(賃料合計の最大100%)
・火災保険料
・仲介手数料(賃料1.1ヶ月分(税込))
・前家賃(1ヶ月分)
・日割り家賃(月途中での賃料発生の場合)
・初回保証委託料(賃料合計の最大100%)
・火災保険料
The following two tabs change content below.
SOHOオフィスのファインディング、コンテンツ制作、リーシングを担当。
立教大学を卒業後、出版社でライフスタイル誌の企画、取材、撮影などに従事。同誌のウェブマガジン立ち上げ、コンテンツ制作を経てトランスリアルに参画。趣味は映画と音楽とトレーニング。
最新記事 by 辰口 (全て見る)
-
水天宮前駅1分、ミニマルデザインのリノベオフィス
[中央区/69万/108㎡] - 2026年1月15日 -
西麻布で空とつながるSOHO物件、ルーフテラス付
[港区/36万/65㎡] - 2026年1月15日 -
三田、公園隣接の50名超規模ハーフセットアップ
[港区/392万/351㎡] - 2026年1月15日 -
大手町、希少なハイグレードビルのセットアップ区画
[千代田区/270万〜/115㎡〜] - 2026年1月14日 -
八丁堀3分、原状回復なし、上質な什器付オフィス
[中央区/62万/60㎡] - 2026年1月9日
