物件をブックマーク
※写真は似たデザインの別部屋になります。詳細は下記図面と条件をご確認下さい。
青山通り沿いの外観・内装ともに特徴的なデザイナーズ物件をご紹介。
明治神宮外苑から新宿方面を一望できるハイサイドガラスウォールのメゾネットは100㎡オーバー、開放的でダイナミックな空間だ。

青山通り沿いの今回の物件は青山一丁目駅から徒歩4分、SHAKE SHACKのある外苑前銀杏並木の手前駅側に位置している。
鉄骨が組み合わされた特徴的なファサードをご存じの方も多いのではないだろうか。

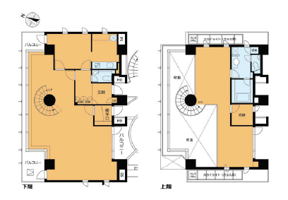
1Fから円形の吹抜けが物件の中心を上下に貫く。
各フロア2部屋ずつ、3F以上は全てメゾネットタイプという贅沢な構成になっている

室内のプランは一応1LDKタイプになるが、住居用のその呼称はあまり意味を為さないかもしれない。
LDKは45帖の広さ、吹抜け部分は天井高5mほど、その吹抜け部分はハイサイドガラスで神宮外苑方面を一望できてしまう。

ワークスペースとして考えると10人程度は問題のない広さだろうか。
天井が高く、バルコニー側と神宮外苑側がガラスウォールで抜けているので開放感は抜群だ。

45帖と聞くと感覚的にはもう少し多い人数でも対応できそうだが、やや中途半端な位置にある螺旋階段より先の空間はワークスペースには適さないように感じた。

ダイナミックな空間においてやや残念なのが味気のないグレーのタイルカーペット。
フローリングを貼るのはコスト的にもいささか大変だが、黒などシックな色味でグレード高めなものをチョイスしたくなってしまう。

上層階から見下ろす景色もなかなかのものだ。

上層階はやや不整形な19.1帖の空間、8帖+8帖の空間が互い違いに一部組み合わさっているイメージだ。
この部分もレイアウトの工夫が必要だろう。

トイレは各階層に1個づつ、キッチンは下層部・バスルームは上層部という構成の水回り。
立地や賃料的には事務所の利用が大半だろう、しかし設備的には居住することも可能となっている。

物件内にはアパレルのショールームなども入居しており、オフィス・SOHOだけでなくサービス店舗といった形態もご相談可能。
青山アドレスの駅近、そして高層階の抜け感とデザイン性の高い空間を味わえる貴重な物件であることは間違いない。
管理番号:S47418
賃料:
共益費:
住所:港区北青山1
広さ:146.21㎡
アクセス:銀座線・半蔵門線・大江戸線「青山一丁目駅」徒歩4分
構造・規模:SRC造12階建て 9・10階部分
築年:2001年
敷金・保証金:
礼金:
備考:火災保険必須、保証会社利用可能、駐車場・駐輪場なし、トイレ2ヶ所、サービス店舗ご相談可能
〈上記以外で契約時に掛かる主な費用〉
・仲介手数料(賃料1ヶ月分税別)
・前家賃(1ヶ月分)
・日割り家賃(月途中での賃料発生の場合)
・初回保証委託料(賃料合計の最大100%)
・火災保険料
The following two tabs change content below.
SOHOオフィスのファインディング、コンテンツ制作、リーシングを担当。
長野県生まれ。信州大学経済学部卒業後、リクルート、ベンチャーを経て当社へ。趣味は料理、テニス。フルマラソンはサブ4ランナー。不定期開催の社内パーティーでは料理長を務める一面も。
最新記事 by 木内 (全て見る)
-
目黒、ラフな質感で統一されたリノベ一棟ビル
[品川区/189万/284㎡] - 2026年1月15日 -
三軒茶屋、抜け感抜群のセットアップオフィス
[世田谷区/57万/78㎡] - 2026年1月15日 -
赤羽橋、ビンテージ感のある居抜きデザインオフィス
[港区/55万/95㎡] - 2026年1月7日 -
馬喰町、採光良好な店舗・オフィス対応のメゾネット
[中央区/571万/1005㎡] - 2025年12月26日 -
外苑前4分、生まれ変わった南青山のリノベオフィス
[港区/165万/171㎡] - 2025年12月25日
