物件をブックマーク
管理番号:S296341
「広尾駅」徒歩10分
ルーフテラス付き・65㎡超の1LDK。静かな都心で、住まいにもSOHOにも応える一室
都心にありながら、どこか空気がやわらぐ街・西麻布。
その落ち着いた住宅エリアに、ルーフテラス付きの1LDKという、少し特別な一室がありました。
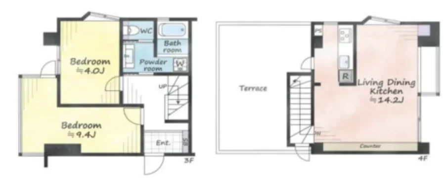
広さは65㎡超のメゾネットタイプで、フロアを分けることで、生活と仕事、あるいはパブリックとプライベートを自然に切り替えられる構成。
住まいとしての心地よさを備えながら、在宅ワークやSOHO利用も自然に想像できる余白のある空間です。
その落ち着いた住宅エリアに、ルーフテラス付きの1LDKという、少し特別な一室がありました。
広さは65㎡超のメゾネットタイプで、フロアを分けることで、生活と仕事、あるいはパブリックとプライベートを自然に切り替えられる構成。
住まいとしての心地よさを備えながら、在宅ワークやSOHO利用も自然に想像できる余白のある空間です。

広尾・六本木が徒歩圏内という立地ながら、周囲は落ち着いた住宅街。
白いタイル貼りの外観が印象的な、落ち着いた佇まいの低層レジデンスで、西麻布の住宅街らしい穏やかな街並みに自然と溶け込んでいます。
3階のベッドルームは、住まいの中でも少し落ち着いた空気感を持つ一室。外部からの視線が入りにくい位置にあり、寝室としてはもちろん、ワークスペースや書斎など集中したい部屋としても使いやすい空間です。
もう一室のベッドルームは、ベランダに面した明るさが特徴。窓から差し込む自然光が室内に心地よい陰影をつくり、時間帯によって表情が変わります。
収納スペースも充実しており、主寝室としてはもちろん、アトリエや趣味の部屋など、用途を限定しない柔軟な使い方ができそうです。
上階に広がるLDKは、この住まいの象徴とも言える場所。大きな開口部から差し込む光が空間全体をやわらかく包み込み、時間帯によって表情が変わるのも魅力のひとつ。
造作棚やカウンターは、ダイニングやリビングとしてはもちろん、デスクを置いて作業するシーンも自然に想像できます。
バルコニーと視線が抜けることで、室内にいながら外の気配を感じられる点も心地よく、長時間過ごしても気持ちがこもりにくい印象。
在宅ワークを中心にした働き方や、少人数でのオフィス利用、クリエイティブな作業拠点としても相性の良い空間です。

バルコニーと視線が抜けることで、室内にいながら外の気配を感じられる点も心地よく、長時間過ごしても気持ちがこもりにくい印象。在宅ワークを中心にした働き方や、少人数でのオフィス利用、クリエイティブな作業拠点としても相性の良い空間です。

この部屋の大きな魅力が、専用のルーフテラス。
外に出ると、西麻布の住宅街らしい落ち着いた景色と空の広がりが迎えてくれます。
外に出ると、西麻布の住宅街らしい落ち着いた景色と空の広がりが迎えてくれます。
テーブルやグリーンを置いて、半屋外のワークスペースとして使うのも良さそうです。

キッチンや水回りは、住居としての使いやすさをしっかり確保。
シンプルで清潔感のある仕様のため、生活感が出すぎず、SOHO利用時にも違和感がありません。
来客があった際も安心できる、きちんと整った印象です。
シンプルで清潔感のある仕様のため、生活感が出すぎず、SOHO利用時にも違和感がありません。
来客があった際も安心できる、きちんと整った印象です。

西麻布という都心立地にありながら、慌ただしさとは距離を置いた空気が流れるメゾネットSOHO。
フロアごとに役割を分けられる間取りと、光をたっぷり取り込むLDKが、暮らしと仕事のバランスを自然に整えてくれます。
「働く」と「暮らす」を無理なく共存させたい方に、ぜひ現地で体感していただきたい物件です。
フロアごとに役割を分けられる間取りと、光をたっぷり取り込むLDKが、暮らしと仕事のバランスを自然に整えてくれます。
「働く」と「暮らす」を無理なく共存させたい方に、ぜひ現地で体感していただきたい物件です。
管理番号:S296341
賃料:¥340,000(非課税)
共益費:¥20,000(非課税)
住所:港区西麻布4
広さ:65.3㎡(19.75坪)
アクセス:東京メトロ日比谷線「広尾駅」徒歩10分、東京メトロ日比谷線「六本木駅」徒歩12分
構造・規模:RC造 地上4階建 3階部分
築年:1978年
敷金:1ヶ月(SOHO利用の場合積増しの可能性有)
礼金:1ヶ月
備考:定期借家契約(5年間)、再契約料(新賃料の1ヶ月分)、保証会社利用必須、火災保険必須、登記不可
賃料:¥340,000(非課税)
共益費:¥20,000(非課税)
住所:港区西麻布4
広さ:65.3㎡(19.75坪)
アクセス:東京メトロ日比谷線「広尾駅」徒歩10分、東京メトロ日比谷線「六本木駅」徒歩12分
構造・規模:RC造 地上4階建 3階部分
築年:1978年
敷金:1ヶ月(SOHO利用の場合積増しの可能性有)
礼金:1ヶ月
備考:定期借家契約(5年間)、再契約料(新賃料の1ヶ月分)、保証会社利用必須、火災保険必須、登記不可
〈上記以外で契約時に掛かる主な費用〉
・仲介手数料(賃料1.1ヶ月分(税込))
・前家賃(1ヶ月分)
・日割り家賃(月途中での賃料発生の場合)
・初回保証委託料(賃料合計の最大100%)
・火災保険料
The following two tabs change content below.
SOHOオフィスのファインディング、コンテンツ制作、リーシングを担当。
立教大学を卒業後、出版社でライフスタイル誌の企画、取材、撮影などに従事。同誌のウェブマガジン立ち上げ、コンテンツ制作を経てトランスリアルに参画。趣味は映画と音楽とトレーニング。
最新記事 by 辰口 (全て見る)
-
新宿、S級ビルのセットアップ区画、天高3m超え
[新宿区/ASK/146㎡〜] - 2026年2月9日 -
恵比寿6分、会議室付セットアップデザイナーズ
[渋谷区/126万/99㎡] - 2026年2月9日 -
御成門4分、コンパクトながら会議室2つ付オフィス
[港区/78万/97㎡] - 2026年2月9日 -
浜松町8分、34席想定の会議室付リノベオフィス
[港区/129万/133㎡] - 2026年2月6日 -
大門3分、12名用ではリーズナブルな会議室付事務所
[港区/61万/61㎡] - 2026年2月6日
