物件をブックマーク
管理番号:S290404
渋谷、宮下パーク至近の明治通り沿い
インダストリアルな内装に光差し込む、好条件居抜きワンフロア
渋谷駅5分、明治神宮前駅7分。
様々なブランドのショップが立ち並び、観光客で賑わう明治道路沿い。
立地もさることながら、条件や内装も併せて魅力的な居抜きオフィスが募集中です。。
立地もさることながら、条件や内装も併せて魅力的な居抜きオフィスが募集中です。。

懐かしさのある煉瓦造りの趣に、1,2階店舗の装いが合わさる外観。
言わずと知れた明治通り沿い、見覚えがある方も多いのではないでしょうか。



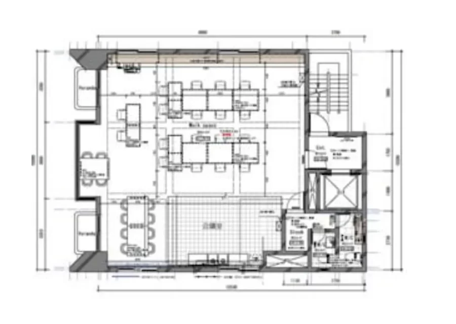
室内は前テナントによって天井が抜かれ、コンクリート床が映えるインダストリアルな内装に。
会議室と壁面の棚が居抜きで利用が可能。
会議室と壁面の棚が居抜きで利用が可能。
経年の味わいに手を加えたデザイン性を併せ持つ、リノベーションらしい装いになっています。

大通りの方向に大きく縁取られた窓からは豊かな陽射しが差し込みます。

会議室はレンガ調の壁紙を別のものに変えても良さそうです。

男女別のお手洗いも素材感ある装いです。

オフィスはもちろん、店舗の相談も可能。
すでに申し込みが入っており、猶予の短い募集となります。
どうぞご検討はお早めに。
管理番号:S290404
賃料:
共益費:
住所:渋谷区神宮前6
広さ:116㎡(35坪)
アクセス:各線「渋谷駅」徒歩5分、副都心線「明治神宮前駅」徒歩7分
構造・規模:鉄骨鉄筋コンクリート造 地上8階建5階部分
築年:1980年
敷金:
礼金:
備考:借家契約(年間)、再契約料(1.5ヶ月分)、保証会社利用必須、火災保険必須、途中解約可(退去時6ヶ月前予告)、
賃料:
共益費:
住所:渋谷区神宮前6
広さ:116㎡(35坪)
アクセス:各線「渋谷駅」徒歩5分、副都心線「明治神宮前駅」徒歩7分
構造・規模:鉄骨鉄筋コンクリート造 地上8階建5階部分
築年:1980年
敷金:
礼金:
備考:借家契約(年間)、再契約料(1.5ヶ月分)、保証会社利用必須、火災保険必須、途中解約可(退去時6ヶ月前予告)、
〈上記以外で契約時に掛かる主な費用〉
・仲介手数料(賃料1.1ヶ月分(税込))
・前家賃(1ヶ月分)
・日割り家賃(月途中での賃料発生の場合)
・初回保証委託料(賃料合計の最大100%)
・火災保険料
The following two tabs change content below.
SOHOオフィスのファインディング、コンテンツ制作、リーシングを担当。
イタリア、フランスで修行した後、西麻布「レフェルヴェソンス」をはじめ、様々なジャンルのレストランでキッチン、サービスに従事。
物件情報には周辺で評判の良い飲食店情報が付随してくる。
最新記事 by 小野寺 (全て見る)
-
原宿、壮観な天高を構える吹抜けメゾネット
[渋谷区/166万/177㎡]
- 2026年1月15日 -
東新宿、空間にメリハリのあるメゾネットSOHO
[新宿区/30万/60㎡] - 2026年1月15日 -
麻布十番、緑と共生する天高3mオフィス
[港区/97万/115㎡]
- 2026年1月8日 -
神泉、ワインを愛する特別なデザイナーズ
[渋谷区/29万/45㎡]
- 2026年1月7日 -
恵比寿、異なる質感で魅せる天高セットアップ
[渋谷区/209万/225㎡]
- 2026年1月6日
