物件をブックマーク
管理番号:S147620
新富町。地下の大空間に見せられる一棟ビル
東京メトロ有楽町線「新富町駅」より徒歩2分、都営地下鉄浅草線「宝町駅」より徒歩5分、東京メトロ日比谷線・JR京葉線「八丁堀駅」より徒歩5分と多路線にアクセス可能な好立地。
多彩な表情を持つリノベビルをご紹介します。
多路線が行き来し、首都高速も走る新富エリア。
飲食店も多く、使い勝手の良い立地です。
外装は白タイルでシンプルな印象。
ガラス張りでオープンなイメージの1階部分。
開放的な空間を活かし、展示スペースやリフレッシュルームとして利用するのもおすすめです。
ステンレスのIHキッチンが付属。一棟物件ならではの余裕を持った使い方ができそうです。
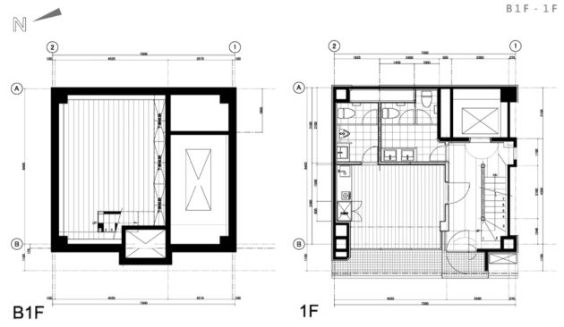
階段を降りると、2階分を丸々抜いた地下室が。天高はなんと4m。
エレベーターは1階~5階にしか通っていないため、荷物の行き来が激しい場合は大変かもしれません。
ライトウッド調の面と白い天井や階段とのコントラストがハイセンスな一室。
奥には倉庫があります。こちらもかなり高さがありますので、背の高いものも楽に収納できます。
ジムやスタジオ、ギャラリーとしての活用も。
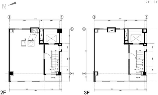
こちらは鮮やかなブルーのドアが印象的な2階のスペースです。一転してシックなデザインの約16坪。
西向きの窓は開口部が広く、奥行きを感じさせてくれます。
2階とほぼ同じ間取りの3階部分。
どちらもミニキッチンがついており、ちょっとしたお茶出しには困りません。
デスクを並べるとすると、10名弱でのご利用がおすすめ。
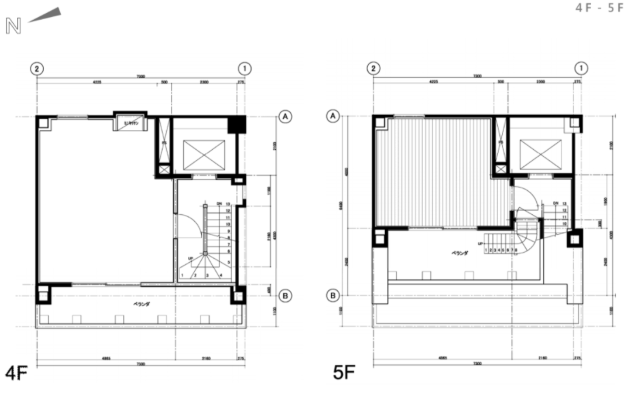
約13坪の4階部分。床は汚れの付きづらいビニール仕様です。
こちらにもミニキッチンが付属しています。
4、5階には広めのベランダが。
最上階へ続くはしごのような外階段には遊び心をくすぐられます。
約9坪の5階部分。
チーク調の床が柔らかな空間をデザインしています。
全て新設の水回り。
キッチンは左上のものが1階、右下のものが2~4階に設置されています。
お手洗いは1階のみですが、男女別でご用意。


一棟ならではの自由な使い方が楽しめる当物件。
外装と内装のギャップも魅力の一つです。
新しいビジネス拠点にいかがでしょうか。
管理番号:S147620
賃料:
共益費:
住所:中央区新富1
広さ:262.64㎡(79.45坪)*階段・廊下部分も含む
アクセス:東京メトロ有楽町線「新富町駅」徒歩2分、都営地下鉄浅草線「宝町駅」徒歩5分、東京メトロ日比谷線・JR京葉線「八丁堀駅」徒歩5分
構造・規模:鉄骨鉄筋コンクリート造 地上5階地下2階建
築年:1984年
敷金:
礼金:
更新料:新賃料の1ヶ月分(税込)
備考:賃貸借契約、保証会社加入必須、機械警備費用相談
〈上記以外で契約時に掛かる主な費用〉
・仲介手数料(賃料1ヶ月分税別)
・前家賃(1ヶ月分)
・日割り家賃(月途中での賃料発生の場合)
・初回保証委託料(賃料合計の最大100%)
・火災保険料
最新記事 by 和久井 (全て見る)
-
御成門、ハイグレード100坪のセットアップオフィス
[港区/ASK/330㎡] - 2026年1月15日 -
参宮橋、感性が動き出すデザイナーズオフィス
[渋谷区/68万~/190㎡] - 2026年1月15日 -
新宿5分、レトロモダンが魅力のフルセットアップ
[渋谷区/20万〜/16㎡] - 2026年1月14日 -
四谷三丁目、会議室2部屋付きでリーナブルな移転を
[新宿区/ASK/151㎡] - 2026年1月7日 -
代々木3分、ダイレクトイン可能なリノベオフィス
[渋谷区/50万/65㎡] - 2026年1月7日
