物件をブックマーク
*記事、室内写真は別フロアのものです。間取り図をご参考ください。
渋谷と表参道の間に位置する渋谷2丁目エリア。250㎡越えの広々SOHO物件が募集開始となりました。青山通り路地裏にたたずんでおり、大通りの賑やかさとは一転、洗練された大人な雰囲気が漂います。

大通りから少し入った非常に静かなエリア。
外観はオーソドックスなオフィスビルの印象ですがエントランス部分をリニューアル。階段部分も綺麗になり、清潔感のある印象です。

エレベーターホールは2017年10月下旬にリニューアル工事が完了したばかり。
ホテルライクなデザインで高級感があふれ、誠実な印象を与えます。

カラフルな絵柄の壁が印象的な共有スペース。

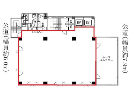
柱がなく、長方形なのでレイアウトしやすい室内。天井高約2.4Mあります。
床はOAフロアとなっております。

公道側の空間に用途に合わせた複数の会議室、反対側を執務スペースとするほか、ロビーから室内に入ったすぐのスペースに来客時の待合室や受付を設けたり、アイデア次第でクリエイティブな空間を作り出せる可能性を秘めているではないでしょうか。

トイレが男女別である点が非常に魅力的。モノクロで統一された水回りはリニューアルしたてとあって、清潔感があります。

本物件周辺は洗練された雰囲気が漂う環境ですが、青山通りに出ればインテリアショップや飲食店が数多く並び賑わいをみせます。申し分ない広さと立地を活かし、思い切り自分仕様な内装で仕事に注力されたい方にお勧めしたい物件です。
管理番号:S76790
賃料:
賃料:
共益費:
住所:渋谷区渋谷2
広さ:205.59㎡(62.19坪)
アクセス:山手線「渋谷駅」徒歩9分、副都心線「渋谷駅」徒歩7分、銀座線「表参道駅」徒歩7分
構造規模:鉄骨鉄筋コンクリート造地下1階地上7階建 7階部分
築年:1988年(2018年3階室内、2017年3月ビルエントランス・EVホール等リニューアル工事完了)
敷金・保証金:
住所:渋谷区渋谷2
広さ:205.59㎡(62.19坪)
アクセス:山手線「渋谷駅」徒歩9分、副都心線「渋谷駅」徒歩7分、銀座線「表参道駅」徒歩7分
構造規模:鉄骨鉄筋コンクリート造地下1階地上7階建 7階部分
築年:1988年(2018年3階室内、2017年3月ビルエントランス・EVホール等リニューアル工事完了)
敷金・保証金:
礼金:
備考:2年契約(更新料:なし)、ごみ処理費・水道光熱費別途負担、機械式駐車場有、OAフロア
備考:2年契約(更新料:なし)、ごみ処理費・水道光熱費別途負担、機械式駐車場有、OAフロア
The following two tabs change content below.
SOHO東京をご覧頂きましてありがとうございます。
お問い合わせに関しては、営業担当よりご連絡させて頂きます。
最新記事 by SOHO東京スタッフ (全て見る)
-
恵比寿、ガーデンプレイス内の大型リノベオフィス
[渋谷区/278万/163㎡] - 2025年12月26日 -
大きな空と運河を望む。湾岸エリアのシェアオフィス
[中央区/¥ASK/94㎡~]
- 2025年10月21日 - 【募集終了】田町、運河沿いのヴィンテージリノベオフィス - 2025年8月28日
- 【募集終了】代々木八幡、ナチュラルなメゾネットSOHO - 2024年5月30日
- 【募集終了】西麻布。ホワイトで纏められた上質空間。 - 2024年4月17日
