物件をブックマーク
管理番号:S55946
*写真とは別のお部屋のご紹介となります。家具は付属しません。
*写真は前回募集時のもの。異なる場合は現況優先になります。
北青山3丁目。天高採光性抜群、デザイナーズSOHO。
表参道徒歩3分。好立地に加え、天高、採光の良さが際立つ築浅デザイナーズのご紹介です。隠れ家のようなロフトスペースもついており、内装も面白い物件です。
近くにはBrooks Brothers本店、青山通りからすぐ脇道を入ったところに佇む本物件。
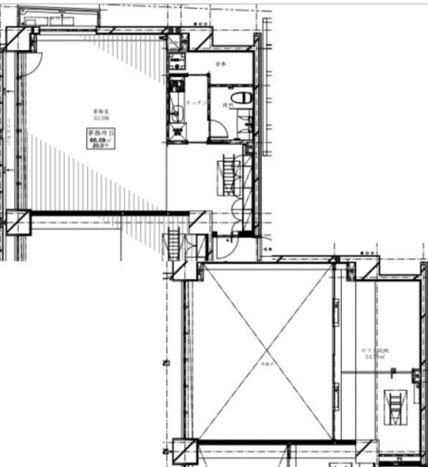
玄関部分の空間。ロフトへの階段がありますが、天井部分へ収納できるのでスペースを減らすことはありません。
メインフロアは7、8名ほどでの利用にも良さそうです。
天井が高くてとても気持ちの良い空間。
こんな場所でお客様と打合せすれば面白いアイデアが浮かんできそうな場所に感じました。
白を基調とした室内。天高に合わせた大きな開口部、本当に明るい室内です。
ロフト部分。ストレージ、資料室として自由にお使い頂くことはもちろん、天井もそこまで低くはないので執務スペースとして使っても面白いかもしれません。
窓からは事務室を見下ろすことができ、開放すれば換気ができるのも嬉しいポイント。
水回りは生活感がないので、来客時にもストレスなく案内できる綺麗さ。

表参道徒歩3分というアクセスの良さと視認性、そして室内の開放感を是非実感して頂ければと思います。
管理番号:S55946
賃料:
管理費:
住所:港区北青山3
広さ:66.12㎡(20坪)
アクセス:千代田線・銀座線「表参道」駅徒歩3分
構造規模:RC造 地上5階地下1階建 3階部分
築年:2014年
敷金・保証金:
礼金:
備考:
賃料:
管理費:
住所:港区北青山3
広さ:66.12㎡(20坪)
アクセス:千代田線・銀座線「表参道」駅徒歩3分
構造規模:RC造 地上5階地下1階建 3階部分
築年:2014年
敷金・保証金:
礼金:
備考:
The following two tabs change content below.
SOHO東京をご覧頂きましてありがとうございます。
お問い合わせに関しては、営業担当よりご連絡させて頂きます。
最新記事 by SOHO東京スタッフ (全て見る)
-
恵比寿、ガーデンプレイス内の大型リノベオフィス
[渋谷区/278万/163㎡] - 2026年3月26日 -
代々木、視認性ある1階ガラス張りワークスペース
[渋谷区/83万/107㎡]
- 2026年3月12日 -
大きな空と運河を望む。湾岸エリアのシェアオフィス
[中央区/¥ASK/94㎡~]
- 2025年10月21日 - 【募集終了】田町、運河沿いのヴィンテージリノベオフィス - 2025年8月28日
- 【募集終了】代々木八幡、ナチュラルなメゾネットSOHO - 2024年5月30日
