物件をブックマーク
管理番号:S290320
北参道5分、前面2台分の駐車場付き
地下から屋上までをフルに活用する、各階の素材感異なる一棟ビルへ
リノベーション物件が多く、デザイン系やアパレルブランドを中心に人気の北参道。
それぞれの階が異なる表情を持つ1棟ビルが募集となりました。

2階のガラスファサードが優れた視認性を誇る外観。
前テナントはずらりと服を並べ、ショールームのような活用をしていました。
前面には車2台分を想定した駐車場も。
専用の階段を降りて、まずは地下1階へ。

地下は前回フォトスタジオでの利用だったとのこと。
現状はインフラを残したスケルトン内装、やはり店舗的な使い方が適しているでしょうか。
現状はインフラを残したスケルトン内装、やはり店舗的な使い方が適しているでしょうか。
続いて1階へ。

2階のガラスファサードが真っ先に目につくものの、1階もなかなかの視認性になっています。
ヘリンボーン床に丸電球がスタジオライクな印象です。

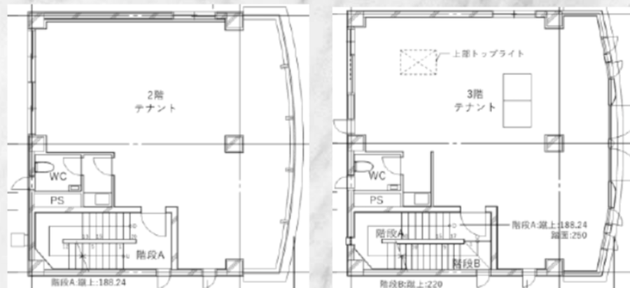
この物件の顔であり、メインルームになるであろう2階へ。
柔らかい湾曲を描くガラス面とフローリング床のクセがない内装。

打って変わって3階はシンプルなオフィス仕様。
多少ではありますが、貸主側で天井を抜いて開放感が増す予定とのこと。
屋上はドコモタワーを筆頭に、東京のビル群と大空の味わいを楽しめる眺めとなっています。

可能性と多様性を存分に持った1棟ビル。
全てを使いこなし、創造性ある空間へ。
我こそはという企業様のお問い合わせ、お待ちしております。
管理番号:S290320
賃料:¥
共益費:
住所:渋谷区千駄ヶ谷3
広さ:335.11㎡(101.37坪)
アクセス:副都心線「北参道駅」徒歩5分、総武線「千駄ヶ谷駅」徒歩7分
構造・規模:鉄筋コンクリート造 地下1階地上3階建
築年:1986年
敷金:
礼金:
備考:定期借家契約(5年間)、普通借家契約に相談可能、保証会社利用必須、火災保険必須、駐車場(2台)、再契約料(新賃料1ヶ月)
賃料:¥
共益費:
住所:渋谷区千駄ヶ谷3
広さ:335.11㎡(101.37坪)
アクセス:副都心線「北参道駅」徒歩5分、総武線「千駄ヶ谷駅」徒歩7分
構造・規模:鉄筋コンクリート造 地下1階地上3階建
築年:1986年
敷金:
礼金:
備考:定期借家契約(5年間)、普通借家契約に相談可能、保証会社利用必須、火災保険必須、駐車場(2台)、再契約料(新賃料1ヶ月)
〈上記以外で契約時に掛かる主な費用〉
・仲介手数料(賃料1.1ヶ月分(税込))
・前家賃(1ヶ月分)
・日割り家賃(月途中での賃料発生の場合)
・初回保証委託料(賃料合計の最大100%)
・火災保険料
The following two tabs change content below.
SOHOオフィスのファインディング、コンテンツ制作、リーシングを担当。
イタリア、フランスで修行した後、西麻布「レフェルヴェソンス」をはじめ、様々なジャンルのレストランでキッチン、サービスに従事。
物件情報には周辺で評判の良い飲食店情報が付随してくる。
最新記事 by 小野寺 (全て見る)
-
新川、高層から都心を望むデザイナーズセットアップ
[中央区/85万〜/126㎡〜]
- 2026年3月19日 -
北参道1分、便利でシンプル、開放的オフィス
[渋谷区/97万/111㎡] - 2026年3月19日 -
恵比寿、デザインと機能を両立するコンパクトリノベ
[渋谷区/42万/52㎡] - 2026年3月19日 -
新富町5分、会議室付ハーフスケルトンオフィス
[中央区/88万/131㎡]
- 2026年3月19日 -
六本木、抜け感のある振り分け可能なSOHO
[港区/30万/35㎡] - 2026年3月18日
