渋谷区

【募集終了】北参道、ナチュラルとシンプルのリノベデザイナーズ

Loading物件をブックマーク

副都心線「北参道駅」から徒歩4分、他にも山手線の乗り入れる「原宿駅」、中央・総武線が通っている「代々木駅」からも徒歩圏内の好立地。
2021年5月にリノベされたばかりのデザイナーズオフィスのご紹介です。
急騰スペースを同系色の木目の壁でわけ、向かいにはミーティングスペースを、一番広い部分を執務スペースという間取りです。
空間を最大限に使用するために、それぞれのスペースの間に扉や壁をゆるく設置することで、完全にではないですが区切って別の空間として使用することが可能です。
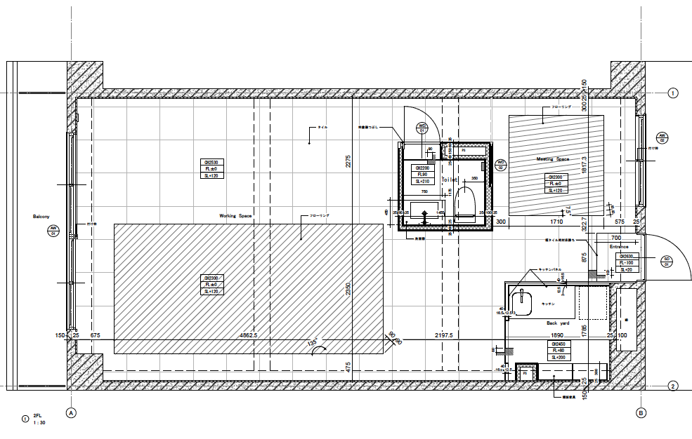
お部屋を平面で見てみるとこのようになっています。
右上の灰色の部分はお手洗い、右下のスペースがキッチン。
グレーを基調としたシンプルな世界観の中にベージュの木目調のフローリングが映えています。
従来のデザイナーズオフィスのようなクールさもありながら、最新のトレンドであるナチュラルさもうまく融合した本物件。
こんなお部屋で新たなスタートを切ってみてはいかがでしょうか?

管理番号:S182766
賃料:
管理費:
住所:渋谷区千駄ヶ谷3
広さ:54.59㎡
アクセス:副都心線「北参道駅」徒歩4分
     JR山手線「原宿駅」徒歩10分
     JR中央・総武線、山手線「代々木駅」徒歩10分
構造:鉄筋コンクリート造地下1階地上3階建
築年:1990年(2021年5月フルリノベーション)
敷金:
礼金:
備考:保証会社への加入要(初回保証料:賃料管理費の80%、以降毎年10%)、更新料新賃料1ヶ月分、契約期間2年、駐車場1台分有(金額別途応相談、目安¥45,000)

〈上記以外で契約時に掛かる主な費用〉
・仲介手数料(賃料1ヶ月分税別)
・前家賃(1ヶ月分)
・日割り家賃(月途中での賃料発生の場合)
・初回保証委託料(賃料合計の最大100%)
・火災保険料
The following two tabs change content below.
SOHOオフィスのファインディング、コンテンツ制作、リーシングを担当。 立教大学を卒業後、出版社でライフスタイル誌の企画、取材、撮影などに従事。同誌のウェブマガジン立ち上げ、コンテンツ制作を経てトランスリアルに参画。趣味は映画と音楽とトレーニング。
Return Top