物件をブックマーク
神保町の駅近リノベーションオフィス、入居しやすい家具付きのプランと好立地で働く。
神保町の駅近に完成したばかりのリノベーションオフィスをご紹介しよう。
周囲はあまりデザイナーズ物件が少ないエリアではあるが、半蔵門線「神保町駅」徒歩1分という立地はなかなか魅力的に映る。
渋谷・表参道エリアにも東京の東側にもアクセスがしやすい、顧客目線でも従業員目線でも納得感のあるオフィスなのではないだろうか。
神保町からは徒歩1分、靖国通り沿いのガラスファサードのビルが今回の物件だ。
ガラスウォールをぐるりと囲むブリックタイルが特徴的。
スタイリッシュな部分とヴィンテージ感がある部分がハイブリットされている様な印象を受ける。
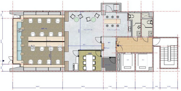
室内はミーティングスペース・ワークスペース・フリースペース・キッチンスペース・リラックススペースで構成されるプラン。
デザインにメリハリがついているのでワンフロアの中に様々な表情が感じられる。
ミーティングスペースは6名利用を想定。
明るい白塗装壁とガラスウォールを基調にアートな壁でリラックスした雰囲気をプラスしている。
フリースペースとキッチンスペースはカフェ的なイメージで一息つけるスペース。
床材は石調のタイルを使用しスタイリッシュな印象に仕上がっている。
ワークススペースはオフィスとして使いやすさを考えて床材はカーペット仕様。
既に什器やオフィスに必要な家具はセットされており、現状16名の固定席が確保できる。
壁面には収納がつけられている。
既存の天井は撤去されており、梁上で2.8mの高さが確保されており開放感もある。
靖国通りに面した窓面はベンチシートになっており、フリーアドレス的な働き方もできる。

神保町徒歩1分という駅近のインスピレーションのあるリノベーションオフィス。
内装付き+オフィス家具付きなので移転時のコストとリソースが圧倒的に抑えることが可能となる。
気になる方は早めにご覧頂きたい物件だ。
最新記事 by 木内 (全て見る)
-
九段会館、歴史を紡ぐClassic Officeで働く
[千代田区/ASK/139㎡] - 2026年3月3日 -
渋谷、インナーテラスが映えるセットアップオフィス
[渋谷区/188万/141㎡] - 2026年3月2日 -
北参道、明治通り沿いの築浅デザイナーズオフィス
[渋谷区/158万~/161㎡~] - 2026年3月1日 -
表参道沿い、ケヤキ並木ビューのリノベオフィス
[渋谷区/137万~/140㎡~] - 2026年3月1日 -
五反田、建築家設計のデザイナーズ戸建SOHO
[品川区/250万/236㎡] - 2026年2月26日
