物件をブックマーク
管理番号:S291772
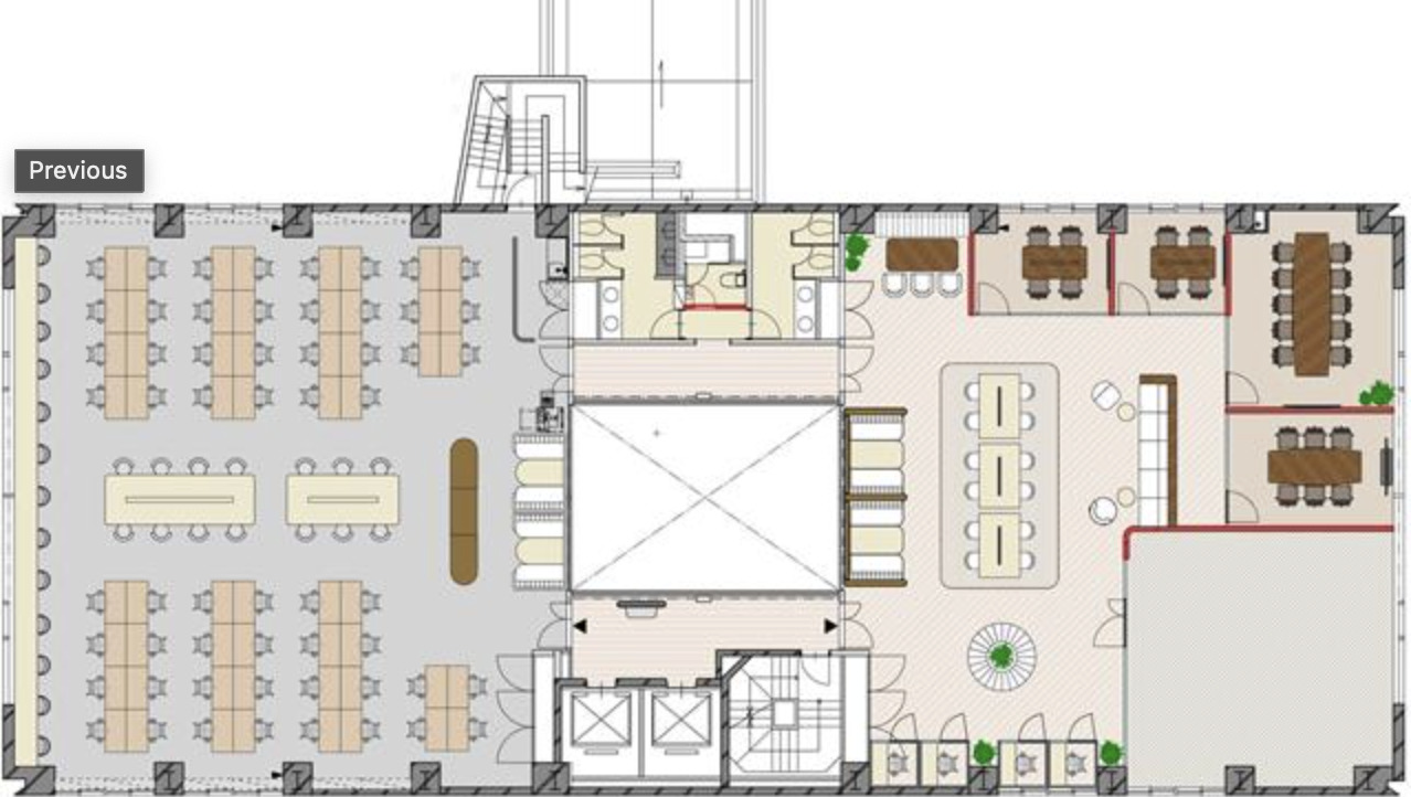
市ヶ谷駅徒歩5分、5部屋の会議室と天高5m超えのラウンジスペースを備える、165坪の大型フルセットアップが誕生。
市ヶ谷徒歩5分、周辺には大使館が多くその影響もあってグローバルな文化にふれることができ、有名な大学が立ち並んだ文教地区といった一面も持つ。ビジネスの活気や深緑を感じることができるエリア。
今回は、2025年10月に新たにリノベーションされたフルセットアップオフィスのご紹介です。

外観は、長く市ヶ谷の街並みを見守ってきたであろう重厚感もありながら、一部白基調にリノベされたエントランス部分に親しみやすさも感じるファサード。

まずはエレベーターホールを降り、左側に位置する執務室のご紹介。
約70名が着席可能な什器付きの執務室。天井一部スケルトンでホワイトに塗装された内装が爽やかで開放感を感じる内装となっている。
この広さですでに什器付きのフルセットアップもなかなか無いのではないかと個人的に思っています。
この広さですでに什器付きのフルセットアップもなかなか無いのではないかと個人的に思っています。


そしてエレベーター降り、右手のエリアに位置する、専用ラウンジスペース。
特筆すべきは天井高5m超えの吹き抜けから降り注ぐ自然光が気持ちよい。特徴的な建物そのものの構造を活かし、照明部分の意匠は圧巻の一言。会議室は全てラウンジスペースにまとめらているため、来客があった際の動線も非常に考えやすい。この専有ラウンジは、社外からもきっと好評を得られるだろう。

専有ラウンジには、5部屋の会議室。4部屋の集中ブースを有する。
一部什器が設置されていないスペースもあるため、そちらはセミナースペースとしての利用など大人数でのミーティングも対応可能。

天井高を活かした充実の専有ラウンジスペースと什器つきのフルセットアップオフィスプラン。
区画の中央は吹き抜け部分となっており非常に抜け感の良く面白い構造となっている。
大幅な移転費用の削減に繋がる、中々お目にかかれない169坪の大型セットアップ。
ぜひこの空間を体験してみてほしい。
大幅な移転費用の削減に繋がる、中々お目にかかれない169坪の大型セットアップ。
ぜひこの空間を体験してみてほしい。
管理番号:S291772
賃料:¥4,737,040 (税込 ¥5,210,744)
共益費:賃料に含む
住所:新宿区市ヶ谷本村町2
広さ:559.28㎡(169.18坪)
アクセス:有楽町線「市ヶ谷駅」徒歩5分、中央線「四谷駅」徒歩7分
構造・規模:鉄骨鉄筋コンクリート造 地上9階建 5階部分
築年:1992年
敷金:3ヶ月
礼金:なし
備考:普通借家契約(2年間)、保証会社利用相談、火災保険必須、7階共用ルーフバルコニーアウトドアスペース利用可能、什器付きフルセットアップ
賃料:¥4,737,040 (税込 ¥5,210,744)
共益費:賃料に含む
住所:新宿区市ヶ谷本村町2
広さ:559.28㎡(169.18坪)
アクセス:有楽町線「市ヶ谷駅」徒歩5分、中央線「四谷駅」徒歩7分
構造・規模:鉄骨鉄筋コンクリート造 地上9階建 5階部分
築年:1992年
敷金:3ヶ月
礼金:なし
備考:普通借家契約(2年間)、保証会社利用相談、火災保険必須、7階共用ルーフバルコニーアウトドアスペース利用可能、什器付きフルセットアップ
〈上記以外で契約時に掛かる主な費用〉
・仲介手数料(賃料1.1ヶ月分(税込))
・前家賃(1ヶ月分)
・日割り家賃(月途中での賃料発生の場合)
・初回保証委託料(賃料合計の最大100%)
・火災保険料
The following two tabs change content below.
SOHOオフィスのファインディング、コンテンツ制作、リーシングを担当。
東京生まれ。俳優として舞台、映像作品、CMなど250作品以上に出演。舞台脚本家、演出家として15作品の制作を経て、トランスリアルに参画。
最新記事 by 和久井 (全て見る)
-
稲荷町、無垢の温もり感じるリノベオフィス
[台東区/25万/42㎡] - 2025年12月13日 -
市ヶ谷4分、靖国神社の四季感じる居抜きオフィス
[千代田区/27万/40㎡] - 2025年12月12日 -
大門4分、敷金礼金なし、上質な什器付きオフィス
[港区/70万~/66㎡~] - 2025年12月11日 -
人形町、清洲橋通りの角地セットアップオフィス
[中央区/155万/201㎡] - 2025年12月10日 -
品川、無垢の風合い感じる居抜きオフィス
[品川区/136万/239㎡]
- 2025年12月8日
