物件をブックマーク
管理番号:S269627
*写真は似た間取りの別部屋のもの。異なる場合は現況優先になります。
*2026年2月上旬入居可能予定。
*2026年2月上旬入居可能予定。
東日本橋、働きやすさを追求した機能性抜群のオフィスで会議も仕事も効率的に。
古くからの問屋街から、現在はIT企業やスタートアップが続々と集う「モダンなオフィスエリア」へと進化を遂げた中央区・東日本橋。その一角、都内主要ターミナルや空港へのアクセスに秀でたエリアでもあります。
歴史ある商いの活気と、新しいビジネスの感性が交差するこの地に、東日本橋駅から徒歩4分という、高い機動力を誇るフルセットアップ物件が登場しました。
歴史ある商いの活気と、新しいビジネスの感性が交差するこの地に、東日本橋駅から徒歩4分という、高い機動力を誇るフルセットアップ物件が登場しました。

外観は明るくシンプルな雰囲気。眺めの良い8階はオフィスとして使用するのに最適です。

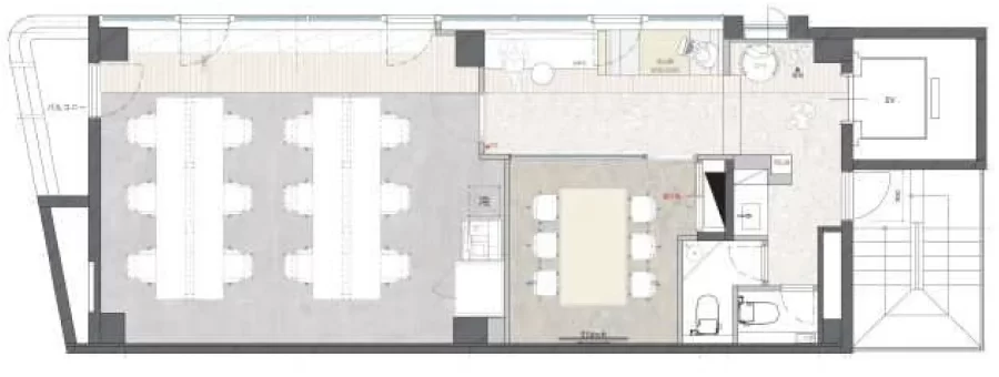
執務室内、会議室に什器がついているフルセットアップですので入居後すぐに稼働ができる点もメリットの一つ。
さらに、テレカンブースが一室備え付けられていて、プライベートなテレワークにも対応可能。
効率的な運用を目指す企業にとって、初期投資として有益な選択肢に。

天井躯体表しに鉄板が張られ、洗練された印象。大通りに面しており、自然光もたっぷりと入るかと。
執務エリアの傍らには、ちょっとした打ち合わせに最適なソファスペースを完備しています。落ち着いた空間に映える橙色のソファがアクセントとなり、カジュアルなミーティングはもちろん、ランチタイムのリフレッシュにもうってつけの明るい印象を与えます 。Wi-Fiも完備されているため、PCを持ち出しての気分転換や、来客時の中礼的な対応など、シーンを選ばず多目的に活用いただけます。
執務エリアの傍らには、ちょっとした打ち合わせに最適なソファスペースを完備しています。落ち着いた空間に映える橙色のソファがアクセントとなり、カジュアルなミーティングはもちろん、ランチタイムのリフレッシュにもうってつけの明るい印象を与えます 。Wi-Fiも完備されているため、PCを持ち出しての気分転換や、来客時の中礼的な対応など、シーンを選ばず多目的に活用いただけます。
清潔感のある水回り、男女別トイレ完備です。
浅草線を使えば新橋・日本橋・羽田空港方面へ、新宿線で新宿へ、総武快速線で東京駅まで1駅と、都内主要ビジネスエリアへのアクセスが非常に良好な東日本橋。
フルセットアップにテレカンブース、入居後即稼働ができる本物件でスタートアップや新規プロジェクトの立ち上げなどの際に検討していただいてはいかがでしょうか。
管理番号:S269627
賃料:¥600,000(税込 ¥660,000)
共益費:賃料に含む
住所:中央区日本橋久松町9
広さ:77.62㎡(23.48坪)
アクセス:都営浅草線「東日本橋駅」徒歩4分、都営新宿線「馬喰横山駅」徒歩4分、東京メトロ日比谷線「人形町駅」徒歩5分
構造・規模:S造 地上9階建 8階部分
築年:1991年
敷金:4ヶ月
礼金:なし
賃料:¥600,000(税込 ¥660,000)
共益費:賃料に含む
住所:中央区日本橋久松町9
広さ:77.62㎡(23.48坪)
アクセス:都営浅草線「東日本橋駅」徒歩4分、都営新宿線「馬喰横山駅」徒歩4分、東京メトロ日比谷線「人形町駅」徒歩5分
構造・規模:S造 地上9階建 8階部分
築年:1991年
敷金:4ヶ月
礼金:なし
備考:普通借家契約(2年間)、保証会社利用必須、火災保険必須、指定の清掃会社と清掃契約の締結あり
〈上記以外で契約時に掛かる主な費用〉
・仲介手数料(賃料1.1ヶ月分(税込))
・前家賃(1ヶ月分)
・日割り家賃(月途中での賃料発生の場合)
・初回保証委託料(賃料合計の最大100%)
・火災保険料
The following two tabs change content below.
SOHOオフィスのファインディング、コンテンツ制作、リーシングを担当。
神奈川生まれ。東京藝術大学では油画を専攻、絵画や漫画などの創作活動を行う。その後、建築業界でリノベーションのセールスを経て、トランスリアルに参画。
最新記事 by 瀬川 (全て見る)
-
青山一丁目5分、公園沿いのシンプル低層オフィス
[港区/44万/70㎡] - 2026年1月23日 -
四ツ谷、採光豊かなデザイナーズメゾネット
[新宿区/27万/62㎡] - 2026年1月23日 -
武蔵小山、オフィスからスタジオも叶えるリノベ一棟
[品川区/25万〜/35㎡〜] - 2026年1月22日 -
目黒青葉台、光差し込むデザイナーズSOHO
[目黒区/34万~/53㎡] - 2026年1月20日 -
中目黒・祐天寺、家具付きメゾネットSOHO
[目黒区/41万/61㎡] - 2026年1月20日
