物件をブックマーク
中央区銀座6丁目。室内面積200㎡越えの広々としたワンフロアオフィスが募集開始となりました。銀座、新橋へも程近く、使い勝手の良いオフィスのご紹介です。
最寄り駅の日比谷線「東銀座駅」からは徒歩3分。その他にも銀座駅、新橋駅が徒歩10分圏内と好立地に佇みます。昭和通りから一本入ったところに位置しているので、周辺は落ち着いた印象。
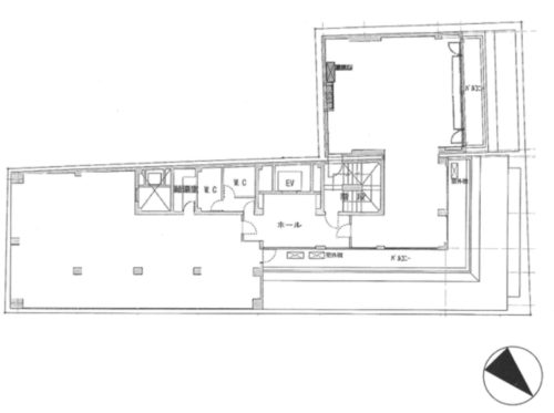
エレベーターを出て向かって右側のスペース。タイルカーペットが敷かれたシンプルな内装。大きな柱が複数あるため、レイアウトに工夫が必要そうです。大きな窓から入る光が心地よく、開放的な空間がつくられています。
エレベーターを出て向かって左側のスペース。
二つの空間はホールを挟み独立しているので、部署や用途によって使い分けることもできそうです。
男女別トイレなので、女性スタッフがいる場合にも安心してご利用いただけます。
給湯室は個室になっています。
3駅3路線が利用可能と、多方面へのアクセスに優れている本物件。
来訪者へのご案内がしやすい点も魅力のひとつです。20名前後でのご利用に最適。
管理番号:S143352
賃料:
管理費:
広さ:202.10㎡
住所:中央区銀座6
アクセス:日比谷線「東銀座駅」徒歩3分、丸ノ内線「銀座駅」徒歩5分、山手線「新橋駅」徒歩9分
構造:RC造 地下1階地上5階建 4階部分
築年:1983年
敷金・保証金:
礼金:
備考:2年契約(更新料:1ヵ月)、保証会社利用必須
〈上記以外で契約時に掛かる主な費用〉
・仲介手数料(賃料1ヶ月分税別)
・前家賃(1ヶ月分)
・日割り家賃(月途中での賃料発生の場合)
・初回保証委託料(賃料合計の最大100%)
・火災保険料
The following two tabs change content below.
SOHOオフィスのファインディング、コンテンツ制作、リーシングを担当。
新潟生まれ。大学卒業後、アイウェア企業に入社。店舗での店長経験などを経てトランスリアルに参画。
最新記事 by 村山 (全て見る)
-
市ヶ谷、抜け感と木の質感が心地よいセットアップ
[千代田区/143万/142㎡] - 2026年2月6日 -
淡路町2分、快適環境、完成型什器付きオフィス
[千代田区/162万/186㎡] - 2026年2月6日 -
築地、店舗利用が可能な無機質を活かしたオフィス
[中央区/38万/55㎡] - 2026年2月5日 -
広尾エリア、穏やかな明るさを拡散させるSOHO
[港区/29万/58㎡] - 2026年2月4日 -
表参道、気分を上げる駅近リノベオフィスで
[港区/35万/43㎡] - 2026年2月3日
